Prosimy, odblokuj wyświetlanie reklam w naszym serwisie, są one związane z rynkiem nieruchomości.
To dzięki nim masz darmowy dostęp do naszych treści.

Z pozdrowieniami zespół KRN.pl :)


telefon

wiadomość

mapa

Mieszkanie, Kraków, Podgórze/Stare Podgórze, ul. Rydlówka

Mieszkanie na sprzedaż Kraków (woj. Małopolskie), Podgórze/Stare Podgórze, ul. Rydlówka

Lokalizacja:

Kraków, Podgórze/Stare Podgórze, ul. Rydlówka

Powierzchnia:

53.86 m2

Cena:

979 000 zł

Dane szczegółowe

lokalizacja:
Małopolskie, Kraków, Podgórze/Stare Podgórze, ul. Rydlówka
typ obiektu:
mieszkanie na sprzedaż
cena:
979 000 zł
pokoi:
3
piętro:
parter
ilość pięter w budynku:
4
powierzchnia:
53.86 m2
powierzchnia dodatkowa:
balkon, ogródek
numer ogłoszenia:
DNX-MS-30588-2
data dodania:
09-01-2026
data modyfikacji:
09-01-2026
jakość wypełnienia oferty:
94%

Szczegóły oferty


Do sprzedaży mieszkanie 3-pokojowe o powierzchni 53,86 m2, położone na nowoczesnym osiedlu przy ulicy Rydlówka w
Krakowie.

Atuty
gotowe do zamieszkania
z przynależnym ogródkiem
zamykane na domofon i bramę wjazdową
dogodna komunikacja do centrum Krakowa
bliskość do centrum handlowego
bliskość sklepów wielkopowierzchniowych
ekspozycja trójstronna
widok na tereny zielone
prywatny ogródek (ok. 50 mkw.)
Rolety antywłamaniowe

MIESZKANIE
Prezentowane mieszkanie położone jest na parterze w bloku z 2017 r. Blok docieplony, zamykany na domofon.
- staranna aranżacja pomieszczeń
- usytuowane na parterze w 4 piętrowym budynku
- posiada ogródek ok. 50 m2
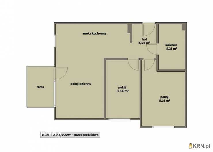
Mieszkanie podzielone na dwa mniejsze, co daje lepsze warunki najmu.
Na powierzchnię składa się:

Mieszkanie 1:
- salon (ok. 20 m2)
- 1 oddzielna sypialnia (ok. 12 m2)
- kuchnia w aneksie (ok. 3 m2),
- łazienka (ok. 3 m2)

Mieszkanie 2:
- salon (ok. 15 mkw.)
- aneks kuchenny (ok. 3 mkw.)
- łazienka (ok. 3 mkw.)
Wspólny przedpokój (ok. 2 mkw.)
Ciepła woda i ogrzewanie z sieci miejskiej.
Miesięczny czynsz wynosi 700 zł na dwie osoby, w jego skład wchodzi zaliczka na fundusz remontowy, zaliczka na wodę i wywóz śmieci, administrację, utrzymanie części wspólnych.
Mieszkanie sprzedawane z meblami, AGD w kuchni, szafy w zabudowie - pozostają. Całe wyposażenie nowe (2 lata).
Mieszkanie dostępne po uzgodnieniu terminu. Obecnie jest wynajmowane. Można przejąć z najemcami lub bez. Obecny Właściciel wynajmuje je za 5000 zł. odstępnego.
Lokalizacja

bliskość komunikacji zbiorowej
bliskość sklepów
bliskość centrum
dogodny wyjazd z miasta
nowoczesna dzielnica miasta

ZADZWOŃ, A JA OPOWIEM CI O TEJ NIERUCHOMOŚCI, DORADZĘ I POMOGĘ JAK PRZYJACIELOWI.

::DODATKOWE INFORMACJE
Rodzaj budynku: blok Głośność: ciche Widok: na inne budynki Gaz: brak Woda: jest Dojazd: asfalt Otoczenie: działki zabudowane Ogrzewanie: C.O. miejskie Alarm: TAK Internet: TAK Komunikacja publ.: MPK, tramwaj Winda: TAK Liczba wind: 1 Rozkład: dwustronne rozkładowe Usytuowanie: dwustronne Drzwi antywłamaniowe: TAK Rolety antywłamaniowe: TAK Teren ogrodzony: TAK Rodzaj mieszkania: jednopoziomowe Stan lokalu: bardzo dobry Okna: PCV 3 komorowe Instalacje: nowe Balkon: taras Tarasy: taras mały Liczba tarasów: 1 Powierzchnia balkonów/tarasów [m2]: 5 Powierzchnia ogródka [m2]: 50 Powierzchnia użytkowa [m2]: 53,8600 Rok budowy: 2017 Liczba pokoi: 3 Wysokość pomieszczeń [m]: 2,7500 Liczba sypialni: 2 Powierzchnia pokoi [m2]: 12 * 12 * 20 Podłogi pokoi: panele podłogowe Ściany pokoi: gładzie gipsowe Wystawa okien - pokoje : Wsch, Pd, Zach Typ kuchni: aneks kuchenny - połączony z salonem Rodzaj kuchni: aneks kuchenny Powierzchnia kuchni [m2]: 4 Podłoga kuchni: terakota Wystawa okien - kuchnia: Pd Typ łazienki: razem z wc Liczba łazienek: 2 Powierzchnia łazienki [m2]: 4 Glazura łazienki: nowego typu Podłoga łazienki: terakota Wyposażenie łazienki: WC, umywalka, pralka, lustro, kabina prysznicowa Ściany łazienki: glazura Liczba przedpokoi: 1 Powierzchnia przedpokoi [m2]: 2 Podłoga przedpokoi: terakota Ściany przedpokoi: gładzie gipsowe
::KONTAKT DO AGENTA
Robert Szteliga Zobacz kontakt501 955 997 Zobacz kontaktrobert@danax.pl
Pośrednik odpowiedzialny zawodowo za wykonanie umowy pośrednictwa: Bartłomiej Krosta (licencja nr: 6585)
--------------------------
Od 1993 r. pośredniczymy w transakcjach na krakowskim rynku nieruchomości.
Pomożemy Ci jak przyjacielowi.

Ogrzewanie: Miejskie

Kontakt do agenta:
Robert Szteliga
Zobacz kontaktrobert@danax.pl
Zobacz kontakt501 955 997

Oceń ofertę


0


108 wydruk błąd schowek

Ostatnio przeglądane

 

 

 

pobieranie

Pobierz wzór umowy

Umowa przedwstępna sprzedaży

wybierz plik do pobrania
doc pdf

 

 

Deweloperzy

);