Prosimy, odblokuj wyświetlanie reklam w naszym serwisie, są one związane z rynkiem nieruchomości.
To dzięki nim masz darmowy dostęp do naszych treści.

Z pozdrowieniami zespół KRN.pl :)


telefon

wiadomość

mapa

Mieszkanie, Kraków, Dębniki/Ruczaj, ul. Czerwone Maki

Mieszkanie na sprzedaż Kraków (woj. Małopolskie), Dębniki/Ruczaj, ul. Czerwone Maki

Lokalizacja:

Kraków, Dębniki/Ruczaj, ul. Czerwone Maki

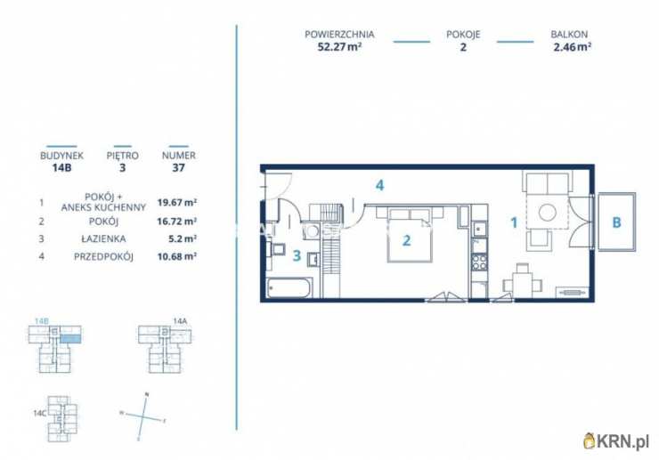
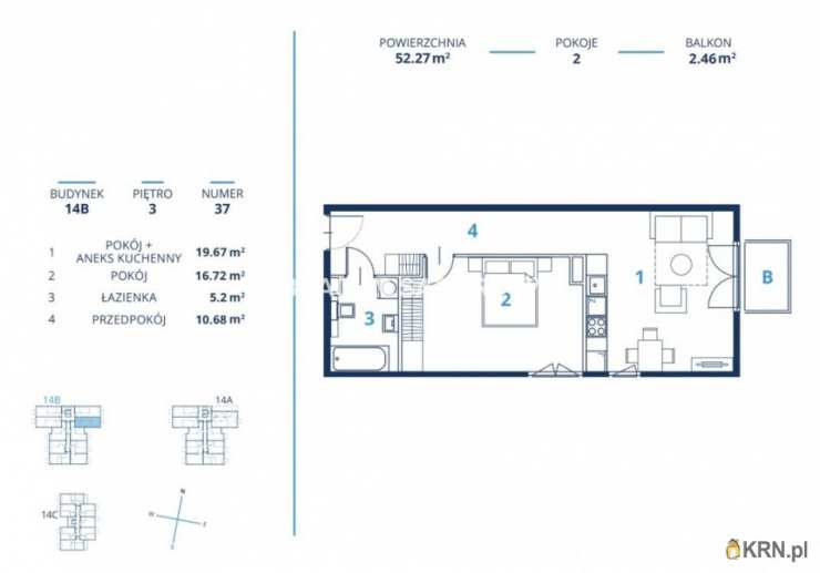
Powierzchnia:

52.27 m2

Cena:

703 129 zł

Dane szczegółowe

lokalizacja:
Małopolskie, Kraków, Dębniki/Ruczaj, ul. Czerwone Maki
typ obiektu:
mieszkanie na sprzedaż
cena:
703 129 zł
pokoi:
2
piętro:
3
ilość pięter w budynku:
3
powierzchnia:
52.27 m2
powierzchnia dodatkowa:
balkon
numer ogłoszenia:
BS2-MS-305008-42
data dodania:
03-04-2026
data modyfikacji:
03-04-2026
jakość wypełnienia oferty:
88%

Szczegóły oferty


NOWA INWESTYCJA DEWELOPERSKA W DOSKONAŁEJ LOKALIZACJI - OSIEDLE RUCZAJ
MIESZKANIA GOTOWE DO UŻYTKOWANIA ( KLUCZE)
Kameralne osiedle 3 budynków mieszkalnych z niską trzypiętrową zabudową.
Każde mieszkania posiada balkon lub ogródek
Metraże od 32m2 - 70m2 (-1,-2,-3, pokojowe)
Miejsca postojowe zewnętrze
oraz w garażu podziemnym
Inwestycja budowana w
tradycyjnej technologii.
Mieszkania sprzedawane
w stanie deweloperskim
(tynki gipsowe, wylewki, instalacje).
Ogrzewanie oraz ciepła woda z MPEC
Lokalizacja
osiedla
zapewnia w pełni
rozbudowaną infrastrukturę, w tym sklepy spożywcze, supermarkety, restauracje, kawiarnie, apteki, banki, poczta, siłownie placówki medyczne, szkoły, przedszkola oraz liczne tereny rekreacyjne.
2,5 km od Kampusu Uniwersytetu Jagiellońskiego

Komunikacja:
Pętla tramwajowa i autobusowa (5 minut spacerem)
3 km od autostrady
13km od lotniska
Zapraszam do kontaktu po więcej szczegółów,

Marek Popiela
tel; +4
Zobacz kontakt518 967 677
mail; Zobacz kontaktmarek@sadurscy.pl

::DODATKOWE INFORMACJE
Rodzaj budynku: blok Dozór budynku: brak Głośność: średnio głośne Widok: na inne budynki Gaz: brak Woda: jest Dojazd: ASFALTOWA Otoczenie: działki zabudowane Ogrzewanie: C.O. miejskie Linie telefoniczne: TAK Internet: TAK Komunikacja publ.: tramwaj, tak, autobus Winda: TAK Liczba wind: 1 Rozkład: rozkładowe Usytuowanie: jednostronne Drzwi antywłamaniowe: TAK Opłaty w czynszu: - Rodzaj mieszkania: jednopoziomowe Garaż: Tak Stan lokalu: deweloperski Okna: PCV Instalacje: nowe Balkon: jest Liczba balkonów: 1 Rok budowy: 2024 Liczba pokoi: 2 Liczba sypialni: 1 Podłogi pokoi: wylewka betonowa Ściany pokoi: zwykłe Typ kuchni: aneks kuchenny - połączony z salonem Rodzaj kuchni: otwarta na salon Podłoga kuchni: wylewka betonowa Typ łazienki: razem z wc Liczba łazienek: 1 Glazura łazienki: bez glazury Podłoga łazienki: wylewka betonowa Ściany łazienki: zwykłe Liczba przedpokoi: 1 Podłoga przedpokoi: wylewka betonowa Ściany przedpokoi: zwykłe
::LINK DO STRONY
https://sadurscy.pl/offer/BS2-MS-305008
::KONTAKT DO AGENTA
Marek Popiela + Zobacz kontakt48 518-967-677 Zobacz kontaktmarek@sadurscy.pl
::DANE BIURA
Oddział BS2, Rynek Pierwotny Przewóz
47 30-081 Kraków Zobacz kontakt12 630-90-45
--------------------------
::GRATIS | Nasza prowizja zawiera: koszt przedwstępnej notarialnej umowy sprzedaży nieruchomości z rynku wtórnego. ::GWARANCJA | Gwarancja zwrotu zadatku. Więcej informacji na sadurscy.pl/zwrot-zadatku/

Ogrzewanie: Miejskie

Kontakt do agenta:
Marek Popiela
Zobacz kontaktmarek@sadurscy.pl
+ Zobacz kontakt48 518-967-677

Oceń ofertę


0


11 wydruk błąd schowek

Ostatnio przeglądane

 

 

 

pobieranie

Pobierz wzór umowy

Umowa przedwstępna sprzedaży

wybierz plik do pobrania
doc pdf

 

 

Deweloperzy

);