Prosimy, odblokuj wyświetlanie reklam w naszym serwisie, są one związane z rynkiem nieruchomości.
To dzięki nim masz darmowy dostęp do naszych treści.

Z pozdrowieniami zespół KRN.pl :)


telefon

wiadomość

mapa

Mieszkanie, Kraków, Podgórze/Zabłocie

Mieszkanie na sprzedaż Kraków (woj. Małopolskie), Podgórze/Zabłocie

Lokalizacja:

Kraków, Podgórze/Zabłocie, ul.

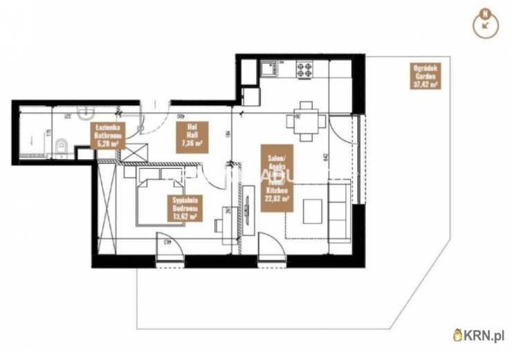
Powierzchnia:

49.54 m2

Cena:

886 766 zł

Dane szczegółowe

lokalizacja:
Małopolskie, Kraków, Podgórze/Zabłocie
typ obiektu:
mieszkanie na sprzedaż
cena:
886 766 zł
pokoi:
2
piętro:
parter
ilość pięter w budynku:
7
powierzchnia:
49.54 m2
powierzchnia dodatkowa:
ogródek
numer ogłoszenia:
BS2-MS-300267-12
data dodania:
14-09-2024
data modyfikacji:
14-09-2024
jakość wypełnienia oferty:
82%

Szczegóły oferty


Bracia Sadurscy to oficjalny przedstawiciel handlowy dewelopera - kupując z nami nie płacisz prowizji i ukrytych kosztów.
WYJĄTKOWA INWESTYCJA DEWELOPERSKA W DOSKONAŁEJ LOKALIZACJI -KRAKÓW-ZABŁOCIE
Dostępne mieszkania -2,-3 oraz 4 pokojowe w metrażach od 27m2-67m2
Wysoka jakość materiałów budowlanych oraz wykończenia w częściach wspólnych, estetyczna elewacja, spójna kolorystyka, cichobieżne windy, obsadzone zielenią części wspólne - to jedne z jej wielu atutów.
Inwestycja znajduje się w atrakcyjnej lokalizacji - doskonała komunikacja z resztą miasta(autobus/tramwaj).

W pobliżu znajdują się liczne placówki edukacyjne, ośrodki biznesowe, sklepy, galerie handlowe, banki, restauracje.

RYNEK GŁÓWNY > 3,4km

KAZIMIERZ > 2,5km

ZAMEK KRÓLEWSKI >2km

PRZYSTANEK AUTOBUSOWY/TRAMWAJOWY> 1min

Miejsca postojowe oraz kom. lokatorskie dostępne w garażu podziemnym
Bezpieczeństwo zapewnia całodobowy monitoring osiedla
Zapraszam do kontaktu
Barbara Nazarewicz
E: Zobacz kontaktbasia@sadurscy.pl
T:+ Zobacz kontakt48 515-634-552

::DODATKOWE INFORMACJE
Kategoria oferty: Mieszkania dla rodzin z dziećmi Rodzaj budynku: blok Głośność: ciche Widok: na osiedle Dojazd: ASFALTOWA Ogrzewanie: centralne Alarm: TAK Komunikacja publ.: tramwaj, autobus Odległość do komunikacji publicznej [m]: 200 Odl. do sklepu [m]: 200 Odl. do szkoły [m]: 1000 Odl. do przedszkola [m]: 100 Winda: TAK Liczba wind: 1 Rozkład: jednostronne Usytuowanie: jednostronne Drzwi antywłamaniowe: TAK Opłaty w czynszu: wywóz śmieci, woda ciepła, Winda, sprzątanie, ogrzewanie, monitoring, fundusz remontowy, administracja Opłaty wg liczników: Woda zimna, Woda ciepła, prąd Rodzaj mieszkania: jednopoziomowe Garaż: garaż podziemny Stan lokalu: deweloperski Okna: PCV Instalacje: nowe Powierzchnia ogródka [m2]: 17,0800 Rok budowy: 2024 Liczba pokoi: 2 Wysokość pomieszczeń [m]: 2,6000 Liczba sypialni: 1
::LINK DO STRONY
https://sadurscy.pl/offer/BS2-MS-300267
::KONTAKT DO AGENTA
Barbara Nazarewicz + Zobacz kontakt48 515-634-552 Zobacz kontaktbasia@sadurscy.pl
::DANE BIURA
Oddział BS2, Rynek Pierwotny Królewska 67 30-081 Kraków Zobacz kontakt12 630-90-45
--------------------------
::GRATIS | Nasza prowizja zawiera: koszt przedwstępnej notarialnej umowy sprzedaży nieruchomości z rynku wtórnego. ::GWARANCJA | Gwarancja zwrotu zadatku. Więcej informacji na sadurscy.pl/zwrot-zadatku/

Ogrzewanie: CENTRALNE

Kontakt do agenta:
Barbara Nazarewicz
Zobacz kontaktbasia@sadurscy.pl
+ Zobacz kontakt48 515-634-552

Oceń ofertę


3


377 wydruk błąd schowek

Ostatnio przeglądane

 

 

 

pobieranie

Pobierz wzór umowy

Umowa przedwstępna sprzedaży

wybierz plik do pobrania
doc pdf

 

 

Deweloperzy

);