Prosimy, odblokuj wyświetlanie reklam w naszym serwisie, są one związane z rynkiem nieruchomości.
To dzięki nim masz darmowy dostęp do naszych treści.

Z pozdrowieniami zespół KRN.pl :)


telefon

wiadomość

mapa

Mieszkanie, Kraków, Prądnik Biały/Krowodrza Górka, ul. Bratysławska

Mieszkanie na sprzedaż Kraków (woj. Małopolskie), Prądnik Biały/Krowodrza Górka, ul. Bratysławska

Lokalizacja:

Kraków, Prądnik Biały/Krowodrza Górka, ul. Bratysławska

Powierzchnia:

49.30 m2

Cena:

886 000 zł

Dane szczegółowe

lokalizacja:
Małopolskie, Kraków, Prądnik Biały/Krowodrza Górka, ul. Bratysławska
typ obiektu:
mieszkanie na sprzedaż
cena:
886 000 zł
pokoi:
2
piętro:
15
ilość pięter w budynku:
16
powierzchnia:
49.30 m2
powierzchnia dodatkowa:
loggia, balkon
numer ogłoszenia:
BS4-MS-309686-22
data dodania:
28-11-2025
data modyfikacji:
28-11-2025
jakość wypełnienia oferty:
94%

Szczegóły oferty

|
Na sprzedaż 2-pokojowe mieszkanie, ul. Bratysławska, Kraków

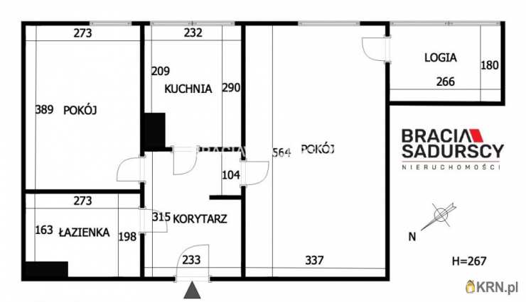
Biuro Nieruchomości Bracia Sadurscy ma przyjemność zaoferować przestronne i bardzo funkcjonalne mieszkanie o powierzchni 49,30 m², położone w doskonałej lokalizacji na ul. Bratysławskiej 2 w Krakowie, w dzielnicy Krowodrza.

Opis nieruchomości:
Mieszkanie znajduje się na 15. piętrze 16-piętrowego budynku z 2002 roku, wyposażonego w windę. Składa się z:

jasnej sypialni,
przestronnego pokoju dziennego,
oddzielnej kuchni (z możliwością otwarcia na salon),
przedpokoju,
łazienki.

Dodatkowym atutem jest przeszklona loggia o powierzchni 3 m², z której roztacza się wyjątkowy widok na panoramę Krakowa, dzięki ekspozycji południowo-wschodniej.

Stan techniczny:
Mieszkanie jest w bardzo dobrym stanie technicznym, wyposażone i częściowo umeblowane, gotowe do zamieszkania lub wynajmu. Wysokość pomieszczeń wynosi 2,66 m, co potęguje poczucie przestronności. Okna plastikowe, drzwi wejściowe antywłamaniowe i ognioodporne. Nieruchomość jest bardzo jasna i ciepła, co wpływa na niskie koszty eksploatacji. Miesięczne opłaty administracyjne wynoszą ok. 400 zł (plus media).

Budynek:
W budynku znajduje się lobby z ochroną, domofonem i monitoringiem. Dla mieszkańców dostępne są podziemne miejsca parkingowe do wynajęcia.

Lokalizacja:
Mieszkanie położone jest w bardzo dogodnym punkcie komunikacyjnym - tramwaje i autobusy zapewniają szybki dojazd do centrum miasta (ok. 10 minut). W pobliżu znajduje się pełna infrastruktura: sklepy, punkty usługowe, klub fitness, ścieżki rowerowe, szkoła, przedszkola, apteka, ośrodek zdrowia oraz tereny rekreacyjne (Park Krowoderski, Park Wyspiańskiego, Dworek Białoprądnicki).

Dodatkowe informacje:
Nieruchomość posiada odrębną własność z księgą wieczystą. Wyposażenie obejmuje m.in. lodówkę, kuchenkę i piekarnik.

Zapraszamy do kontaktu w celu umówienia się na prezentację. To wyjątkowa oferta, idealna zarówno do zamieszkania, jak i inwestycyjnie pod wynajem! Cena: 886 000 zł
Kontakt:

Biuro Nieruchomości Bracia Sadurscy
Anna Antczak
Tel: + Zobacz kontakt48 518-967-863
Email:
Zobacz kontaktania@sadurscy.pl Prezentacja nieruchomości po podpisaniu umowy pośrednictwa jest całkowicie bezpłatna.
::DODATKOWE INFORMACJE |
Rodzaj budynku: wieżowiec |
Dozór budynku: os. zamknięte i strzeżone |
Głośność: głośne |
Widok: panorama miasta |
Gaz: brak |
Woda: ciepła - miejska |
Dojazd: asfalt |
Otoczenie: bloki |
Ogrzewanie: C.O. miejskie |
Internet: TAK |
Komunikacja publ.: miejska, tramwaj, autobus |
Winda: TAK |
Liczba wind: 2 |
Rozkład: pełen rozkład |
Usytuowanie: jednostronne |
Przystosowania dla niepełnosprawnych: TAK |
Teren ogrodzony: TAK |
Opłaty w czynszu: wywóz śmieci, wywóz nieczystości, woda ciepła, ochrona, monitoring, fundusz remontowy, Części wspólne, CO, administracja |
Opłaty wg liczników: prąd |
Rodzaj mieszkania: jednopoziomowe |
Garaż: brak |
Stan lokalu: bardzo dobry |
Okna: PCV |
Instalacje: dobre |
Balkon: loggia |
Liczba balkonów: 1 |
Powierzchnia balkonów/tarasów [m2]: 4,8000 |
Powierzchnia użytkowa [m2]: 49,3000 |
Rok budowy: 2002 |
Liczba pokoi: 2 |
Wysokość pomieszczeń [m]: 2,6600 |
Liczba sypialni: 2 |
Powierzchnia pokoi [m2]: 21,70

10,60 |
Podłogi pokoi: gres |
Ściany pokoi: zwykłe |
Wystawa okien - pokoje : Pd-Wsch |
Typ kuchni: oddzielna i widna |
Rodzaj kuchni: kuchnia jasna, osobno |
Powierzchnia kuchni [m2]: 6,60 |
Podłoga kuchni: gres |
Wystawa okien - kuchnia: Pd-Wsch |
Typ łazienki: razem z wc |
Liczba łazienek: 1 |
Powierzchnia łazienki [m2]: 5,40 |
Glazura łazienki: glazura |
Podłoga łazienki: gres |
Wyposażenie łazienki: WC, wanna, umywalka, pralka, lustro |
Ściany łazienki: glazura |
Liczba przedpokoi: 1 |
Powierzchnia przedpokoi [m2]: 7,33 |
Podłoga przedpokoi: gres |
Ściany przedpokoi: zwykłe |
::LINK DO STRONY |
sadurscy.pl/offer/BS4-MS-309686
::KONTAKT DO AGENTA |
Anna Antczak |
+ Zobacz kontakt48 518-967-863 |
Zobacz kontaktania@sadurscy.pl
::DANE BIURA |
Oddział BS4, Krowodrza |
Kołowa 5/3 |
30-134 Kraków |
Zobacz kontakt12 633-90-20
Pośrednik odpowiedzialny zawodowo za wykonanie umowy pośrednictwa: Dariusz Sadurski (licencja nr: 803)
|
Oferta wysłana z systemu Galactica Virgo
Ogrzewanie: Miejskie

Kontakt do agenta:
Anna Antczak
Zobacz kontaktania@sadurscy.pl
+ Zobacz kontakt48 518-967-863

Oceń ofertę


0


24 wydruk błąd schowek

Ostatnio przeglądane

 

 

 

pobieranie

Pobierz wzór umowy

Umowa przedwstępna sprzedaży

wybierz plik do pobrania
doc pdf

 

 

Deweloperzy

);