Prosimy, odblokuj wyświetlanie reklam w naszym serwisie, są one związane z rynkiem nieruchomości.
To dzięki nim masz darmowy dostęp do naszych treści.

Z pozdrowieniami zespół KRN.pl :)


telefon

wiadomość

mapa

Mieszkanie, Kraków, Bronowice/Bronowice Małe, ul. Katowicka

Mieszkanie na sprzedaż Kraków (woj. Małopolskie), Bronowice/Bronowice Małe, ul. Katowicka

Lokalizacja:

Kraków, Bronowice/Bronowice Małe, ul. Katowicka

Powierzchnia:

48.50 m2

Cena:

719 000 zł

Dane szczegółowe

lokalizacja:
Małopolskie, Kraków, Bronowice/Bronowice Małe, ul. Katowicka
typ obiektu:
mieszkanie na sprzedaż
cena:
719 000 zł
pokoi:
2
piętro:
parter
ilość pięter w budynku:
2
powierzchnia:
48.50 m2
powierzchnia dodatkowa:
balkon, ogródek
numer ogłoszenia:
BS2-MS-313280-5
data dodania:
16-12-2025
data modyfikacji:
16-12-2025
jakość wypełnienia oferty:
94%

Szczegóły oferty


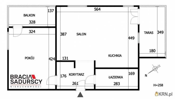
Na sprzedaż mieszkanie
2 pokojowe
położone na
wyższym parterze o powierzchni 48,5 m2
w kameralnym bloku z ogólnodostępnymi miejscami parkingowymi i komórką lokatorską w cenie.
Mieszkanie składa się z:
-salonu połączonego z kuchnią i jadalnią z wyjściem na taras i ogródek
-osobnej sypialni z balkonem
-łazienki
-przedpokoju
Okolica bardzo cicha, willowa idealna dla rodziny z dzieckiem.
Bronowice Małe to popularna i dynamicznie rozwijająca się dzielnica położona w północno-zachodniej części Krakowa, należąca do Krowodrzy. Odległość do centrum miasta wynosi zaledwie kilka kilometrów, co czyni tę lokalizację bardzo atrakcyjną dla osób ceniących szybki dostęp do wszystkich kluczowych punktów Krakowa.
Dzielnica jest doskonale skomunikowana, co umożliwia łatwy dostęp zarówno do różnych części miasta, jak i do dróg wylotowych i obwodnic. Obecny układ komunikacyjny zapewnia wygodny wyjazd z miasta w kierunku obwodnicy A4 Rzeszów-Katowice, która pełni funkcję południowej obwodnicy Krakowa. W najbliższym czasie planowana realizacja północnej obwodnicy znacznie ułatwi podróżowanie w kierunku Warszawy drogą S7.
Blok został wybudowany w technologii tradycyjnej w 2001, regularnie odnawiane klatki schodowe. Nieruchomość jest podłączona do miejskich sieci wodno-kanalizacyjnej, gazowej oraz elektrycznej, a ogrzewanie i ciepłą wodę zapewniają piece gazowe dla każdego lokalu osobne. Konstrukcja budynku opiera się na solidnej technologii murowanej.

Kluczowe odległości:

Rynek Główny w Krakowie: 8 km
Pętla tramwajowa Bronowice Małe: 1,5 km
Węzeł autostrady A4: 7,5 km
Galeria Bronowice, Ikea: 2,4 km

Zapraszam do kontaktu i na prezentację
Patrycja Rubinkiewicz
Zobacz kontakt505 236 943
Zobacz kontaktpatrycja@sadurscy.pl

::DODATKOWE INFORMACJE
Kategoria oferty: Mieszkania dla rodzin z dziećmi Rodzaj budynku: blok Piętro: wysoki parter Parking strzeżony (odległość w metrach) [m]: 500 Dozór budynku: monitoring Głośność: ciche Widok: park/skwer Gaz: jest Woda: ciepła - piecyk gazowy Dojazd: ASFALTOWA Otoczenie: działki zabudowane Ogrzewanie: C.O. GAZOWE Linie telefoniczne: TAK Internet: TAK Nadaje się na biuro: TAK Komunikacja publ.: autobus miejski Odległość do komunikacji publicznej [m]: 200 Odl. do sklepu [m]: 300 Winda: NIE Rozkład: narożne Usytuowanie: trójstronne Drzwi antywłamaniowe: TAK Teren ogrodzony: TAK Opłaty w czynszu: zaliczka na fundusz remontowy, wywóz śmieci, wywóz nieczystości, telewizja kablowa, monitoring, fundusz remontowy, administracja Opłaty wg liczników: prąd, gaz, CO Rodzaj mieszkania: jednopoziomowe Garaż: miejsce parkingowe przy budynku Piwnica [m2]: 4 Stan lokalu: częściowo po remoncie Okna: drewniane Instalacje: ELEKTRYCZNA, WODNA, GAZOWA Balkon: jest Liczba balkonów: 1 Tarasy: taras mały Liczba tarasów: 1 Powierzchnia ogródka [m2]: 100 Powierzchnia użytkowa [m2]: 48,5000 Rok budowy: 2001 Liczba pokoi: 2 Wysokość pomieszczeń [m]: 2,6000 Liczba sypialni: 1 Podłogi pokoi: panele podłogowe Ściany pokoi: tapety Wystawa okien - pokoje : Pn, Wsch Typ kuchni: aneks kuchenny - połączony z salonem Rodzaj kuchni: aneks kuchenny Podłoga kuchni: panele podłogowe Wystawa okien - kuchnia: Pd Liczba łazienek: 1 Glazura łazienki: starszego typu Wyposażenie łazienki: WC, wanna, umywalka, pralka, lustro Ściany łazienki: glazura Liczba przedpokoi: 1 Podłoga przedpokoi: płytki Ściany przedpokoi: tynk
::LINK DO STRONY
https://sadurscy.pl/offer/BS2-MS-313280
::KONTAKT DO AGENTA
Patrycja Rubinkiewicz + Zobacz kontakt48 505-236-943 Zobacz kontaktpatrycja@sadurscy.pl
::DANE BIURA
Oddział BS2, Rynek Pierwotny Przewóz
47 30-081 Kraków Zobacz kontakt12 630-90-45
--------------------------
::GRATIS | Nasza prowizja zawiera: koszt przedwstępnej notarialnej umowy sprzedaży nieruchomości z rynku wtórnego. ::GWARANCJA | Gwarancja zwrotu zadatku. Więcej informacji na sadurscy.pl/zwrot-zadatku/

Ogrzewanie: Gazowe

Kontakt do agenta:
Patrycja Rubinkiewicz
Zobacz kontaktpatrycja@sadurscy.pl
+ Zobacz kontakt48 505-236-943

Oceń ofertę


0


20 wydruk błąd schowek

Ostatnio przeglądane

 

 

 

pobieranie

Pobierz wzór umowy

Umowa przedwstępna sprzedaży

wybierz plik do pobrania
doc pdf

 

 

Deweloperzy

);