Prosimy, odblokuj wyświetlanie reklam w naszym serwisie, są one związane z rynkiem nieruchomości.
To dzięki nim masz darmowy dostęp do naszych treści.

Z pozdrowieniami zespół KRN.pl :)


telefon

wiadomość

mapa

Mieszkanie, Katowice, Ligota-Panewniki/Ligota

Mieszkanie na sprzedaż Katowice (woj. Śląskie), Ligota-Panewniki/Ligota

Lokalizacja:

Katowice, Ligota-Panewniki/Ligota, ul.

Powierzchnia:

47.31 m2

Cena:

451 811 zł

Dane szczegółowe

lokalizacja:
Śląskie, Katowice, Ligota-Panewniki/Ligota
typ obiektu:
mieszkanie na sprzedaż
cena:
451 811 zł
pokoi:
2
piętro:
3
ilość pięter w budynku:
5
powierzchnia:
47.31 m2
numer ogłoszenia:
DMP-MS-7483
data dodania:
27-01-2023
data modyfikacji:
08-08-2023
jakość wypełnienia oferty:
70%

Szczegóły oferty


Katowice Ligota kameralne nowoczesne budynki nowa inwestycja

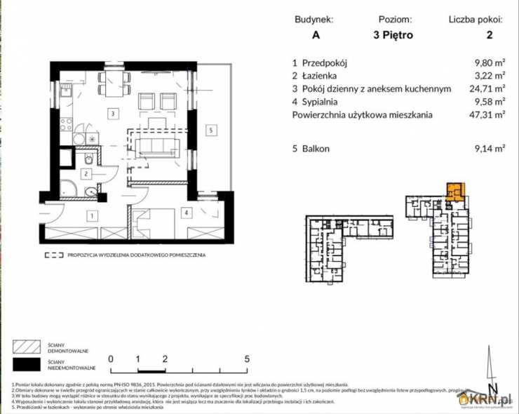
Do sprzedaży mieszkania (stan deweloperski) w dwóch 5 piętrowych budynkach. Zlokalizowane w zielonej dzielnicy Ligota (spacerem do rekreacyjnych leśnych terenów). Opisywane mieszkanie o powierzchni 47,31m2 (rzut i usytuowanie w budynku załączone do oferty) znajduje się na 3 piętrze. Składa się z 2 pokoi, jednego dziennego z aneksem kuchennym(24,71m2) z wyjściem na balkon (9,14m2), sypialni (9,58m2), przedpokoju (9,80m2), łazienki (3,22m2). Centralne ogrzewanie i ciepła woda z lokalnej kotłowni gazowej. W budynku jest winda.
W ofercie mieszkania 1 do 4 pokoi o powierzchniach od 35m2 do 70m2 z możliwością zmiany
ich wnętrz na wersję z większą lub mniejszą ilością pokoi . Mieszkania usytuowane na parterze posiadają duże ogródki.
Opcjonalnie dostępne są miejsca parkingowe
w garażu poziom „0”
lub miejsca postojowe w hali garażowej poziom „-1” oraz komórki lokatorskie.
Bardzo dobre skomunikowanie z centrum Katowic (blisko przystanki miejskich autobusów oraz dworzec kolejowy Katowice Ligota) oraz drogami wylotowymi z Katowic autostrada Kraków - Wrocław i DTŚ (Drogowa Trasa Średnicowa) w kierunku Warszawa, Chorzów, Zabrze, Gliwice.
W pobliżu zielone tereny rekreacyjne parku Zadole z centrum rekreacyjno-sportowym oraz miejskim basenem (ok. 2.200 m) i kompleks leśny z rezerwatem Buczyna (ok. 400m).
Oferowane mieszkania to również dobra inwestycja pod wynajem min. dla studentów z uwagi na bliskość Śląskiego Uniwersytetu Medycznego i Centralnego Szpitala Klinicznego (ok. 2 km), Wyższej Szkoły Technicznej w Brynowie ul. Rolna (ok. 1,5km) oraz dla osób pracujących w Parku Naukowo-Technologicznym Euro-Centrum (ok. 1,1km)

W ofercie mamy również mieszkania deweloperskie w innych dzielnicach Katowic oraz w Chorzowie. Proszę o kontakt, aby uzyskać aktualne informacje.
Agent prowadzący:
Jan Gołąbek
tel. Zobacz kontakt660 403 643
Kupujący nie płaci wynagrodzenia agencji, ani pcc (podatku od czynności cywilnoprawnych). Koszt wynagrodzenia pokrywa Sprzedający Pośrednik odpowiedzialny zawodowo za wykonanie umowy pośrednictwa: Jacek Adamus (licencja nr: 5815)
--------------------------
Powyższe informacje nie stanowią oferty w rozumieniu przepisów Kodeksu Cywilnego. Pełna oferta: www.domnetplus.pl A.O.N. Domnet Plus Katowice ul. Klimczoka 9. Agent odpowiedzialny zawodowo: Jacek Adamus nr lic.: 5815
SPECJALNA OFERTA KREDYTOWA DLA NASZYCH KLIENTÓW !!!
Oferta wysłana z systemu BCK Galactica
Ogrzewanie: WLASNE DLA BUDYNKU

Kontakt do agenta:
Renata Sudoł
Zobacz kontaktbiuro@domnetplus.pl
Zobacz kontakt791 550 352

Oceń ofertę


3.4


652 wydruk błąd schowek

Ostatnio przeglądane

 

 

 

pobieranie

Pobierz wzór umowy

Umowa przedwstępna sprzedaży

wybierz plik do pobrania
doc pdf

 

 

Deweloperzy

);