Prosimy, odblokuj wyświetlanie reklam w naszym serwisie, są one związane z rynkiem nieruchomości.
To dzięki nim masz darmowy dostęp do naszych treści.

Z pozdrowieniami zespół KRN.pl :)


telefon

wiadomość

mapa

Mieszkanie, Szklarka Radnicka

Mieszkanie na sprzedaż Szklarka Radnicka (woj. Lubuskie)

Lokalizacja:

Szklarka Radnicka, , ul.

Powierzchnia:

46.60 m2

Cena:

80 000 zł

Dane szczegółowe

lokalizacja:
Lubuskie, Szklarka Radnicka
typ obiektu:
mieszkanie na sprzedaż
cena:
80 000 zł
pokoi:
2
piętro:
1
powierzchnia:
46.60 m2
numer ogłoszenia:
9365/3186/OMS
data dodania:
28-06-2023
data modyfikacji:
31-07-2023
jakość wypełnienia oferty:
64%

Szczegóły oferty

BURMISTRZ KROSNA ODRZAŃSKIEGO

OGŁASZA

trzeci przetarg ustny nieograniczony na sprzedaż lokalu mieszkalnego wraz z udziałem w nieruchomości wspólnej



Lp.: 1.

Położenie nieruchomości: Szklarka Radnicka 13 / 7 gmina Krosno Odrzańskie, dz. nr 65/1 o pow. 0,0401 ha, obręb 0014, udział w gruncie i częściach wspólnych budynku - 72/1000
KW ZG1K/ Zobacz kontakt00027026/5

Zgodnie ze studium uwarunkowań kierunków i zagospodarowania przestrzennego Gminy Krosno Odrzańskie działka 65/1 położona jest na terenie ozn. jako „MRU/MNU” – strefa rozwoju zabudowy.

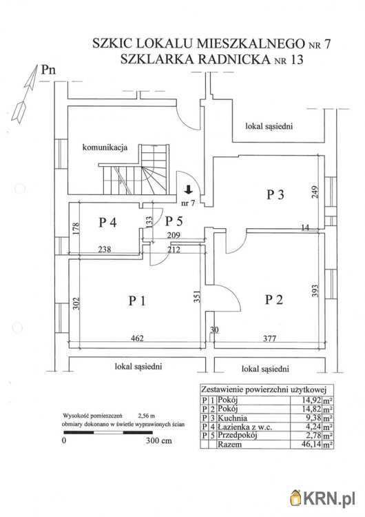
Opis lokalu:
Lokal mieszkalny nr 7 usytuowany jest na I piętrze, składający się z dwóch pokoi, kuchni łazienki z wc i przedpokoju o pow. 46,60 m2.
Budynek w którym znajduje się przedmiotowy lokal składa się z 15 lokali mieszkalnych.
Lokal wolny jest od obciążeń i zobowiązań.
Lokal mieszkalny posiada urządzoną księgę wieczystą.

Cena wywoławcza lokalu i udziału w gruncie [zł]:
80 000,00

Wysokość wadium [zł]:
8 000,00

Termin przetargów odbytych:
19 stycznia 2023 r.
09 maja 2023 r.

Uwagi: Standard wykończenia lokalu niekorzystny. Lokal kwalifikuje się do remontu.



Przetarg odbędzie się w dniu 27 czerwca 2023 roku o godz. 10:00 w siedzibie Urzędu Miasta w Krośnie Odrzańskim przy ul. Parkowej 1, budynek B, pokój nr 11



Nieruchomość stanowi własność Gminy Krosno Odrzańskie.



Nabywca nieruchomości zobowiązuje się do: zapoznania się przed przetargiem z istniejącym stanem prawnym i faktycznym nabywanej nieruchomości i przed przystąpieniem do przetargu do złożenia komisji pisemnego oświadczenia o zapoznaniu się ze stanem prawnym i faktycznym nieruchomości oraz warunkami przetargu i przyjęciu ich bez zastrzeżeń, pod rygorem niedopuszczenia tych osób do przetargu.

O wysokości postąpienia decydują uczestnicy przetargu, z tym że postąpienie nie może wynosić mniej niż 1% ceny wywoławczej, z zaokrągleniem w górę do pełnych dziesiątek złotych.





Warunki udziału w przetargu

1. W przetargu mogą brać udział osoby fizyczne i prawne, które wpłacą wadium w nieprzekraczalnym terminie, najpóźniej do dnia 22 czerwca 2023 r. na rachunek bankowy Urzędu Miasta w Krośnie Odrzańskim Santander Banka Polska S.A. Oddział Krosno Odrzańskie Nr Zobacz kontakt64 1090 155 Zobacz kontakt1 0000 0000 5500 1056. Za termin wpłaty wadium uznaje się datę wpływu na rachunku bankowym Urzędu Miasta w Krośnie Odrzańskim.


2. Na dowodzie wpłaty wadium należy podać adres nieruchomości, będącej przedmiotem przetargu oraz imię i nazwisko (nazwę firmy) osoby uczestniczącej w przetargu (nabywcy).


3. Osoby, którym przysługuje prawo do rekompensaty z tytułu pozostawienia nieruchomości poza granicami Rzeczypospolitej Polskiej w wyniku wypędzenia z byłego terytorium Rzeczypospolitej Polskiej lub jego opuszczenia w związku z wojną rozpoczętą w 1939 r. zwalnia się z obowiązku wniesienia wadium w wyznaczonym w ogłoszeniu o przetargu, jeżeli w terminie do dnia 21 czerwca 2023 r. zgłoszą pisemne uczestnictwo w przetargu, przedstawiając oryginał zaświadczenia lub decyzji potwierdzającej prawo do zaliczenia wartości nieruchomości pozostawionych poza obecnymi granicami Rzeczypospolitej Polskiej, a także złożone pisemne zobowiązanie do uiszczenia kwoty równej wysokości wadium ustalonego w razie uchylenia się od zawarcia umowy. Osoby te przed rozpoczęciem przetargu winny przedstawić komisji przetargowej dowód osobisty oryginał zaświadczenia lub decyzji potwierdzającej prawo do zaliczenia wartości nieruchomości pozostawionych poza obecnymi granicami Rzeczypospolitej Polskiej oraz wypisy z rejestrów, o których mowa w art. 19 ustawy z dnia 8 lipca 2005 r. o realizacji prawa do rekompensaty z tytułu pozostawienia nieruchomości poza obecnymi granicami Rzeczypospolitej Polskiej (j.t. Dz. U. z 2017 r. poz. 2097).


4. Osoby uczestniczące w przetargu zobowiązane są okazać komisji przetargowej oryginał dowodu wpłaty wadium oraz:

- w przypadku osoby fizycznej: dokument potwierdzający tożsamość uczestnika przetargu (dowód osobisty, paszport lub prawo jazdy); w przypadku pełnomocnika osoby fizycznej: dokument potwierdzający tożsamość pełnomocnika (dowód osobisty, paszport lub prawo jazdy) oraz pełnomocnictwo notarialne lub z notarialnie poświadczonym podpisem mocodawcy,

- w przypadku osoby fizycznej pozostającej w związku małżeńskim lub osoby fizycznej prowadząca działalność gospodarczą pozostającej w związku małżeńskim oświadczenie, czy nabycia nieruchomości dokonuje do majątku wspólnego czy do majątku odrębnego oraz, gdy osoba ta:

¡ pozostaje przy wspólnocie majątkowej (ustawowej lub umownej): oświadczenie współmałżonka iż wyraża on zgodę na wspólne nabycie nieruchomości będącej przedmiotem przetargu po cenie i na warunkach zaoferowanych przez współmałżonka uczestniczącego w przetargu;

¡ posiada rozdzielność majątkową: oświadczenie, iż na dzień przetargu pozostaje związana umową o rozdzielności majątkowej (przy czym w przypadku wygrania przetargu dokument potwierdzający powyższe powinien zostać przedstawiony u notariusza przed podpisaniem umowy sprzedaży nieruchomości);

- w przypadku osoby prowadzącej działalność gospodarczą: dokument potwierdzający tożsamość uczestnika przetargu (dowód osobisty, paszport lub prawo jazdy) oraz aktualne (nie dłużej niż sprzed 3 miesięcy) zaświadczenie o prowadzeniu działalności gospodarczej. W przypadku spółki cywilnej, zgoda wspólników w formie uchwały lub umowa spółki uprawniająca wspólnika/wspólników do nabywania nieruchomości bez zgody pozostałych wspólników; w przypadku pełnomocnika osoby fizycznej: dokument potwierdzający tożsamość pełnomocnika (dowód osobisty, paszport lub prawo jazdy) oraz pełnomocnictwo notarialne lub z notarialnie poświadczonym podpisem mocodawcy,

- w przypadku przedstawiciela osoby prawnej lub jednostki podlegającej wpisowi do KRS: dokument potwierdzający tożsamość przedstawiciela (dowód osobisty, paszport lub prawo jazdy) oraz aktualny (nie dłużej niż sprzed 3 miesięcy) odpis z rejestru sądowego; w przypadku pełnomocnika osoby prawnej lub jednostki podlegającej wpisowi do KRS: dokument potwierdzający tożsamość pełnomocnika (dowód osobisty, paszport lub prawo jazdy) oraz pełnomocnictwo notarialne lub z notarialnie poświadczonym podpisem mocodawcy,

- w pozostałych przypadkach dokumenty świadczące zgodnie z obowiązującymi przepisami o reprezentowaniu osoby lub jednostki organizacyjnej uczestniczącej w przetargu oraz dokument potwierdzający tożsamość osoby przystępującej w jej imieniu do przetargu (dowód osobisty, paszport lub prawo jazdy); w przypadku pełnomocnika takiej osoby lub jednostki pełnomocnictwo notarialne lub z notarialnie poświadczonym podpisem.


5. Z cudzoziemcem na przetargu winien uczestniczyć tłumacz przysięgły. Podmioty zagraniczne wiążą przepisy ustawy z dnia 24 marca 1920 r. o nabywaniu nieruchomości przez cudzoziemców (j.t. Dz. U. z 2017 r. poz. 2278).


6. Cenę nabycia nieruchomości jej Nabywca winien wpłacić najpóźniej do dnia zawarcia umowy notarialnej.


7. Wpłacone wadium, uczestnikowi, który wygrał przetarg zalicza się na poczet ceny nabycia nieruchomości. Uczestnikowi przetargu wpłacone wadium zwraca się niezwłocznie nie później niż przed upływem 3 dni od dnia: odwołania przetargu, zamknięcia przetargu, unieważnienia przetargu, zakończenia przetargu wynikiem negatywnym.


8. Termin zawarcia umowy notarialnej ustalony zostanie najpóźniej w ciągu 21 dni od dnia rozstrzygnięcia przetargu.


9. Jeżeli osoba, ustalona jako Nabywca nie stawi się bez usprawiedliwienia w miejscu i terminie zawarcia umowy sprzedaży, Burmistrz Krosna Odrzańskiego może odstąpić od zawarcia umowy, a wpłacone wadium nie podlega zwrotowi.


10. Koszt zawarcia aktu notarialnego obciąża w całości kupującego.


11. Cena sprzedaży lokalu mieszkalnego zwolniona jest z podatku VAT, na podstawie art. 43 ust. 1 pkt 10 ustawy z dnia 11 marca 2004 r. o podatku od towarów i usług (j.t. Dz. U. z 2022 r. poz. 931).


12. Przetarg zostanie przeprowadzony zgodnie z rozporządzeniem Rady Ministrów z dnia 14 września 2004 r. w sprawie sposobu i trybu przeprowadzania przetargów oraz rokowań na zbycie nieruchomości (j.t. Dz. U. 2021 r., poz. 2213) i przepisami ustawy z dnia 21 sierpnia 1997 r. o gospodarce nieruchomościami (j.t. Dz. U. z 2021 r., poz. 1899).


13. Nabywca przejmuje przedmiot przetargu w stanie istniejącym.


14. Przetarg może być odwołany jedynie z ważnych powodów w trybie określonym w przepisie art. 38 ust. 4 ustawy z dnia 21 sierpnia 1997 r. o gospodarce nieruchomościami (j.t. Dz. U. z 2021 r. poz. 1899).


15. Oferowany lokal do sprzedaży można oglądać 16 czerwca 2023 r. w godzinach 13:00 – 14:00 (tel. Zobacz kontakt683835412, Zobacz kontakt683835185 wew. 4).


16. Dodatkowych informacji o przedmiocie przetargu można uzyskać w Wydziale Gospodarki Nieruchomościami, Ochrony Środowiska i Rolnictwa Urzędu Miasta w Krośnie Odrzańskim, ul. Parkowa 1 (budynek B), pod numerem tel. Zobacz kontakt68 410 97 65, w godzinach pracy urzędu.


Ogłoszenie o przetargu jest zamieszczone na stronie internetowej http://bip.wrota.lubuskie.pl/ugkrosnoodrzanskie/


Krosno Odrzańskie, 18 maj 2023 r.



Z up. BURMISTRZA

Roman Siemiński

Zastępca Burmistrza



Kontakt:
Urząd Miasta Krosno Odrzańskie
tel: Zobacz kontakt68 4109 766

Zobacz kontaktsekretariat@krosnoodrzanskie.pl


Oferta wysłana z programu dla biur nieruchomości ASARI CRM (asaricrm.com)



Kontakt:
Numer telefonu: Zobacz kontakt68 4109 766

Adres email: Zobacz kontaktsekretariat@krosnoodrzanskie.pl

Oceń ofertę


9.99


2414 wydruk błąd schowek

Ostatnio przeglądane

 

 

 

pobieranie

Pobierz wzór umowy

Umowa przedwstępna sprzedaży

wybierz plik do pobrania
doc pdf

 

 

Deweloperzy

);