Prosimy, odblokuj wyświetlanie reklam w naszym serwisie, są one związane z rynkiem nieruchomości.
To dzięki nim masz darmowy dostęp do naszych treści.

Z pozdrowieniami zespół KRN.pl :)


telefon

wiadomość

mapa

Mieszkanie, Kraków, Prądnik Biały/Bronowice Wielkie, ul. J. Chełmońskiego

Mieszkanie na sprzedaż Kraków (woj. Małopolskie), Prądnik Biały/Bronowice Wielkie, ul. J. Chełmońskiego

Lokalizacja:

Kraków, Prądnik Biały/Bronowice Wielkie, ul. J. Chełmońskiego

Powierzchnia:

46.37 m2

Cena:

830 000 zł

Dane szczegółowe

lokalizacja:
Małopolskie, Kraków, Prądnik Biały/Bronowice Wielkie, ul. J. Chełmońskiego
typ obiektu:
mieszkanie na sprzedaż
cena:
830 000 zł
pokoi:
2
piętro:
parter
ilość pięter w budynku:
3
powierzchnia:
46.37 m2
powierzchnia dodatkowa:
balkon
numer ogłoszenia:
BS1-MS-313810-15
data dodania:
20-03-2026
data modyfikacji:
20-03-2026
jakość wypełnienia oferty:
94%

Szczegóły oferty



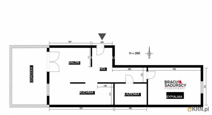
Dwustronne mieszkanie z ogródkiem na ul. Chełmońskiego, Bronowice Residence / ładne zachody słońca na tarasie Na sprzedaż funkcjonalne mieszkanie o powierzchni 46,37 m², położone na parterze kameralnego, trzypiętrowego budynku z 2014 roku na ogrodzonym osiedlu Bronowice Residence przy ul. Chełmońskiego. Osiedle objęte monitoringiem, z przyjaznym sąsiedztwem i zadbaną zielenią. Po drugiej stronie osiedla plac zabaw (nie dochodzą dźwięki), miejsca parkingowe ogólnodostępne dla mieszkańców za bramą. Dobrze rozwinięta infrastruktura handlowo- usługowa w okolicy: blisko szkoła podstawowa, przedszkole, piekarnia, fryzjer, sklepy, bardzo blisko też Galeria Bronowice; 5-6 min do pętli autobusowej linii 168, 501, 511, 611.

Rozkład mieszkania:

•- 
- Dwustronna ekspozycja: wschód-zachód, zapewniająca naturalne światło przez cały dzień

•- 
- Przestronny pokój z aneksem kuchennym - 24,5 m² (możliwość łatwego wydzielenia osobnej kuchni lub kuchni z jadalnią) - ekspozycja zachodnia

•- 
- Sypialnia - 13,5 m² - ekspozycja wschodnia

•- 
- Łazienka - 4 m²

•- 
- Przedpokój - 4,5 m²

Z salonu wyjście na taras o pow. ok 13 m 2
i do ogródka. Ogródek z zachodnim widokiem - idealny na relaks przy zachodzie słońca. Brak bezpośredniego sąsiedztwa na przeciwko innych bloków zapewnia ciszę i poczucie przestrzeni. Ogrzewanie oraz ciepła woda miejskie, w bloku nie ma gazu.
W cenie mieszkania pozostaje pełne umeblowanie (jak na zdjęciach). Kuchnia wyposażona w AGD: zmywarka Samsung, piekarnik Electrolux, płyta indukcyjna, duża lodówka.
Mieszkanie malowane 3 lata temu.
Dzięki dużej ilości biurowców i korporacji w okolicy, lokalizacja ta jest pożądana także przy wynajmie, dlatego oferta ta sprawdzi się także jako mieszkanie pod wynajem.


Czynsz: ok 690,93 zł / 1 os ( z zal.na ciepłą i zimną wodę, CO, śmieci, f.remontowy, administrację)
Cena: 830 000 zł do rozsądnej negocjacji

Zadzwoń już dziś i umów się na prezentację mieszkania!
Zapraszam do kontaktu:
Julia Tarkowska Zobacz kontakt505 083 150
Ogłoszenie ma charakter informacyjny i nie stanowi oferty handlowej w rozumieniu art.66 §1 Kodeksu cywilnego. Dokładamy wszelkich starań, aby informacje zawarte w ogłoszeniu były rzetelne i aktualne.
::DODATKOWE INFORMACJE
Kategoria oferty: Mieszkania dla rodzin z dziećmi Rodzaj budynku: nowe budownictwo Dozór budynku: os. zamknięte Głośność: ciche Widok: na osiedle Gaz: brak Woda: ciepła - miejska Dojazd: asfaltowa/kostka Otoczenie: osiedle Ogrzewanie: C.O. miejskie Internet: TAK Telewizja kablowa: TAK Komunikacja publ.: autobus miejski Winda: TAK Liczba wind: 1 Rozkład: dwustronne rozkładowe Usytuowanie: dwustronne Przystosowania dla niepełnosprawnych: TAK Teren ogrodzony: TAK Opłaty w czynszu: wywóz śmieci, wywóz nieczystości, woda/ryczałt na wodę, woda ciepła, Winda, monitoring, fundusz remontowy, Części wspólne, CO, administracja Opłaty wg liczników: Woda zimna, Woda ciepła, prąd, CO Rodzaj mieszkania: jednopoziomowe Stan lokalu: bardzo dobry Okna: PCV Instalacje: dobre Balkon: taras Liczba balkonów: 1 Powierzchnia balkonów/tarasów [m2]: 13 Powierzchnia użytkowa [m2]: 46,3700 Rok budowy: 2014 Liczba pokoi: 2 Wysokość pomieszczeń [m]: 2,6600 Liczba sypialni: 1 Powierzchnia pokoi [m2]: 20,38 / 13,35
Podłogi pokoi: panele podłogowe Ściany pokoi: malowane, gładzie gipsowe Wystawa okien - pokoje : Wsch, Zach Typ kuchni: aneks kuchenny - połączony z jadalnią Rodzaj kuchni: Z OKNEM Podłoga kuchni: płytki Wystawa okien - kuchnia: Zach Typ łazienki: razem z wc Liczba łazienek: 1 Powierzchnia łazienki [m2]: 4,47 Glazura łazienki: nowego typu Podłoga łazienki: płytki Wyposażenie łazienki: pralka, WC, wanna, umywalka Ściany łazienki: glazura Liczba przedpokoi: 1 Powierzchnia przedpokoi [m2]: 8,17 Podłoga przedpokoi: płytki Ściany przedpokoi: malowane
::LINK DO STRONY
https://sadurscy.pl/offer/BS1-MS-313810
Zobacz Wirtualny Spacer: https://my.matterport.com/show/?m=g3KMtUAxazS
::KONTAKT DO AGENTA
Julia Tarkowska + Zobacz kontakt48 505-083-150 Zobacz kontaktjulia@sadurscy.pl
::DANE BIURA
Oddział BS1, Kapelanka Kapelanka 1A/1 30-347 Kraków Zobacz kontakt12 429-25-12
Pośrednik odpowiedzialny zawodowo za wykonanie umowy pośrednictwa: Dariusz Sadurski (licencja nr: 803)

Ogrzewanie: Miejskie

Kontakt do agenta:
Julia Tarkowska
Zobacz kontaktjulia@sadurscy.pl
+ Zobacz kontakt48 505-083-150

Oceń ofertę


3.4


56 wydruk błąd schowek

Ostatnio przeglądane

 

 

 

pobieranie

Pobierz wzór umowy

Umowa przedwstępna sprzedaży

wybierz plik do pobrania
doc pdf

 

 

Deweloperzy

);