Prosimy, odblokuj wyświetlanie reklam w naszym serwisie, są one związane z rynkiem nieruchomości.
To dzięki nim masz darmowy dostęp do naszych treści.

Z pozdrowieniami zespół KRN.pl :)


telefon

wiadomość

mapa

Mieszkanie, Wrocław, Krzyki, ul. Świstackiego

Mieszkanie na sprzedaż Wrocław (woj. Dolnośląskie), Krzyki, ul. Świstackiego

Lokalizacja:

Wrocław, Krzyki, ul. Świstackiego

Powierzchnia:

46.00 m2

Cena:

619 000 zł

Dane szczegółowe

lokalizacja:
Dolnośląskie, Wrocław, Krzyki, ul. Świstackiego
typ obiektu:
mieszkanie na sprzedaż
cena:
619 000 zł
pokoi:
3
piętro:
6
ilość pięter w budynku:
6
powierzchnia:
46.00 m2
numer ogłoszenia:
38639
data dodania:
15-03-2026
data modyfikacji:
15-03-2026
jakość wypełnienia oferty:
70%

Szczegóły oferty

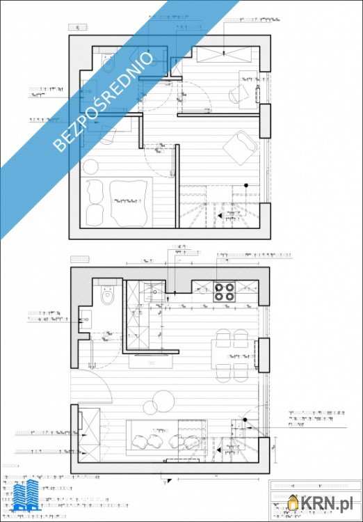
OGŁOSZENIE BEZPOŚREDNIE - BEZ PROWIZJI Nowoczesne, bardzo ładne, trzypokojowe mieszkanie we Wrocławiu o pow. 46 m w apartamentowcu z 2016 roku z windą na Przedmieściu Oławskim przy ul. Świstackiego Wszędzie blisko, na piechotę dojdzie się w 6 minut do Dworca głównego a w 12 minut do Rynku. Mieszkanie dwupoziomowe znajduje się na 6 piętrze w budynku sześciopiętrowym składa się z trzech niezależnych pokoi, kuchni, dwóch łazienek z toaletą. Mieszkanie słoneczne do wykończenia wg przemyślanego projektu który przekażę kupującemu. Okna mieszkania wychodzą na patio więc mieszkanie jest ciche i przytulne oddzielone od miejskiego hałasu. Mieszkanie w stanie deweloperskim do wykończenia. W mieszkaniu zamontowano klimatyzację. Rozkład pomieszczeń daje swobodę poruszania się w nim, a ustawny i funkcjonalny układ czyni to mieszkanie bardzo atrakcyjne i wygodne. Mieszkanie znajduje się w nowoczesnym, monitorowanym budynku z własną portiernią i zielonym patio. Dużym atutem mieszkania jest świetna lokalizacja oraz niski czynsz. Lokalizacja jest bardzo dogodna. W pobliżu znajdziesz: Park na Niskich Łąkach Muzeum Etnograficzne wiele restauracji i kawiarni, takich jak "Art Cafe" i "Gruby Benek" przystanki tramwajowe i autobusowe, co zapewnia łatwy dojazd do centrum miasta. Nie czekaj! To mieszkanie może być Twoje. Skontaktuj się i umów się na prezentację już dziś! Do mieszkania przynależy miejsce w garażu podziemnym dodatkowo 35 000 zł oraz komórka lokatorska dodatkowo 10 000 zł Grunt uregulowany, własność. UWAGA Zdjęcia przedstawiają wizualizację projektu wykończenia mieszkania. Oferta bezpośrednia bez prowizji i ukrytych kosztów. Możliwość negocjacji ceny. Ogłoszenie dodane do wielu portali nieruchomości przez portal www.odwlasciciela.pl

Oceń ofertę


0


27 wydruk błąd schowek

Ostatnio przeglądane

 

 

 

pobieranie

Pobierz wzór umowy

Umowa przedwstępna sprzedaży

wybierz plik do pobrania
doc pdf

 

 

Deweloperzy

);