Prosimy, odblokuj wyświetlanie reklam w naszym serwisie, są one związane z rynkiem nieruchomości.
To dzięki nim masz darmowy dostęp do naszych treści.

Z pozdrowieniami zespół KRN.pl :)


telefon

wiadomość

mapa

Mieszkanie, Zawada

Mieszkanie na sprzedaż Zawada (woj. Małopolskie)

Lokalizacja:

Zawada, , ul.

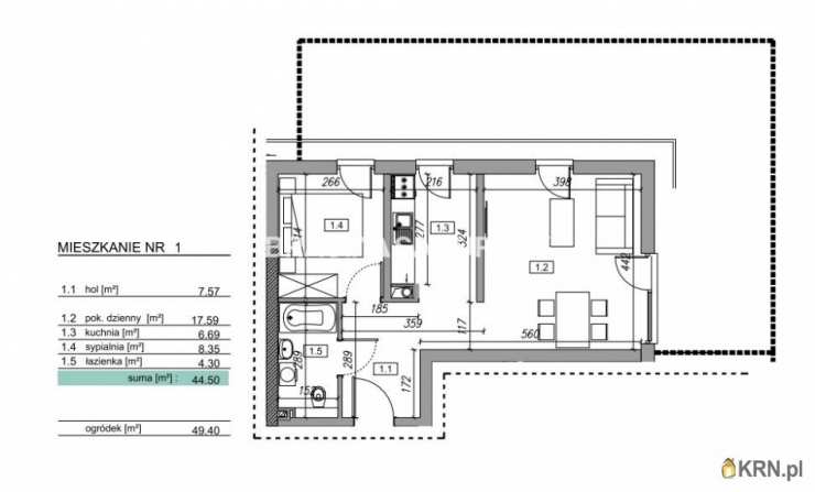
Powierzchnia:

45.45 m2

Cena:

457 792 zł

Dane szczegółowe

lokalizacja:
Małopolskie, Zawada
typ obiektu:
mieszkanie na sprzedaż
cena:
457 792 zł
pokoi:
2
piętro:
parter
ilość pięter w budynku:
3
powierzchnia:
45.45 m2
powierzchnia dodatkowa:
ogródek
media:
woda
numer ogłoszenia:
BS2-MS-305842-24
data dodania:
20-02-2026
data modyfikacji:
20-02-2026
jakość wypełnienia oferty:
88%

Szczegóły oferty


NOWA INWESTYCJA DEWELOPERSKA - GOTOWA DO ZAMIESZKANIA!

ATRAKCYJNE CENY - FUNKCJONALNE MIESZKANIA W SPOKOJNEJ OKOLICY
Oferujemy:

Funkcjonalne układy mieszkań
od 25 m² do 57 m² - idealne dla singli, par i rodzin.
Widok na góry
- codzienny kontakt z naturą.
Ogrzewanie podłogowe , które zwiększa komfort życia.
Pompy ciepła
i
wentylacja z rekuperacją , gwarantujące oszczędność i ekologiczne rozwiązania.
Panele fotowoltaiczne , wspomagające niższe koszty utrzymania.
Niskie opłaty eksploatacyjne
dzięki nowoczesnym technologiom budowlanym.
Miejsca parkingowe zewnętrzne , dostępne dla mieszkańców.
Część mieszkań wykończonych „pod klucz” , gotowych do zamieszkania od zaraz.
Prywatny bus osiedlowy
- darmowy transport dla mieszkańców.
Możliwość wykupienia miejsca postojowego:
25 000zł!!

Doskonała lokalizacja:
Osiedle znajduje się na wzgórzu, w zacisznej okolicy, z dala od zgiełku i ruchliwych ulic.
W sąsiedztwie malownicze trasy rowerowe i spacerowe - idealne dla rodzin, właścicieli psów i osób dbających o zdrowy tryb życia.

Odległości:
Kraków - 18 km
Myślenice - 5 km
Jezioro Dobczyckie - 8 km
Sport Arena Myślenice - 10 km
Lotnisko Balice - 36 km
Zakopane - 84 km

Atrakcje osiedla:
Prywatny kort tenisowy.
Park i jeziorko na terenie inwestycji.
Ścieżki biegowe i spacerowe.
Zadaszona wiata grillowa - idealna na spotkania z rodziną i przyjaciółmi.
Inwestycja przyjazna środowisku:
Dzięki zastosowaniu nowoczesnych i ekologicznych rozwiązań budowlanych mieszkańcy osiedla zaoszczędzą na rachunkach za ogrzewanie, ciepłą wodę i oświetlenie.
Zamieszkaj w miejscu, które łączy komfort, nowoczesność i bliskość natury!

W celu uzyskania więcej informacji zapraszam do kontaktu:
Arkadiusz Zemła
Telefon:
+ Zobacz kontakt48 518 706 552
E-mail:
Zobacz kontaktarek@sadurscy.pl
::DODATKOWE INFORMACJE
Rodzaj budynku: blok Dozór budynku: os. zamknięte Głośność: idealnie ciche Plac zabaw: TAK Widok: las Gaz: brak Woda: tak - miejska Dojazd: ASFALTOWA Otoczenie: jezioro i las Ogrzewanie: pompa ciepła Komunikacja publ.: bus Winda: TAK Rozkład: dwustronne Usytuowanie: dwustronne Drzwi antywłamaniowe: TAK Przystosowania dla niepełnosprawnych: TAK Teren ogrodzony: TAK Opłaty w czynszu: wywóz śmieci, woda ciepła, woda, Winda, sprzątanie, ogrzewanie, ochrona, Części wspólne, administracja Opłaty wg liczników: CO Rodzaj mieszkania: jednopoziomowe Garaż: miejsce postojowe przed budynkiem Stan lokalu: deweloperski Okna: PCV 3 komorowe Instalacje: nowe Balkon: brak Powierzchnia ogródka [m2]: 49,4000 Powierzchnia użytkowa [m2]: 45,4500 Rok budowy: 2024 Liczba pokoi: 2 Wysokość pomieszczeń [m]: 2,6000 Liczba sypialni: 2
::LINK DO STRONY
https://sadurscy.pl/offer/BS2-MS-305842
::KONTAKT DO AGENTA
Arkadiusz Zemła + Zobacz kontakt48 518-706-552 Zobacz kontaktarek@sadurscy.pl
::DANE BIURA
Oddział BS2, Rynek Pierwotny Przewóz
47 30-081 Kraków Zobacz kontakt12 630-90-45
--------------------------
::GRATIS | Nasza prowizja zawiera: koszt przedwstępnej notarialnej umowy sprzedaży nieruchomości z rynku wtórnego. ::GWARANCJA | Gwarancja zwrotu zadatku. Więcej informacji na sadurscy.pl/zwrot-zadatku/

Ogrzewanie: POMPA CIEPLA

Kontakt do agenta:
Arkadiusz Zemła
Zobacz kontaktarek@sadurscy.pl
+ Zobacz kontakt48 518-706-552

Oceń ofertę


0


30 wydruk błąd schowek

Ostatnio przeglądane

 

 

 

pobieranie

Pobierz wzór umowy

Umowa przedwstępna sprzedaży

wybierz plik do pobrania
doc pdf

 

 

Deweloperzy

);