Prosimy, odblokuj wyświetlanie reklam w naszym serwisie, są one związane z rynkiem nieruchomości.
To dzięki nim masz darmowy dostęp do naszych treści.

Z pozdrowieniami zespół KRN.pl :)


telefon

wiadomość

mapa

Mieszkanie, Kraków, Podgórze, ul. Wadowicka

Mieszkanie na sprzedaż Kraków (woj. Małopolskie), Podgórze, ul. Wadowicka

Lokalizacja:

Kraków, Podgórze, ul. Wadowicka

Powierzchnia:

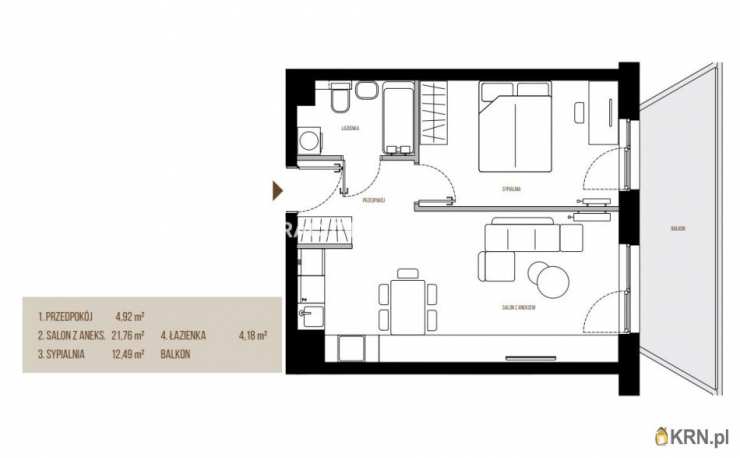
43.35 m2

Cena:

788 970 zł

Dane szczegółowe

lokalizacja:
Małopolskie, Kraków, Podgórze, ul. Wadowicka
typ obiektu:
mieszkanie na sprzedaż
cena:
788 970 zł
pokoi:
2
piętro:
2
ilość pięter w budynku:
6
powierzchnia:
43.35 m2
powierzchnia dodatkowa:
balkon
numer ogłoszenia:
BS2-MS-305637
data dodania:
06-12-2024
data modyfikacji:
06-12-2024
jakość wypełnienia oferty:
94%

Szczegóły oferty


Bracia Sadurscy mają przyjemność zaprezentować na sprzedaż inwestycję . Położenie między centrum handlowym Bonarka a strategicznym rondem Matecznego zapewnia bliskość malowniczego Podgórza. Łatwy dostęp do głównych arterii komunikacyjnych - od Trasy Łagiewnickiej po szybki zjazd na autostradę. Inwestycja idealnie wpisując się w tętniący rytm miejskiego życia.
Charakterystyka inwestycji:

Mieszkania o powierzchni od 39 m² do 114 m²
6 pięter
2 lokale usługowo-handlowe
249 miejsc parkingowych w garażu podziemnym
Komórki lokatorskie dostępne w hali garażowej oraz na piętrach
10 miejsc postojowych na zewnątrz

Centrum inwestycji stanowi wyjątkowy dziedziniec - przestrzeń pełna życia, gdzie architektura harmonijnie współgra z naturą.
Termin realizacji:
zakończenie budowy przewidziane na lipiec 2026 roku, z finalizacją umów końcowych najpóźniej w kwietniu 2027 roku.
Zapraszamy do kontaktu!
Opiekun Oferty:
Michał Bańdo
Zobacz kontaktmichal2@sadurscy.pl
tel.
+ Zobacz kontakt48 518-714-002

Bracia Sadurscy are pleased to present for sale. . Situated between the Bonarka shopping center and the strategic Matecznego roundabout, this location offers proximity to the picturesque Podgórze district. It provides convenient access to main transportation routes - from the Łagiewnicka Route to quick access to the motorway, perfectly integrating with the vibrant rhythm of city life.
Investment highlights:

Apartments ranging from 39 m² to 114 m²
6 floors
2 commercial and service premises
249 parking spaces in the underground garage
Storage rooms available in the garage hall and on the residential floors
10 outdoor parking spaces

The centerpiece of the development is an extraordinary courtyard - a lively space where architecture harmoniously interacts with nature.
Completion timeline:
construction is scheduled to be completed in July 2026, with final agreements to be concluded by April 2027 at the latest.
Michał Bańdo
Zobacz kontaktmichal2@sadurscy.pl
tel.
+ Zobacz kontakt48 518-714-002

::DODATKOWE INFORMACJE
Kategoria oferty: Mieszkania dla rodzin z dziećmi Rodzaj budynku: apartamentowiec Dozór budynku: Ochrona całodobowa Głośność: umiarkowanie ciche Widok: na inne budynki Gaz: brak Woda: ciepła - miejska Dojazd: asfalt Otoczenie: centrum miasta Ogrzewanie: C.O. miejskie Komunikacja publ.: miejska, tramwaj Odległość do komunikacji publicznej [m]: 200 Odl. do sklepu [m]: 250 Odl. do szkoły [m]: 1000 Odl. do przedszkola [m]: 500 Winda: TAK Liczba wind: 1 Przystosowania dla niepełnosprawnych: TAK Teren ogrodzony: TAK Opłaty w czynszu: Winda, monitoring, Części wspólne, CO, administracja Opłaty wg liczników: prąd Rodzaj mieszkania: apartament Garaż: garaż podziemny Stan lokalu: bardzo dobry Okna: PCV Instalacje: ELEKTRYCZNA Balkon: jest Liczba balkonów: 1 Powierzchnia balkonów/tarasów [m2]: 10,1900 Rok budowy: 2026 Liczba pokoi: 2 Liczba sypialni: 2 Typ kuchni: aneks kuchenny - połączony z salonem Rodzaj kuchni: otwarta na pokój Typ łazienki: nowa Liczba łazienek: 1 Liczba przedpokoi: 1
::LINK DO STRONY
https://sadurscy.pl/offer/BS2-MS-305637
::KONTAKT DO AGENTA
Michał Bańdo + Zobacz kontakt48 518-714-002 Zobacz kontaktmichal2@sadurscy.pl
::DANE BIURA
Oddział BS2, Rynek Pierwotny Przewóz
47 30-081 Kraków Zobacz kontakt12 630-90-45
Pośrednik odpowiedzialny zawodowo za wykonanie umowy pośrednictwa: Michał Bańdo (licencja nr: 27635)
--------------------------
::GRATIS | Nasza prowizja zawiera: koszt przedwstępnej notarialnej umowy sprzedaży nieruchomości z rynku wtórnego. ::GWARANCJA | Gwarancja zwrotu zadatku. Więcej informacji na sadurscy.pl/zwrot-zadatku/

Ogrzewanie: Miejskie

Kontakt do agenta:
Michał Bańdo
Zobacz kontaktmichal2@sadurscy.pl
+ Zobacz kontakt48 518-714-002

Oceń ofertę


3


430 wydruk błąd schowek

Ostatnio przeglądane

 

 

 

pobieranie

Pobierz wzór umowy

Umowa przedwstępna sprzedaży

wybierz plik do pobrania
doc pdf

 

 

Deweloperzy

);