Prosimy, odblokuj wyświetlanie reklam w naszym serwisie, są one związane z rynkiem nieruchomości.
To dzięki nim masz darmowy dostęp do naszych treści.

Z pozdrowieniami zespół KRN.pl :)


telefon

wiadomość

mapa

Mieszkanie, Kraków, Grzegórzki, ul. Fabryczna

Mieszkanie na sprzedaż Kraków (woj. Małopolskie), Grzegórzki, ul. Fabryczna

Lokalizacja:

Kraków, Grzegórzki, ul. Fabryczna

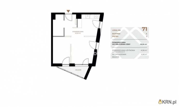
Powierzchnia:

42.34 m2

Cena:

650 980 zł

Dane szczegółowe

lokalizacja:
Małopolskie, Kraków, Grzegórzki, ul. Fabryczna
typ obiektu:
mieszkanie na sprzedaż
cena:
650 980 zł
pokoi:
2
piętro:
3
ilość pięter w budynku:
8
powierzchnia:
42.34 m2
numer ogłoszenia:
BS2-MS-311572-7
data dodania:
19-12-2025
data modyfikacji:
19-12-2025
jakość wypełnienia oferty:
82%

Szczegóły oferty


Prestiżowe mieszkania i lokale użytkowe w sercu miasta

Bracia Sadurscy mają przyjemność zaprezentować do sprzedaży mieszkania / lokale w nowej inwestycji.


Inwestycja w rejonie ul. Fabrycznej
wyróżnia się eleganckim, nowoczesnym projektem oraz doskonałą lokalizacją.
Daje poczucie prestiżu swoim użytkownikom. Stanowi korzyść zarówno dla osób, które będą spędzać tu swój czas pracy, jak i ten, całkiem prywatny, z rodziną i przyjaciółmi.
Docenią ją również Ci, którzy przeznaczą lokale na najem krótko i długoterminowy lub na swoje biuro.
Będzie to prawdziwe miejsce spotkań ciekawych i aktywnych ludzi w przestrzeniach gwarantujących komfort i spokój, przyjaznych zarówno jako miejsca pracy, jak i wypoczynku.
W ofercie wiele
lokali użytkowych do dowolnej aranżacji, przewidzieliśmy w nim również przestrzenie wspólne jako niezbędne elementy naszej filozofii SHARE-WORK-RENT

Znajdziesz tu przestrzeń dla siebie i swoich bliskich. Odpowiednie zarówno na spotkania rodzinne, towarzyskie jak i biznesowe.


W budynku 8 kondygnacyjnym wiele udogodnień i nowoczesnych rozwiązań
Eleganckie klatki schodowe. Wykończenia szkłem. Sale spotkań. Lobby z recepcją. Przestrzeń coworking. Ogólnodostępny taras na dachu. Pralnia. 3 windy. Garaż podziemny. Stojaki na rowery.
Każdy lokal przygotowany do montażu indywidualnej klimatyzacji.
Inwestycja realizowana w kilku etapach. Pierwsze lokale do odbioru w IV kwartale 2025.
Ceny netto - możliwość odliczenia podatku VAT 23 %

Zapraszam do kontaktu

Marek Popiela


tel; + Zobacz kontakt48 518 967 677




mail; Zobacz kontaktmarek@sadurscy.pl
::DODATKOWE INFORMACJE
Kategoria oferty: Mieszkania dla rodzin z dziećmi Rodzaj budynku: apartamentowiec Parking strzeżony (odległość w metrach) [m]: 100 Dozór budynku: Ochrona całodobowa Widok: panorama miasta Gaz: brak Woda: ciepła - miejska Dojazd: asfaltowa/kostka Otoczenie: centrum miasta Ogrzewanie: C.O. miejskie Alarm: TAK Internet: TAK Winda: TAK Liczba wind: 1 Rozkład: 1 Usytuowanie: jednostronne Drzwi antywłamaniowe: TAK Klimatyzacja: TAK Rodzaj mieszkania: jednopoziomowe Stan lokalu: deweloperski Okna: PCV Instalacje: nowe Tarasy: taras Liczba tarasów: 1 Rok budowy: 2026 Liczba pokoi: 2 Wysokość pomieszczeń [m]: 2,5000 Liczba sypialni: 1 Podłogi pokoi: wylewka Ściany pokoi: inne Typ łazienki: nowa Liczba łazienek: 1 Glazura łazienki: nowego typu Podłoga łazienki: wylewka betonowa Ściany łazienki: inne Glazura WC: nowego typu Podłoga WC: wylewka Podłoga przedpokoi: wylewka Ściany przedpokoi: inne
::LINK DO STRONY
https://sadurscy.pl/offer/BS2-MS-311572
::KONTAKT DO AGENTA
Marek Popiela + Zobacz kontakt48 518-967-677 Zobacz kontaktmarek@sadurscy.pl
::DANE BIURA
Oddział BS2, Rynek Pierwotny Przewóz
47 30-081 Kraków Zobacz kontakt12 630-90-45
--------------------------
::GRATIS | Nasza prowizja zawiera: koszt przedwstępnej notarialnej umowy sprzedaży nieruchomości z rynku wtórnego. ::GWARANCJA | Gwarancja zwrotu zadatku. Więcej informacji na sadurscy.pl/zwrot-zadatku/

Ogrzewanie: Miejskie

Kontakt do agenta:
Marek Popiela
Zobacz kontaktmarek@sadurscy.pl
+ Zobacz kontakt48 518-967-677

Oceń ofertę


0


6 wydruk błąd schowek

Ostatnio przeglądane

 

 

 

pobieranie

Pobierz wzór umowy

Umowa przedwstępna sprzedaży

wybierz plik do pobrania
doc pdf

 

 

Deweloperzy

);