Prosimy, odblokuj wyświetlanie reklam w naszym serwisie, są one związane z rynkiem nieruchomości.
To dzięki nim masz darmowy dostęp do naszych treści.

Z pozdrowieniami zespół KRN.pl :)


telefon

wiadomość

mapa

Mieszkanie, Kraków, Wzgórza Krzesławickie/Kantorowice, ul. Niebyła

Mieszkanie na sprzedaż Kraków (woj. Małopolskie), Wzgórza Krzesławickie/Kantorowice, ul. Niebyła

Lokalizacja:

Kraków, Wzgórza Krzesławickie/Kantorowice, ul. Niebyła

Powierzchnia:

42.10 m2

Cena:

526 000 zł

Dane szczegółowe

lokalizacja:
Małopolskie, Kraków, Wzgórza Krzesławickie/Kantorowice, ul. Niebyła
typ obiektu:
mieszkanie na sprzedaż
cena:
526 000 zł
pokoi:
2
piętro:
2
ilość pięter w budynku:
2
powierzchnia:
42.10 m2
powierzchnia dodatkowa:
balkon
numer ogłoszenia:
DNX-MS-30734-1
data dodania:
24-02-2026
data modyfikacji:
19-03-2026
jakość wypełnienia oferty:
88%

Szczegóły oferty


OFERTA WYŁĄCZNIE W BIURZE DANAX

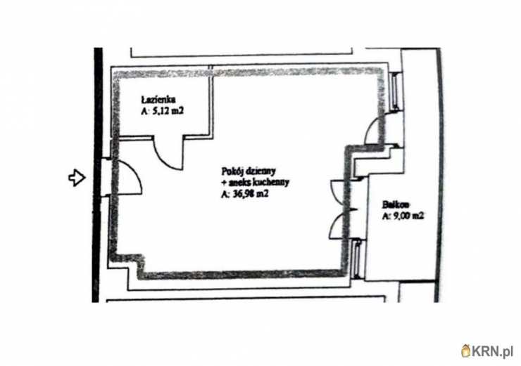
Na sprzedaż: jasne mieszkanie 42-Żm² w stanie deweloperskim - Wzgórza Krzesławickie, Kantorowice

Nowoczesne, słoneczne mieszkanie o powierzchni
42,1-Żm2
z balkonem
9-Żm2
,
1
miejscem postojowym
w garażu podziemnym oraz
komórką lokatorską .
Istnieje możliwość wydzielenia drugiego pokoju.
Atuty:

jasne, przestronne wnętrze

duży balkon do wypoczynku

dwa miejsca postojowe w garażu podziemnym

komórka lokatorska

elastyczny układ - opcja dodatkowego pokoju

Cena:

Mieszkanie:
526-Ż000 zł

1 Miejsce postojowe:
35-Ż000 zł
(zakup opcjonalny - nie ma konieczności nabywać miejsca)

Komórka lokatorska:
10-Ż000 zł
(obligatoryjny zakup)

Lokalizacja:
Spokojny, zielony rejon
Kantorowice
(Wzgórza Krzesławickie). W pobliżu sklepy, szkoły i tereny rekreacyjne. Do najbliższej
pętli autobusowej
ok. 1,1-Żkm, do
pętli tramwajowej
ok. 1,3-Żkm - wygodny dojazd do centrum Krakowa.

Zapraszamy do kontaktu i na prezentację mieszkania. ::DODATKOWE INFORMACJE
Rodzaj budynku: blok Głośność: ciche Widok: na podwórko Gaz: brak Woda: ciepła - miejska Dojazd: asfalt Otoczenie: działki niezabudowane Ogrzewanie: C.O. miejskie Komunikacja publ.: autobus miejski Winda: TAK Liczba wind: 1 Rozkład: rozkładowe Usytuowanie: jednostronne Opłaty w czynszu: wywóz śmieci, woda/ryczałt na wodę, woda ciepła, ogrzewanie, fundusz remontowy, Części wspólne, administracja Rodzaj mieszkania: jednopoziomowe Garaż: garaż podziemny Piwnica [m2]: 2,9500 Stan lokalu: deweloperski Okna: PCV Instalacje: nowe Balkon: jest Liczba balkonów: 1 Powierzchnia balkonów/tarasów [m2]: 9 Powierzchnia użytkowa [m2]: 42,1000 Rok budowy: 2025 Liczba pokoi: 2 Wysokość pomieszczeń [m]: 2,6500 Liczba sypialni: 1 Typ kuchni: aneks kuchenny - połączony z salonem Rodzaj kuchni: otwarta na salon Liczba łazienek: 1
::KONTAKT DO AGENTA
Stanisław Godłowski Zobacz kontakt502 181 981 Zobacz kontaktstaszek@danax.pl
Pośrednik odpowiedzialny zawodowo za wykonanie umowy pośrednictwa: Bartłomiej Krosta (licencja nr: 6585)
--------------------------
Od 1993 r. pośredniczymy w transakcjach na krakowskim rynku nieruchomości.
Pomożemy Ci jak przyjacielowi.

Ogrzewanie: Miejskie

Kontakt do agenta:
Stanisław Godłowski
Zobacz kontaktstaszek@danax.pl
Zobacz kontakt502 181 981

Oceń ofertę


9.99


338 wydruk błąd schowek

Ostatnio przeglądane

 

 

 

pobieranie

Pobierz wzór umowy

Umowa przedwstępna sprzedaży

wybierz plik do pobrania
doc pdf

 

 

Deweloperzy

);