Prosimy, odblokuj wyświetlanie reklam w naszym serwisie, są one związane z rynkiem nieruchomości.
To dzięki nim masz darmowy dostęp do naszych treści.

Z pozdrowieniami zespół KRN.pl :)


telefon

wiadomość

mapa

Mieszkanie, Rumia, Janowo

Mieszkanie na sprzedaż Rumia (woj. Pomorskie), Janowo

Lokalizacja:

Rumia, Janowo, ul.

Powierzchnia:

39.83 m2

Cena:

376 408 zł

Dane szczegółowe

lokalizacja:
Pomorskie, Rumia, Janowo
typ obiektu:
mieszkanie na sprzedaż
cena:
376 408 zł
pokoi:
2
piętro:
parter
ilość pięter w budynku:
3
powierzchnia:
39.83 m2
powierzchnia dodatkowa:
balkon, piwnica
numer ogłoszenia:
OR017064
data dodania:
02-07-2025
data modyfikacji:
10-01-2026
jakość wypełnienia oferty:
82%

Szczegóły oferty

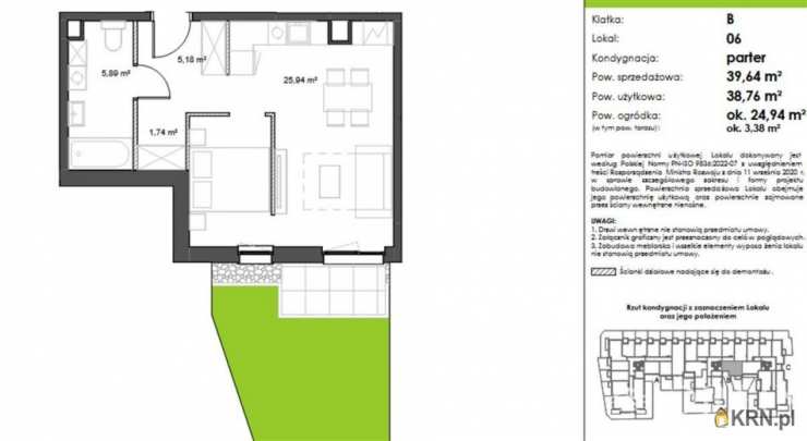
Nowoczesne mieszkania w Rumi w otoczeniu zieleni Kupujący nie płaci prowizji oraz podatku PCC. Zalety: - Mieszkanie w pełnym standardzie deweloperskim, słoneczne, usytuowane na parterze, z tarasem i ogrodem. - Wysoka funkcjonalność części wspólnych, przestronne klatki schodowe utrzymane w przytulnej, stonowanej kolorystyce. - Duża ilość miejsc postojowych w hali garażowej, komórek lokatorskich oraz miejsc zewnętrznych. - Możliwość dokonania zmian aranżacyjnych. - Nowoczesny design. - Spokojna i cicha okolica. - Prywatność i kameralny charakter Osiedla oraz bliska odległość od dynamicznej Gdyni i piaszczystych plaż w Mechelinkach, łączą doskonałą komunikację z idealnym miejscem do odpoczynku. Lokalizacj: Osiedle Janowo Park III w Rumi położone jest blisko Gdyni oraz 7 km od plaży w Mechelinkach. W sąsiedztwie znajdziemy liczne sklepy i aptekę (200 m), klub fitness (200 m), kościół (740 m), przychodnię (950 m), pocztę (650 m), kawiarnię (1 km). W niedalekiej odległości od Osiedla znajdują się również przedszkola - 400 m, szkoły - liceum 500 m, parki oraz plac zabaw. Doskonale skomunikowana okolica, przystanki autobusowe, do stacji SKM zaledwie 1,65 km, skąd bezpośrednio możemy dostać się do Gdyni, Sopotu, Gdańska oraz Redy i Wejherowa. Idealne miejsce dla osób ceniących sobie ciszę i komfort. Budynek: Osiedle Janowo Park III powstaje jako nowy rozdział i kontynuacja kameralnego Osiedla Janowo Park oraz nowoczesnego Osiedla Janowo Park II cenionego dewelopera Willbud. Nowoczesna inwestycja mieszcząca się w Rumi Janowo przy Parku "Błonia Janowskie", położona blisko Gdyni. 4 kondygnacyjny budynek, wyposażony w nowoczesne cichobieżne windy oraz obszerną halę garażową, składa się z 120 stylowych, słonecznych mieszkań o powierzchniach 27 - 65 m2. Budynek został zaprojektowany z dbałością o szczegóły, w otoczeniu zieleni i kameralnej zabudowy, a duży wybór lokali sprawia, że każdy znajdzie mieszkanie idealnie dopasowane do swoich potrzeb. Opis: Mieszkanie o powierzchni użytkowej 38,76 m2 z tarasem 3,38 m2 i ogrodem 24,94 m2, mieści się na parterze 3 piętrowego budynku wyposażonego w windę. Mieszkanie środkowe o wschodniej ekspozycji okien. Rzut mieszkania w załączeniu. Miejsce postojowe w hali garażowej w cenie 26 999 zł. Stan deweloperski. Ogrzewanie miejskie. Odbiór II kwartał 2026 roku. W ofercie posiadamy również inne mieszkania i apartamenty w tej inwestycji. Więcej informacji w biurze. Orfin Nieruchomości - "Z nami dla Ciebie". Serdecznie zapraszam na prezentację oraz zapoznanie się ze wszystkimi naszymi ofertami. W naszej bazie posiadamy również niepublikowane w Internecie propozycje z rynku Off Market. Natalia Sikora-Piernicka, Tel.: Zobacz kontakt572 200 541 , E-mail: Zobacz kontaktnatalia@orfin.net.pl W razie jakichkolwiek pytań proszę o kontakt telefoniczny lub e-mailowy. Dla naszych klientów świadczymy usługi pośrednictwa kredytowego. Niniejsze ogłoszenie nie stanowi oferty handlowej w rozumieniu Kodeksu Cywilnego.

Kontakt do agenta:
Imię: Natalia
Nazwisko: Sikora-Piernicka
Numer telefonu: Zobacz kontakt58 620 82 11 Kom: Zobacz kontakt572 200 541
Adres email: Zobacz kontaktnatalia@orfin.net.pl

Oceń ofertę


3


355 wydruk błąd schowek

Ostatnio przeglądane

 

 

 

pobieranie

Pobierz wzór umowy

Umowa przedwstępna sprzedaży

wybierz plik do pobrania
doc pdf

 

 

Deweloperzy

);