Prosimy, odblokuj wyświetlanie reklam w naszym serwisie, są one związane z rynkiem nieruchomości.
To dzięki nim masz darmowy dostęp do naszych treści.

Z pozdrowieniami zespół KRN.pl :)


telefon

wiadomość

mapa

Mieszkanie, Cieszyn

Mieszkanie na wynajem Cieszyn (woj. Śląskie)

Lokalizacja:

Cieszyn, , ul.

Powierzchnia:

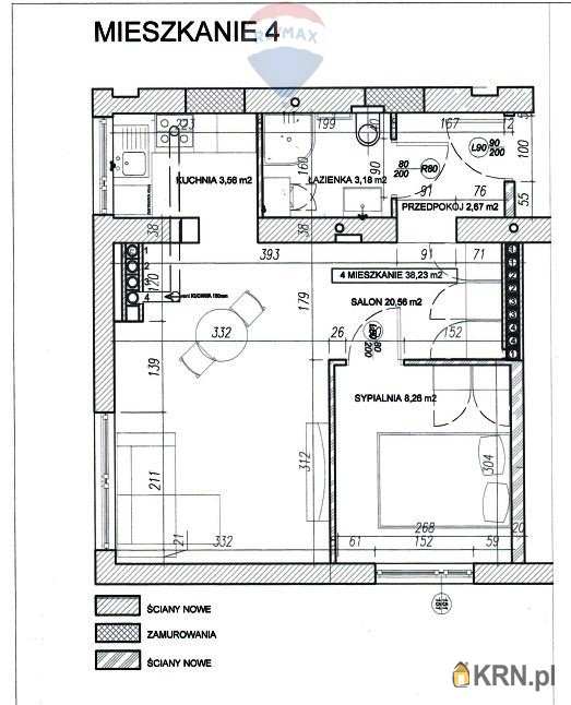
38.23 m2

Cena:

2 100 zł

Dane szczegółowe

lokalizacja:
Śląskie, Cieszyn
typ obiektu:
mieszkanie na wynajem
cena:
2 100 zł
pokoi:
2
piętro:
3
ilość pięter w budynku:
3
powierzchnia:
38.23 m2
numer ogłoszenia:
398/3123/OMW
data dodania:
01-04-2026
data modyfikacji:
01-04-2026
jakość wypełnienia oferty:
76%

Szczegóły oferty

IZABELA POŁATYŃSKA-JANIK
Agent prowadzący
Zobacz kontakt501 345 068

Do wynajęcia nowe, przestronne mieszkanie Cieszyn, ul. Bielska 8

Oferuję do wynajęcia przestronne mieszkanie o powierzchni 38,23 mÂ2, świeżo po generalnym remoncie jeszcze niezamieszkałe, pachnące nowością.
Lokal znajduje się na trzecim piętrze w czterokondygnacyjnym budynku z windą (przystosowaną dla osób niepełnosprawnych dojeżdża do drugiego piętra).

Budynek jest dobrze zabezpieczony:
wejście przez 2 domofony (do kamienicy oraz na korytarz trzeciego piętra),
na piętrze znajduje się tylko 5 nowych mieszkań, co zapewnia komfort i prywatność.

Lokalizacja
Mieszkanie położone jest przy jednej z głównych arterii miasta ul. Bielska 8, co zapewnia szybki i wygodny dojazd do centrum.

W najbliższej okolicy:
apteka w budynku,
gabinety medyczne, psychologiczne i terapeutyczne (I piętro),
szpital 300 m,
powstająca Uczelnia Medyczna,
sklepy: Żabka 50 m, Biedronka 100 m,
szkoła i przedszkole 300 m,
plac zabaw 300 m.

Opis mieszkania
Mieszkanie jest nowe, nowocześnie urządzone, funkcjonalne i bardzo jasne.
Duże okna zapewniają doskonałe doświetlenie wnętrza, a mimo centralnej lokalizacji lokal jest cichy i komfortowy.

Układ pomieszczeń:
salon z jadalnią (otwarta przestrzeń),
kuchnia z nową zabudową,
sypialnia,
duża łazienka z prysznicem.

Mieszkanie jest umeblowane i gotowe do zamieszkania. Istnieje możliwość dodatkowego doposażenia mieszkania według potrzeb najemcy.

Na wyposażeniu m.in.:
piekarnik,
zmywarka,
pralka.

W budynku dostępne jest również pomieszczenie gospodarcze (rowerownia).

Dodatkowe atuty
bezpłatny parking przy budynku (w godzinach 20:00-7:00),
możliwość wynajęcia prywatnego miejsca parkingowego 100 zł/miesiąc.

Warunki najmu
czynsz: 2 100 zł (w cenie centralne ogrzewanie),
media: prąd, woda, ciepła woda według zużycia,
kaucja: 4 200 zł,
możliwość wystawienia faktury VAT,
umowa najmu okazjonalnego (z możliwością przedłużenia).

Preferowani najemcy:
osoby niepalące,
bez dużych zwierząt.

Najemca nie ponosi kosztów pośrednictwa prowizję pokrywa właściciel.

Dlaczego warto?
świetna lokalizacja w centrum miasta,
wysoki standard i nowe wykończenie,
mieszkanie gotowe do zamieszkania od zaraz,
jasne, ciche i bardzo funkcjonalne wnętrze,
brak prowizji dla najemcy.

To idealna propozycja dla osób, które cenią komfort, estetykę i bliskość miejskiej infrastruktury.

Zapraszam do kontaktu oraz na prezentację.
Mieszkanie dostępne od zaraz

RE/MAX Invest
ul. Wyzwolenia 1
43-300 Bielsko-Biała
Zobacz kontakt33 821 90 05

Informacja przekazywana przez agenta / właściciela biura uważana jest za dokładną i rzetelną, ale nie jest gwarantowana i powinna być niezależnie sprawdzona.




W przypadku tej oferty wynagrodzenie naszego biura pokrywa właściciel nieruchomości.
Opis oferty zawarty na stronie internetowej sporządzany jest na podstawie oględzin nieruchomości oraz informacji uzyskanych od właściciela, może podlegać aktualizacji i nie stanowi oferty określonej w art. 66 i następnych K.C.

Oferta wysłana z programu dla biur nieruchomości ASARI CRM (asaricrm.com)



Kontakt:
Numer telefonu: Zobacz kontakt338219005
Adres email: Zobacz kontaktinvest@remax-polska.pl
Numer licencji pośrednika: 19277

Oceń ofertę


0


51 wydruk błąd schowek

Ostatnio przeglądane

 

 

 

pobieranie

Pobierz wzór umowy

Umowa przedwstępna najmu

wybierz plik do pobrania
doc pdf

 

 

Deweloperzy

);