Prosimy, odblokuj wyświetlanie reklam w naszym serwisie, są one związane z rynkiem nieruchomości.
To dzięki nim masz darmowy dostęp do naszych treści.

Z pozdrowieniami zespół KRN.pl :)


telefon

wiadomość

mapa

Mieszkanie, Łódź, Bałuty

Mieszkanie na sprzedaż Łódź (woj. Łódzkie), Bałuty

Lokalizacja:

Łódź, Bałuty, ul.

Powierzchnia:

38.00 m2

Cena:

339 000 zł

Dane szczegółowe

lokalizacja:
Łódzkie, Łódź, Bałuty
typ obiektu:
mieszkanie na sprzedaż
cena:
339 000 zł
pokoi:
2
piętro:
8
ilość pięter w budynku:
10
powierzchnia:
38.00 m2
powierzchnia dodatkowa:
piwnica
numer ogłoszenia:
12079/3186/OMS
data dodania:
10-02-2026
data modyfikacji:
10-02-2026
jakość wypełnienia oferty:
76%

Szczegóły oferty

Przytulne i funkcjonalne mieszkanie 2-pokojowe z oddzielną kuchnią i pięknym widokiem na park. Spokojna okolica, świetna komunikacja i możliwość korzystania z parkingu dla mieszkańców ze szlabanem.

Tylko osoby prywatne - agencjom dziękujemy, prosimy nie dzwonić!

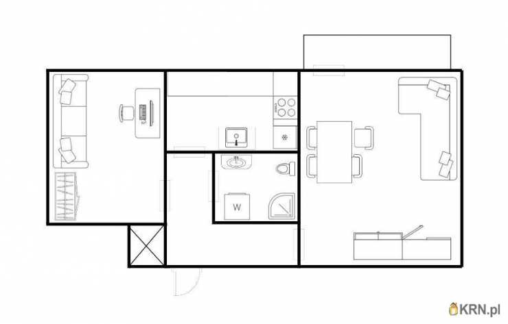
Na sprzedaż przytulne, rozkładowe mieszkanie 2-pokojowe (38 mÂ2) położone na 8. piętrze w wieżowcu z windą. Mieszkanie jest jasne, ciche i gotowe do wprowadzenia.

Układ i wyposażenie:

- 2 niezależne pokoje (M3) – wygodny i praktyczny rozkład
- oddzielna, w pełni wyposażona kuchnia (lodówka, kuchenka gazowo-elektryczna z piekarnikiem - wszystko w cenie)
- łazienka z WC
- przedpokój z szafą w zabudowie
- drewniany parkiet w dobrym stanie
- piwnica

Stan mieszkania pozwala na natychmiastowe wprowadzenie lub delikatne odświeżenie według własnego gustu.
Jest możliwość posiłkowania się kredytem.

Lokalizacja i otoczenie:

Spokojna, zielona okolica z widokiem na park z okien. W pobliżu sklepy, punkty usługowe, przystanki i tereny spacerowe.
Świetna komunikacja – autobusy: 59, 81A, 81B, 99, 57, 73, N5A, N5B, co zapewnia szybki dojazd do centrum i innych części miasta.

Dodatkowe atuty:

- możliwość korzystania z parkingu ze szlabanem
- blok z windą
- czysta, zadbana klatka
- mili, spokojni sąsiedzi

Oglądanie mieszkania:
Proszę o wcześniejszy kontakt telefoniczny w celu umówienia wizyty.

Hasztagi / słowa kluczowe:

#2pokoje #M3 #bezposrednio #bezposrednikow #widoknapark #mieszkanienasprzedaz #przytulne #rozkładowe #dozamieszkania #kuchniaoddzielna #parkiet #parkingwcenie #spokojnaokolica #dobrakomunikacja #blokzwinda #Lodz #sprzedazmieszkania



Kontakt:
Włodzimierz Wojciechowski
tel: Zobacz kontakt602630516
Zobacz kontaktphuwim@gmail.com


Oferta wysłana z programu dla biur nieruchomości ASARI CRM (asaricrm.com)



Kontakt:
Numer telefonu: Zobacz kontakt602630516
Adres email: Zobacz kontaktphuwim@gmail.com

Oceń ofertę


0


13 wydruk błąd schowek

Ostatnio przeglądane

 

 

 

pobieranie

Pobierz wzór umowy

Umowa przedwstępna sprzedaży

wybierz plik do pobrania
doc pdf

 

 

Deweloperzy

);