Prosimy, odblokuj wyświetlanie reklam w naszym serwisie, są one związane z rynkiem nieruchomości.
To dzięki nim masz darmowy dostęp do naszych treści.

Z pozdrowieniami zespół KRN.pl :)


telefon

wiadomość

mapa

Mieszkanie, Wrocław, Stare Miasto

Mieszkanie na sprzedaż Wrocław (woj. Dolnośląskie), Stare Miasto

Lokalizacja:

Wrocław, Stare Miasto, ul.

Powierzchnia:

37.69 m2

Cena:

649 000 zł

Dane szczegółowe

lokalizacja:
Dolnośląskie, Wrocław, Stare Miasto
typ obiektu:
mieszkanie na sprzedaż
cena:
649 000 zł
pokoi:
1
piętro:
parter
ilość pięter w budynku:
6
powierzchnia:
37.69 m2
powierzchnia dodatkowa:
balkon, taras, piwnica
numer ogłoszenia:
1947-5
data dodania:
22-12-2025
data modyfikacji:
22-12-2025
jakość wypełnienia oferty:
76%

Szczegóły oferty


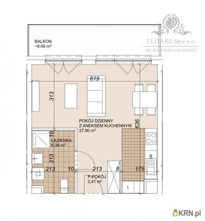
Mieszkanie 1 pokojowe o pow. 37,69m2 z dużym balkonem o pow.9,49m2 w bardzo dobrej lokalizacji na Starym Mieście /Szczepin. Etap w trakcie realizacji z terminem na II kwartał 2026.

Mieszkanie jest 1 - pokojowe ma pow. 37,69 m2 znajduje się na parterze w 6 piętrowym bloku z windą z poziomu garaży. Główną część mieszkania stanowi pokój dzienny z kuchnią w aneksie o pow. 27,90m2 z wyjściem na duży balkon na całej długości mieszkania o pow. 9.49m2, w mieszkaniu jest też duża łazienka z toaletą o pow. 6,38m2 oraz przedpokój z zasugerowanym miejscem na szafę w zabudowie.

Mieszkanie jest jednostronne z ekspozycją wschodnią z widokiem na sąsiednie blok i teren osiedlowej komunikacji (na jednym z grafik znajduje się symulacja widoku z balkonu).

Cena mieszkania 649 000 (17 219,42 zł/m2)

Osiedle ma bardzo atrakcyjną lokalizacje na Starym Mieście ul. Długa/Gnieźnieńska punkt świetnie skomunikowany z całym Wrocławiem:

- linia autobusowe miejskie (najbliższy przystanek linie: 103, 127, 128, 245),

- linie tramwajowe (najbliższy przystanek linie: 18, 19), przystanek PKP - Wrocław Szczepin

Odległość od RYNKU Wrocławia to około 1,5 km, a w otoczeniu inwestycji znajdują się tereny zielone: Grobla Kozanowska, Górka Szczepińska, Park Polana Popowicka, HOW Zatoka, Centrum Treningowe LUBIŃSKA - WTC Spartan, Skwer św. o. Damiana de Veuster, fitness, obiekt sportowy, plac zabaw dla dzieci, rower miejski, siłownia, ścieżka rowerowa, tereny spacerowe nad Odrą – świetne miejsce do życia, atrakcyjna lokalizacja pod inwestycje do wynajmu.

Zakup bezpośrednio od dewelopera z rynku pierwotnego, bez PCC i bez prowizji.

Etap budowy w trakcie realizacji z terminem na II kwartał 2026 idealne dla kupca potrzebującego dłuższego terminu płatności i etapowego rozliczenia w czasie! A dla klientów, którzy szukają mieszkania „na jużâ€ mam do zaoferowania GOTOWE mieszkania w tej inwestycji dostępne od ręki!

Zapraszam na prezentacje na inwestycji

Ania Cieślak- Doradca klienta

tel. Zobacz kontakt535 422 198

Zobacz kontaktanna.cieslak@elitare.pl

Nr oferty 25/AC

Zamieszczone na naszych stronach informacje nie stanowią oferty w rozumieniu Kodeksu Cywilnego, a dane w nich zawarte mają jedynie charakter informacyjny.

OFERTA CENOWA AKTUALNA NA DZIEŃ 21.12.2025 I OBOWIĄZUJE DO DNIA 21.12.2025

Oceń ofertę


0


19 wydruk błąd schowek

Ostatnio przeglądane

 

 

 

pobieranie

Pobierz wzór umowy

Umowa przedwstępna sprzedaży

wybierz plik do pobrania
doc pdf

 

 

Deweloperzy

);