Prosimy, odblokuj wyświetlanie reklam w naszym serwisie, są one związane z rynkiem nieruchomości.
To dzięki nim masz darmowy dostęp do naszych treści.

Z pozdrowieniami zespół KRN.pl :)


telefon

wiadomość

mapa

Mieszkanie, Dziwnów

Mieszkanie na sprzedaż Dziwnów (woj. Zachodniopomorskie)

Lokalizacja:

Dziwnów, , ul.

Powierzchnia:

37.48 m2

Cena:

500 000 zł

Dane szczegółowe

lokalizacja:
Zachodniopomorskie, Dziwnów
typ obiektu:
mieszkanie na sprzedaż
cena:
500 000 zł
pokoi:
2
piętro:
2
powierzchnia:
37.48 m2
numer ogłoszenia:
12305/3186/OMS
data dodania:
29-04-2026
data modyfikacji:
29-04-2026
jakość wypełnienia oferty:
58%

Szczegóły oferty

Lokal mieszkalny w centrum Dziwnowa, blisko plaży, w sąsiedztwie parku.


Na sprzedaż lokal położony w atrakcyjnej nadmorskiej lokalizacji – Dziwnów, zaledwie 120 metrów od plaży.

Idealny jako inwestycja lub lokal do codziennego życia.

Stan prawny - własność

Blisko morza i atrakcji turystycznych, w sąsiedztwie parku, promenady- idealna lokalizacja.


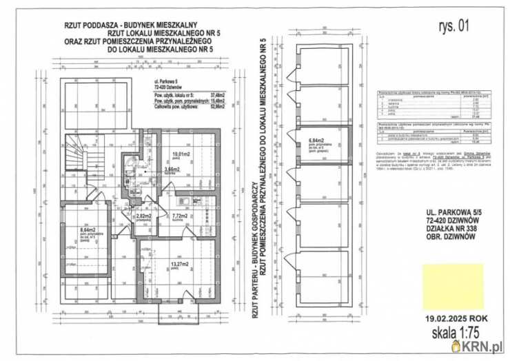
Lokal składa się z:
¡ przedpokoju o powierzchni 2,82m2,
¡ łazienki o powierzchni 3,66m2,
¡ kuchni o powierzchni 7,72m2,
¡ pokoju o powierzchni 10,01m2,
¡ pokoju o powierzchni 13,27m2,
Razem: 37,48m2

Do lokalu przynależą 2 pomieszczenia o łącznej powierzchni 15,48m2, w tym: pokój w budynku mieszkalnym znajdujący się na kondygnacji na której znajduje się lokal mieszkalny – 8,64m2 i pomieszczenie gospodarcze w budynku gospodarczym – 6,84m2.

Budynek posadowiony jest na działce o powierzchni 889 m2, u zbiegu ulic Parkowej i Henryka Sienkiewicza.


Cena wywoławcza 500 000,00 zł.


Sprzedaż lokalu w trybie przetargu- sprzedający Gmina Dziwnów.


Szczegółowe informacje można uzyskać w Urzędzie Miejskim w Dziwnowie, ul. Szosowa 5, tel. Zobacz kontakt91/3275180 oraz na stronach internetowych Gminy Dziwnów.


Lokal i pomieszczenia przynależne można oglądać po uprzednim (co najmniej dzień przed dniem oględzin) osobistym, telefonicznym lub mailowym uzgodnieniu z pracownikiem Referatu Gospodarki Nieruchomościami (tel. Zobacz kontakt91/3275180; Zobacz kontaktgrunty@dziwnow.pl)




Kontakt:
Urząd Miasta Dziwnów
tel: Zobacz kontakt91 3275180
Zobacz kontaktgrunty@dziwnow.pl


Oferta wysłana z programu dla biur nieruchomości ASARI CRM (asaricrm.com)



Kontakt:
Numer telefonu: Zobacz kontakt91 3275180
Adres email: Zobacz kontaktgrunty@dziwnow.pl

Oceń ofertę


0


12 wydruk błąd schowek

Ostatnio przeglądane

 

 

 

pobieranie

Pobierz wzór umowy

Umowa przedwstępna sprzedaży

wybierz plik do pobrania
doc pdf

 

 

Deweloperzy

);