Prosimy, odblokuj wyświetlanie reklam w naszym serwisie, są one związane z rynkiem nieruchomości.
To dzięki nim masz darmowy dostęp do naszych treści.

Z pozdrowieniami zespół KRN.pl :)


telefon

wiadomość

mapa

Mieszkanie, Lądek-Zdrój

Mieszkanie na sprzedaż Lądek-Zdrój (woj. Dolnośląskie)

Lokalizacja:

Lądek-Zdrój, , ul.

Powierzchnia:

36.72 m2

Cena:

120 000 zł

Dane szczegółowe

lokalizacja:
Dolnośląskie, Lądek-Zdrój
typ obiektu:
mieszkanie na sprzedaż
cena:
120 000 zł
pokoi:
1
piętro:
1
powierzchnia:
36.72 m2
powierzchnia dodatkowa:
piwnica
numer ogłoszenia:
12066/3186/OMS
data dodania:
06-02-2026
data modyfikacji:
06-02-2026
jakość wypełnienia oferty:
64%

Szczegóły oferty

W lewym górnym rogu dokumentu

pieczęć podłużna Burmistrz Lądka-Zdroju



Ogłoszenie Nr IF.6840.3.4.2024.403 Burmistrza Lądka-Zdroju z dnia 5 lutego 2026 r.

o III przetargu ustnym nieograniczonym na sprzedaż lokalu mieszkalnego nr 8 przy ul. Tadeusza Kościuszki 36 w Lądku-Zdroju

wraz z udziałem w częściach wspólnych budynku i gruntu



Burmistrz Lądka-Zdroju działając na podstawie art. 38 ust. 1 i 2 ustawy z dnia 21 sierpnia 1997 r. o gospodarce nieruchomościami (t.j. Dz.U. z 2024 r., poz. 1145 ze zm.) oraz Rozporządzenia Rady Ministrów z dnia 14 września 2004 r. w sprawie sposobu i trybu przeprowadzenia przetargów oraz rokowań na zbycie nieruchomości (t.j. Dz. U. z 2021 r., poz. 2213), ogłasza III ustny przetarg nieograniczony na sprzedaż niżej opisanej nieruchomości stanowiącej własność Gminy Lądek-Zdrój.



Lp. 1

Położenie nieruchomości
ul. Tadeusza Kościuszki 36 w Lądku-Zdroju

Nr działki
357/18

Obręb
obręb Stary Zdrój

Powierzchnia
0,1080 ha

Księga Wieczysta
SW1K/ Zobacz kontakt00096809/9

Opis nieruchomości
Przedmiotem sprzedaży jest samodzielny lokal mieszkalny nr 8 położony na I piętrze budynku mieszkalnego, wielorodzinnego przy ul. Tadeusza Kościuszki 36 w Lądku-Zdroju, wraz z udziałem w częściach wspólnych budynku i współwłasności gruntu (działki nr 357/18 obręb Stary Zdrój) wynoszącym 46/1 000.

Budynek mieszkalny posadowiony jest na działce nr 357/18 o powierzchni 0,1080 ha, dla której prowadzona jest księga wieczysta nr SW1K/ Zobacz kontakt00096809/9. Powierzchnia użytkowa budynku wynosi 946,13 m2.

Obiekt znajduje się w ewidencji zabytków województwa dolnośląskiego. Wszelkie prace remontowe należy przeprowadzać zgodnie z obowiązującymi przepisami prawa.

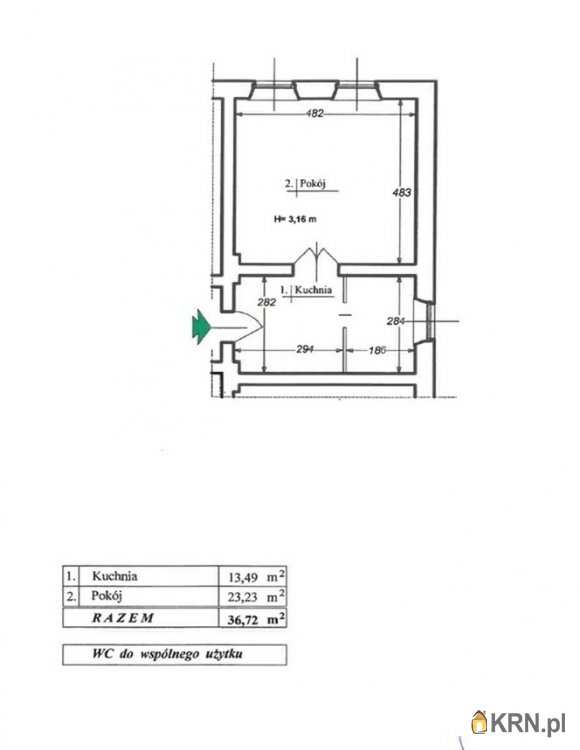
¡ Powierzchnia lokalu: 36,72 m2

¡ Skład lokalu: pokój, kuchnia

¡ Pomieszczenia przynależne: 1 piwnica o pow. użytkowej 7,06 m2

¡ WC do wspólnego użytku znajduje się na korytarzu

¡ Łączna pow. lokalu wraz z pomieszczeniami przynależnymi: 43,78 m2

¡ Udział w częściach wspólnych budynku i gruntu: 46/1000

¡ Wyposażenie w instalacje: instalacja wodno-kanalizacyjna, gazowa, elektryczna 250V,

¡ Stan techniczny lokalu: słaby, atrakcyjność lokalu słaba.

Lokal z uwagi na jego stan techniczny wymaga wykonania szeregu remontów umożliwiających korzystanie z lokalu do celów mieszkaniowych. W pokoju znajduje się niesprawny piec kaflowy. Kuchnia została przedzielona drewnianym przepierzeniem – ścianką działową. Brak wentylacji nawiewno-wywiewnej. Okna w lokalu drewniane, skrzynkowe, bardzo zniszczone – do wymiany. Drzwi płytowe, drewniane, zniszczone- do wymiany. Ściany i sufity w lokalu tynkowane i malowane. Na podłogach w lokalu płyta OKL malowana. WC do lokalu, wspólnie z innymi lokatorami znajduje się na korytarzu klatki schodowej. Budynek był zalany w trakcie powodzi we wrześniu 2024 r (piwnice i parter).
Dla przedmiotowego lokalu nie zostało wydane świadectwo charakterystyki energetycznej w myśl ustawy z dnia 29 sierpnia 2014 r. o charakterystyce energetycznej budynków (t.j. Dz. U. z 2024 r., poz. 101) zgodnie z art. 3 ust. 4 pkt.1.

Cena wywoławcza
120 000,00 zł
(sto dwadzieścia tysięcy złotych 00/100)

Wadium
12 000,00 zł

Przeznaczenie nieruchomości
Teren, na którym znajduje się budynek, w miejscowym planie zagospodarowania przestrzennego zatwierdzonym uchwałą Rady Miejskiej Lądka-Zdroju Nr XLIV/299/13 z dnia 19 grudnia 2013 r., w sprawie uchwalenia miejscowego planu zagospodarowania przestrzennego Lądka-Zdroju "Stary Zdrój obszar A - Lasy" część nr 2" (Dz.U. Woj. Dolnośląskiego z 2016 r., poz. 564) oznaczony jest symbolem 11 MU - A - przeznaczenie podstawowe: tereny zabudowy mieszkaniowej oraz mieszkaniowo-usługowej, zachowanie warunków i ograniczeń strefy „A” ochrony uzdrowiskowej, dla której obowiązują przepisy odrębne.

Nieruchomość zlokalizowana jest na terenie znajdującym się w strefie „A” ochrony uzdrowiskowej. Teren ten podlega ochronie na podstawie przepisów odrębnych: ustawy z dnia 28 lipca 2005 r. o lecznictwie uzdrowiskowym, uzdrowiskach i obszarach ochrony uzdrowiskowej oraz gminach uzdrowiskowych, a także obowiązują na nim wymogi wynikające z przepisów w/w ustawy oraz Statutu Uzdrowiska Lądek-Zdrój.

Pełny tekst miejscowego planu zagospodarowania przestrzennego znajduje się w Biuletynie Informacji Publicznej Urzędu Miasta i Gminy Lądek-Zdrój na stronie: https://bip.ladek.pl/menu-przedmiotowe/godpodarka-przestrzenna/plany-miejscowe/

Zgodnie z art. 169 ust. 1 ustawy z dnia 20 lipca 2017 r. Prawo wodne (t.j. Dz. U. z 2024 r., poz. 1087 ze zm.) dla obszarów narażonych na niebezpieczeństwo powodzi wskazanych we wstępnej ocenie ryzyka powodziowego sporządza się mapy zagrożenia powodziowego. Część przedmiotowej nieruchomości na mapie zagrożenia powodziowego dostępnej na hydroportalu - publicznym portalu dotyczącym tematyki wodnej pod adresem http://mapy.isok.gov.pl, położona jest w części na obszarze, na którym prawdopodobieństwo wystąpienia powodzi jest niskie i wynosi 0,2% (raz na 500 lat).


Podatek VAT

Sprzedaż lokalu jest zwolniona od podatku od towarów i usług, na podstawie art. 43 ust.1 pkt 10 oraz art. 29 a ust. 8 ustawy z dnia 11 marca 2004 r. o podatku od towarów i usług (t.j. Dz. U. z 2025 r., poz. 775 ze zm.) w związku z tym, że od zasiedlenia lokalu upłynęło więcej niż dwa lata.



Obciążenia

Nieruchomość wolna jest od wszelkich obciążeń na rzecz osób trzecich i nie jest przedmiotem zobowiązań. Nie istnieją żadne niewykonane roszczenia prywatno - prawne osób trzecich, a nadto nie toczą się żadne postępowania administracyjne lub sądowe, których byłaby przedmiotem. Nabywca przejmuje nieruchomość w stanie istniejącym. Zbywca nie ponosi odpowiedzialności za wady ukryte nieruchomości, będącej przedmiotem przetargu.



Koszty umowy

Wszelkie koszty związane z zawarciem umowy notarialnej przenoszącej własność jak: taksa notarialna wraz z podatkiem VAT, opłaty sądowe i opłaty za wypisy aktu notarialnego obciążają nabywcę.



Nabywca przejmuje nieruchomość w stanie istniejącym

Nabywcę, od dnia nabycia nieruchomości, wiążą wszelkie uchwały podjęte wcześniej przez Wspólnotę Mieszkaniową. Do czasu podjęcia innych uchwał przez Wspólnotę Mieszkaniową dotychczasowy sposób zarządu odnosić się będzie do nabywcy niniejszego lokalu. Nabywca lokalu i współwłasności budynku ponosi wszystkie koszty i wydatki związane z utrzymaniem, eksploatacją i remontem lokalu, a także części wspólnych budynku i gruntu stosownie do wielkości posiadanych udziałów w częściach wspólnych.



Procedura sprzedaży

Niniejsze ogłoszenie wywiesza się na tablicy ogłoszeń w siedzibie Urzędu Miasta i Gminy Lądek-Zdrój przy ul. Rynek 31 od 5 lutego 2026 r. do 17 marca 2026 r., a także będzie ono podane do publicznej wiadomości przez ogłoszenie w prasie codziennej www.monitorurzedowy.pl oraz zamieszczenie na stronach internetowych tut. Urzędu w Biuletynie Informacji Publicznej w zakładce-Nieruchomości komunalne oraz na stronie www.ladek.pl w zakładce – Oferty inwestycyjne/ nieruchomości na sprzedaż.



Terminy poprzednich przetargów: 11.09.2025 r. - I ustny przetarg ograniczony, 31.10.2025 r. – I ustny przetarg nieograniczony, 14.01.2026 r. – II ustny przetarg nieograniczony.

Przed przystąpieniem do przetargu zaleca się, aby jego uczestnik zapoznał się z przedmiotem przetargu. Nieruchomość można obejrzeć po wcześniejszym, telefonicznym uzgodnieniu z Lądeckimi Usługami Komunalnymi Sp. z o.o. z/s przy ul. Fabrycznej Nr 7a w Lądku-Zdroju. Numer telefonu Zobacz kontakt74 8146 469 wew. 15.



PRZETARG ODBĘDZIE SIĘ

dnia 17 marca 2026 r. o godz. 10:00

w Urzędzie Miasta i Gminy Lądek-Zdrój, ul. Rynek 31- pokój nr 26 na II piętrze



Cena wywoławcza wynosi: 120 000,00 zł (sto dwadzieścia tysięcy złotych 00/100)

Wadium: 12 000,00 zł (dwanaście tysięcy złotych 00/100)



Postąpienie minimalne: o wysokości postąpienia decydują uczestnicy przetargu, z tym, że postąpienie nie może wynosić mniej niż 1% ceny wywoławczej z zaokrągleniem w górę do pełnych dziesiątek złotych, tj. 1 200,00 zł (jeden tysiąc dwieście złotych 00/100).

1. Warunkiem przystąpienia do przetargu jest wpłacenie określonego w ogłoszeniu wadium w pieniądzu, z takim rozliczeniem, aby należna kwota znalazła się na koncie Urzędu Miasta i Gminy Lądek-Zdrój w GBS w Strzelinie Oddział w Lądku- Zdroju nr konta Zobacz kontakt39 9588 000 Zobacz kontakt4 3900 1111 2000 0060 w nieprzekraczalnym terminie do 11 marca 2026 r. - włącznie. Na dowodzie wpłaty należy zaznaczyć "Przetarg – lokal mieszkalny ul. T. Kościuszki 36/8, imię nazwisko/nazwa uczestnika przetargu.”

2. Wadium uczestnika, który wygrał przetarg zostanie zaliczone na poczet ceny sprzedaży. Pozostałym uczestnikom wadium zostanie zwrócone niezwłocznie, jednak nie później niż w ciągu 3 dni od dnia odpowiednio: odwołania, zamknięcia, unieważnienia przetargu lub jego zakończenia wynikiem negatywnym. Wadium przepada na rzecz Gminy Lądek-Zdrój, w razie uchylenia się uczestnika przetargu, który wygrał przetarg od zawarcia umowy sprzedaży w terminie podanym w zawiadomieniu.

3. W celu ustalenia listy uczestników przetargu osoby fizyczne zobowiązane są przedstawić komisji przetargowej dokument stwierdzający ich tożsamość i obywatelstwo, osoby fizyczne prowadzące działalność gospodarczą - aktualny wydruk z centralnej ewidencji i informacji o działalności gospodarczej, umowę spółki cywilnej.

4. W przypadku uczestnictwa w przetargu pełnomocnika reprezentującego osobę fizyczną należy okazać odpowiednie pełnomocnictwo (w oryginale lub kopii potwierdzonej za zgodność z oryginałem przez notariusza).

5. W przypadku uczestnictwa w przetargu osoby prawnej należy w dniu przetargu dostarczyć wypis z właściwego dla danego podmiotu rejestru. W przypadku reprezentowania osoby prawnej przez pełnomocnika należy okazać odpowiednie pełnomocnictwo (w oryginale lub kopii potwierdzonej za zgodność z oryginałem).

6. W przypadku uczestnictwa w przetargu jednego z małżonków zaleca się przedłożenie pisemnego oświadczenia woli drugiego małżonka o wyrażeniu zgody na nabycie nieruchomości ze środków pochodzących z majątku wspólnego lub złożenie przez osobę przystępującą do przetargu oświadczenia o woli nabycia nieruchomości z majątku osobistego – art. 37 § 1 ustawy z dnia 25 lutego 1964 r. Kodeks rodzinny i opiekuńczy (t.j. Dz.U. z 2023 r. poz. 2809 ze zm.).

7. Osoba będąca cudzoziemcem w rozumieniu ustawy z dnia 24 marca 1920 r. o nabywaniu nieruchomości przez cudzoziemców (t.j. Dz. U z 2017 r., poz. 2278) zobowiązana jest w dniu zawarcia umowy przeniesienia własności nieruchomości będącej przedmiotem przetargu, przedłożyć wydane na zasadach i w sytuacjach przewidzianych ustawą zezwolenie właściwego ministra na nabycie tej nieruchomości, chyba że zajdą przewidziane powołaną ustawą przesłanki wyłączające wymóg uzyskania takiego zezwolenia.

8. Przetarg może się odbyć, chociażby zakwalifikowano do przetargu tylko jednego oferenta spełniającego warunki określone w ogłoszeniu i jeżeli choć jeden uczestnik zaoferuje, co najmniej jedno postąpienie powyżej ceny wywoławczej. Po ustaniu zgłaszania postąpień przewodniczący komisji przetargowej wywołuje trzykrotnie ostatnią, najwyższą cenę i zamyka przetarg, a następnie ogłasza imię i nazwisko albo nazwę lub firmę osoby, która przetarg wygrała.

9. Uczestnik przetargu może zaskarżyć czynności związane z jego przeprowadzeniem do Burmistrza Lądka- Zdroju w terminie 7 dni od dnia ogłoszenia wyniku przetargu.

10. Ustalenie terminu zawarcia umowy notarialnej nastąpi do 21 dni licząc od daty przetargu. Burmistrz Lądka-Zdroju zastrzega sobie możliwość odwołania przetargu z uzasadnionej przyczyny oraz odstąpienia od zawarcia umowy w razie stwierdzenia, że przetarg został przeprowadzony z naruszeniem prawa.

11. Cena nieruchomości sprzedawanej w drodze przetargu podlega zapłacie nie później niż do dnia zawarcia umowy przenoszącej własność.


12. Dodatkowe informacje dotyczące nieruchomości oraz warunków jej sprzedaży jak również pełną treść ogłoszenia o przetargu można uzyskać, od poniedziałku do piątku w godzinach pracy Urzędu Miasta i Gminy Lądek-Zdrój, ul. Rynek 31 pokój nr 24, tel. Zobacz kontakt74 811 78 75, Zobacz kontaktgeodezja@ladek.pl.



W prawym dolnym rogu dokumentu pieczęć podłużna o treści

„Burmistrz Lądka-Zdroju Tomasz Nowicki – podpis nieczytelny”



Informację wytworzył: Justyna Pożarycka

Informację zweryfikował: Jolanta Pelczarska-Mlak

Data wytworzenia: 05.02.2026 r.



SZKIC LOKALU MIESZKALNEGO

SZKIC I PIĘTRA

SZKIC PIWNIC



Kontakt:
Urząd Miasta i Gminy Lądek-Zdrój
tel: (74) 811 78 75
Zobacz kontaktgeodezja@ladek.pl


Oferta wysłana z programu dla biur nieruchomości ASARI CRM (asaricrm.com)



Kontakt:
Numer telefonu: (74) 811 78 75
Adres email: Zobacz kontaktgeodezja@ladek.pl

Oceń ofertę


0


21 wydruk błąd schowek

Ostatnio przeglądane

 

 

 

pobieranie

Pobierz wzór umowy

Umowa przedwstępna sprzedaży

wybierz plik do pobrania
doc pdf

 

 

Deweloperzy

);