Prosimy, odblokuj wyświetlanie reklam w naszym serwisie, są one związane z rynkiem nieruchomości.
To dzięki nim masz darmowy dostęp do naszych treści.

Z pozdrowieniami zespół KRN.pl :)


telefon

wiadomość

mapa

Mieszkanie, Wrocław, Fabryczna

Mieszkanie na sprzedaż Wrocław (woj. Dolnośląskie), Fabryczna

Lokalizacja:

Wrocław, Fabryczna, ul.

Powierzchnia:

33.52 m2

Cena:

459 224 zł

Dane szczegółowe

lokalizacja:
Dolnośląskie, Wrocław, Fabryczna
typ obiektu:
mieszkanie na sprzedaż
cena:
459 224 zł
pokoi:
2
piętro:
parter
ilość pięter w budynku:
3
powierzchnia:
33.52 m2
powierzchnia dodatkowa:
balkon, taras, piwnica
numer ogłoszenia:
2108
data dodania:
25-01-2026
data modyfikacji:
25-01-2026
jakość wypełnienia oferty:
76%

Szczegóły oferty


Maślice to dzielnica wyróżniająca się na mapie miasta licznymi terenami zielonymi, bliskością rzeki i lasu. Jest to miejsce doskonałe do rekreacji i odpoczynku, które z pewnością otworzy przez mieszkańcami szereg możliwości spędzania wolnego czasu z rodziną i przyjaciółmi bez konieczności jechania do centrum. Na osiedlu pojawi się wszystko to, co istotne w codziennym życiu mieszkańców – ławki do odpoczynku na świeżym powietrzu, miejsca postojowe, plac zabaw dla dzieci. Wszystko to w prostej, ponadczasowej stylistyce – zarówno funkcjonalnej jak estetycznej. Dotyczy to również projektu klatek schodowych, który będzie konsekwentną kontynuacją oprawy wizualnej inwestycji, podobnie jak mała architekura wokół budynku.

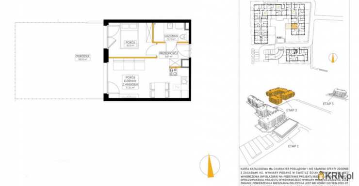
Proponowane mieszkanie ma powierzchnię 33,52m2 i znajduje się na parterze w 3 -piętrowym budynku. Mieszkanie składa się z salonu z aneksem kuchennym o powierzchni 17,11 z salonu wyjście na ogród o powierzchni 38,55m2, sypialni o powierzchni 9,02m2, łazienki o powierzchni 3,72m2 oraz holu o powierzchni 3,67m2.

Komórka lokatorka od 6400zł do 12400 zł

-miejsce postojowe w garażu podziemnym -35000 zł

-miejsce postojowe naziemne- 20000 zł

Zakup miejsca postojowego jest obligatoryjny.

Mieszkanie bezpośrednio od dewelopera. Bez PCC.

Kupujący nie płaci prowizji.

Posiadamy w ofercie też inne mieszkania na tym osiedlu.Zapewniam

- profesjonalną obsługę, gwarantowaną wieloletnim doświadczeniem w branży nieruchomości-możliwość bezpłatnej rezerwacji apartamentu

- kompleksowe wsparcie na każdym etapie transakcji

- gwarancję bezpiecznego zakupu

- oszczędność czasu

-pomoc w uzyskaniu kredytu na najlepszych warunkach

- kompleksowe doradztwo

Zapraszam do kontaktu!

Ania Kamuda- Doradca klienta

tel. Zobacz kontakt535 422 188

Zobacz kontaktanna.kamuda@elitare.pl

Nr oferty RĘDZ_RD2/C.06AK

Zamieszczone na naszych stronach informacje nie stanowią oferty w rozumieniu Kodeksu Cywilnego, a dane w nich zawarte mają jedynie charakter informacyjny.Zamieszczone na naszych stronach informacje nie stanowią oferty w rozumieniu Kodeksu Cywilnego, a dane w nich zawarte mają jedynie charakter informacyjny. OFERTA CENOWA AKTUALNA NA DZIEŃ 24.01.2026 I OBOWIĄZUJE DO DNIA 24.01.2026

Oceń ofertę


0


45 wydruk błąd schowek

Ostatnio przeglądane

 

 

 

pobieranie

Pobierz wzór umowy

Umowa przedwstępna sprzedaży

wybierz plik do pobrania
doc pdf

 

 

Deweloperzy

);