Prosimy, odblokuj wyświetlanie reklam w naszym serwisie, są one związane z rynkiem nieruchomości.
To dzięki nim masz darmowy dostęp do naszych treści.

Z pozdrowieniami zespół KRN.pl :)


telefon

wiadomość

mapa

Mieszkanie, Gdańsk, Stogi, ul. Skiby

Mieszkanie na sprzedaż Gdańsk (woj. Pomorskie), Stogi, ul. Skiby

Lokalizacja:

Gdańsk, Stogi, ul. Skiby

Powierzchnia:

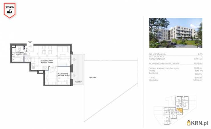
32.46 m2

Cena:

516 900 zł

Dane szczegółowe

lokalizacja:
Pomorskie, Gdańsk, Stogi, ul. Skiby
typ obiektu:
mieszkanie na sprzedaż
cena:
516 900 zł
pokoi:
2
piętro:
parter
ilość pięter w budynku:
3
powierzchnia:
32.46 m2
powierzchnia dodatkowa:
taras
numer ogłoszenia:
EP412948
data dodania:
19-08-2025
data modyfikacji:
26-09-2025
jakość wypełnienia oferty:
82%

Szczegóły oferty

Mieszkanie 2 pokojowe z ogrodem !!!Atuty Nieruchomości: cicha i spokojna okolica pełna baza handlowo - usługowa mieszkanie do własnej aranżacji szybkie wydanie taras i ogród przepiękna plaża, na której nie ma tłumów szybki dojazd do Gdańska Głównego Istnieje możliwość wykończenia mieszkania pod klucz brak podatku PCC 2 % Lokalizacja Mieszkanie znajduje się w cichej, spokojnej, pełnej zieleni okolicy. W pobliżu cała infrastruktura handlowo-usługowa, sklepy osiedlowe, dyskonty, punkty usługowe, ośrodek zdrowia , w pobliżu szkoła i przedszkola. Blisko (2-3 minuty) do przystanku tramwajowego /autobusowego, dojazd do Śródmieścia Gdańska tramwajem ok. 15 minut. Blisko tramwajem do plaży Stogi.W najbliższej okolicy znajdują się basen miejski, siłownia plenerowa i boisko.NieruchomośćNowy, oddany do użytkowania kameralny budynek trzypiętrowy . W budynku znajduje się winda, a do mieszkań na paterze przydzielone są prywatne ogródki.Każde mieszkanie ma komfortowy i funkcjonalny układ. W mieszkaniach przewidziano ogrzewanie płaszczyznowe (podłogowe) zasilane z ciepłowni miejskiej GPEC. Rolety zewnętrzne w mieszkaniach na parterze. Ogródki w stanie zagospodarowanym - taras wyłożony płytami tarasowymi, trawa. Inwestycja zakończona z POZWOLENIEM NA UŻYTKOWANIEMieszkanie 2 pokojowe o powierzchni 32,46 m2 położone jest na parterze wtrzypiętrowym budynku. Składa się z :- salon z aneksem kuchennym- przedpokoju- sypialnia- łazienki. Do mieszkania przynależy taras 6,8 m2 i ogród 50,94 m2.Mieszkanie dodatkowo wyposażone w rolety okienne zewnętrzne sterowane automatycznie. Drzwi do klatki schodowej zabezpieczone domofonem.Ogrzewanie miejskie.W ofercie posiadamy też większa mieszkania w tej inwestycji !!!Możliwość dokupienia :Cena miejsca postojowego w hali garażowej: 50 000 złCena brutto m2 komórki lokatorskiej: 6 000 złZapraszam na prezentację!TEL Zobacz kontakt575 070 176KUP Z ESTATE POLSKA - BEZPIECZNIE, SZYBKO I PROFESJONALNIE !!!- gwarantujemy bezpieczeństwo transakcji- pomagamy bezpłatnie i skutecznie uzyskać kredyt- z nami promocyjna stawka u NotariuszaWięcej podobnych ofert znajdziesz na naszej stronie www.estatepolska.pl

Oceń ofertę


3


277 wydruk błąd schowek

Ostatnio przeglądane

 

 

 

pobieranie

Pobierz wzór umowy

Umowa przedwstępna sprzedaży

wybierz plik do pobrania
doc pdf

 

 

Deweloperzy

);