Prosimy, odblokuj wyświetlanie reklam w naszym serwisie, są one związane z rynkiem nieruchomości.
To dzięki nim masz darmowy dostęp do naszych treści.

Z pozdrowieniami zespół KRN.pl :)


telefon

wiadomość

mapa

Mieszkanie, Wrocław, Stare Miasto

Mieszkanie na sprzedaż Wrocław (woj. Dolnośląskie), Stare Miasto

Lokalizacja:

Wrocław, Stare Miasto, ul.

Powierzchnia:

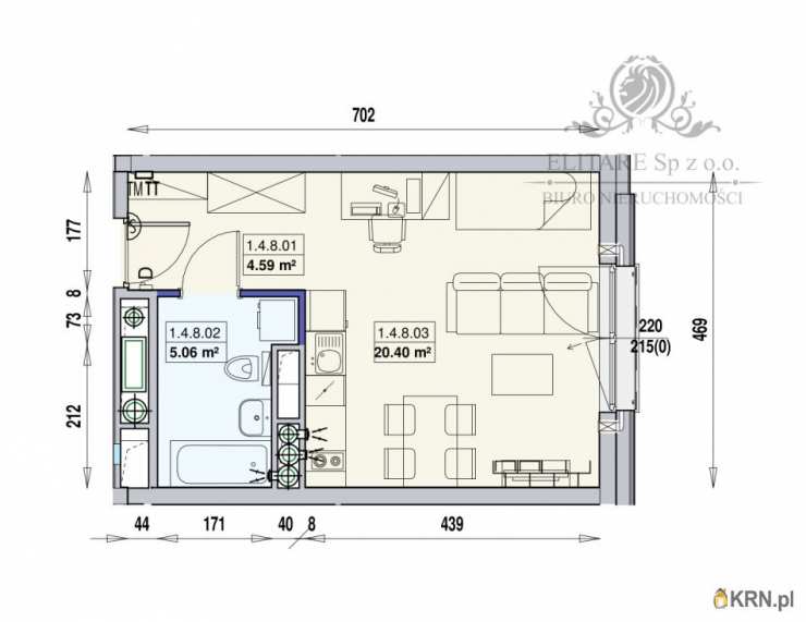
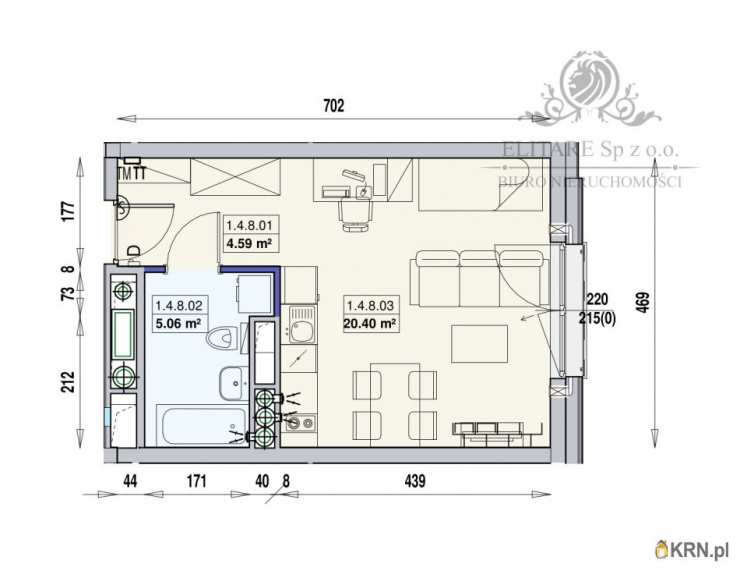
30.05 m2

Cena:

595 638 zł

Dane szczegółowe

lokalizacja:
Dolnośląskie, Wrocław, Stare Miasto
typ obiektu:
mieszkanie na sprzedaż
cena:
595 638 zł
pokoi:
1
piętro:
4
ilość pięter w budynku:
5
powierzchnia:
30.05 m2
powierzchnia dodatkowa:
balkon, taras, piwnica
numer ogłoszenia:
1715-20
data dodania:
30-03-2026
data modyfikacji:
30-03-2026
jakość wypełnienia oferty:
76%

Szczegóły oferty


Mieszkanie z rynku pierwotnego 1 pokojowe o pow. 30,05m2 położone na 4 piętrze w 5-piętrowym apartamentowcu z windą w super lokalizacji tuż obok Dworca Głównego na Starym Mieście w samym Centrum Wrocławia – nowa jakość wpleciona w historyczną tkankę miejską.

Idealne miejsce do inwestycji w mieszkania na wynajmem krótkoterminowym, a może świetnie zlokalizowane mieszkanie dla singla/pary!

Powierzchnia mieszkania to 30,05 m2, na którą składa się pokój z kuchnią w aneksie o pow.20,40m2 z dużym oknem balkonowym w typie „balkony francuskiego”, w mieszkaniu mamy też łazienkę z toaletą o pow. 5,06m2 oraz przedpokój z miejscem na szafę w zabudowie. Wysokość mieszkania 268cm. Ekspozycja okien wschodnio-południowa, mieszkanie jednostronne z widokiem na dynamiczną ulicę i miasto Wrocław.

Media miejskie włącznie z ogrzewaniem, mieszkanie oddawane w stanie deweloperskim. Apartamentowiec jest inwestycją zamykającą historyczną zabudowę kamieniczną. Tu współczesna architektura uzupełnia miejską tkankę, a funkcjonalne mieszkania tworzą przestrzeń do dynamicznego życia i dobrych inwestycji. Z myślą o komforcie użytkowników zaprojektowano:

- garaż podziemny z miejscami postojowymi oraz komórki lokatorskie na piętrach (do mieszkań o pow. mniejszej niż 45m2 nie ma możliwości zakupu miejsca postojowego).

- każdy apartament ma balkon/okno balkonowe albo od strony spokojnego wewnętrznego dziedzińca lub od strony dynamicznej historycznej ulicy z pocztówkowym widokiem na gmach Dworca Głównego

- w cenie apartamentu wyposażone w inteligentny zamek i system smart home w standardzie podstawowym z możliwością dodatkowego rozszerzenia

- kontrola dostępu do budynku, wind i bram garażowych z poziomu aplikacji

- propozycja atrakcyjnej oferty cenowej wykończenia Pod Klucz typowo pod wynajem lub w klasie podwyższonej z myślą o sobie lub luksusowym przyszłym najemcy,

- budynek wykończony wysokiej jakości materiałami o nowoczesnej formie, klatki schodowe w podwyższonym standardzie, budynek wyposażony w windy dostępne z poziomu garażu podziemnego. Szklane witryny wejściowe, eleganckie, nowoczesne i prestiżowe wykończenie budynku, dziedzińca i części wspólnych.

WYJĄTKOWA LOKALIZACJA – Stare Miasto, Przedmieście Świdnickie w odległości dwuminutowego spaceru od Dworca Głównego z bezpośrednim połączeniem autobusowym z wrocławskim Portem Lotniczym, w samym sercu komunikacji miejskiej tramwajowej, autobusowej i kolejowej jednocześnie zaledwie kilka minut spacerem dzieli Cię od kawiarni, barów i restauracji oraz od ulicy Bogusławskiego, czyli słynnego, wrocławskiego “nasypu”. Tu wieczorami przenosi się życie Wrocławia. To jedno z najmodniejszych miejsc spotkań i prawdziwa uczta dla zmysłów. Życie w centrum nowoczesnego miasta daje Ci wolność, a Nowy apartamentowiec na ul. Gwarnej to synonim mobilności.

TERMINY

Realizacja budowy do Q4.2027r.

BEZPIECZNY ZAKUP

Umowa deweloperska / Bez PCC / Bez Prowizji od Kupującego.

DOSTĘPNE APARTAMENTY

Gwarna to szeroka oferta funkcjonalnych mieszkań, głównie 1 i 2-pokojowych, o przemyślanych, ustawnych układach, zapewniających elastyczność aranżacji, na tm etapie sprzedaży jest jeszcze szeroki wybór spośród metraży od 25 do 67 m2 znajdziesz mieszkanie dopasowane do Twoich potrzeb, oczekiwań Twoich najemców lub założeń inwestycyjnych - nie czekaj, zadzwoń, przyjrzyj się dostępnej ofercie i umów się na prezentację lokali w 3D, zapraszam.

Ania Cieślak- Doradca klienta

Zadzwoń, napisz maila

tel. Zobacz kontakt535 422 198

Zobacz kontaktanna.cieslak@elitare.pl

Nr oferty 20/AC

Zamieszczone na naszych stronach informacje nie stanowią oferty w rozumieniu Kodeksu Cywilnego, a dane w nich zawarte mają jedynie charakter informacyjny.

OFERTA CENOWA AKTUALNA NA DZIEŃ 29.03.2026 I OBOWIĄZUJE DO DNIA 29.03.2026

https://www.archicom.pl/wroclaw/gwarna

Oceń ofertę


0


40 wydruk błąd schowek

Ostatnio przeglądane

 

 

 

pobieranie

Pobierz wzór umowy

Umowa przedwstępna sprzedaży

wybierz plik do pobrania
doc pdf

 

 

Deweloperzy

);