Prosimy, odblokuj wyświetlanie reklam w naszym serwisie, są one związane z rynkiem nieruchomości.
To dzięki nim masz darmowy dostęp do naszych treści.

Z pozdrowieniami zespół KRN.pl :)


telefon

wiadomość

mapa

Mieszkanie, Wrocław, Krzyki

Mieszkanie na sprzedaż Wrocław (woj. Dolnośląskie), Krzyki

Lokalizacja:

Wrocław, Krzyki, ul.

Powierzchnia:

29.12 m2

Cena:

495 040 zł

Dane szczegółowe

lokalizacja:
Dolnośląskie, Wrocław, Krzyki
typ obiektu:
mieszkanie na sprzedaż
cena:
495 040 zł
pokoi:
1
piętro:
1
ilość pięter w budynku:
5
powierzchnia:
29.12 m2
powierzchnia dodatkowa:
balkon, taras, piwnica
numer ogłoszenia:
1845-12
data dodania:
01-04-2026
data modyfikacji:
01-04-2026
jakość wypełnienia oferty:
76%

Szczegóły oferty


Osiedle realizowane we Wrocławskiej dzielnicy Krzyki, na terenach obejmujących historyczne zabudowania dawnego browaru E. Haasego- to świetnie skomunikowana lokalizacja zarówno z centrum Wrocławia, jak i obwodnicą śródmiejską, a największym walorem jest bliskość terenów rekreacyjnych oraz komunikacja miejska tramwajowa i autobusowa.

Z myślą o potrzebach przyszłych mieszkańców zróżnicowaliśmy zabudowę - powstają tu wielkomiejskie, wysokie budynki, nieco niższa zabudowa osiedlowa ze skwerami i parkami kieszeniowymi oraz położona najbliżej rzeki strefa kameralna z niską zabudową. Osiedle w sposób naturalny połączy bliskość Starego Miasta z możliwością oddechu od miejskiego zgiełku. Zastosujemy przyjazne środowisku rozwiązania ekologiczne oraz zadbamy o walory estetyczne wykorzystując materiały wysokiej jakości. Do użytku mieszkańców oddamy Strefę Fitness oraz Kącik Malucha. Każde mieszkanie bez dodatkowych opłat wyposażymy w system Smart House firmy Keemple pozwalający na efektywne gospodarowanie energią oraz kontrolę jej zużycia.

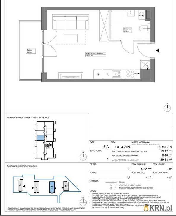
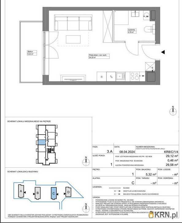
Prezentowane Mieszkanie ma powierzchnię 28,18m2 i znajduje się na pierwszym piętrze w 5 piętrowym budynku z windą, a jego główne cechy to - salon z aneksem kuchennym o powierzchni 24,33m2 z wyjściem na balkon o powierzchni 5,32m2, oraz łazienka o powierzchni 4,79m2.

Na osiedlu zapewnimy możliwość instalacji indywidualnych ładowarek przy wybranych miejscach parkingowych. Zamontowane będą też ogólnodostępne stacje ładowania samochodów elektrycznych, a zastosowanie ekologicznych takich jak panele fotowoltaiczne i oświetlenie LED pozwolą obniżyć zużycie energii elektrycznej w częściach wspólnych budynków. Do budowy chodników wykorzystamy kostkę betonową posiadającą właściwości antysmogowe, a jasną elewację, malowaną z użyciem farby antysmogowej, wykończymy efektowną płytką klinkierową. Na osiedlu powstaną pomieszczenia rowerownie wyposażone w stojaki lub wieszaki na rowery. Zainstalujemy trzyszybowe okna o wysokiej izolacyjności termicznej oraz nawiewniki z możliwością zastosowania filtra antysmogowego. Do każdego lokalu doprowadzimy instalację światłowodową oraz instalację telewizji naziemnej i satelitarnej. W mieszkaniach na parterze założymy przeciwsłoneczne rolety zewnętrzne sterowane elektrycznie.

Osiedle będzie chronione i monitorowane, a kontrolę dostępu zapewnią wideo-domofony. Wszystko to sprawi, że przyszli mieszkańcy będą czuli się tutaj komfortowo i bezpiecznie.

Termin realizacji inwestycji – I etap - 2026-05-30

-Cena brutto m. p. w garażu podziemnym: 30 000 -44 000 zł zakup do mieszkań 2 pokojowych i większych.

-Cena miejsca postojowego naziemnego -29 000 ( możliwość zakupu do mieszkań 2 pokojowych)

- Do mieszkań 2 pokojowych można kupić boksy w cenie 3500 za m2

- Do mieszkań 3 pokojowych można kupić komórki lokatorskie w cenie 4 500 za m2

Zapraszam do kontaktu w celu przygotowania oferty / umówienia się na prezentacje – Kupujący nie płaci prowizji.

Zapewniam

- profesjonalną obsługę, gwarantowaną wieloletnim doświadczeniem w branży nieruchomości-możliwość bezpłatnej rezerwacji apartamentu

- kompleksowe wsparcie na każdym etapie transakcji

- gwarancję bezpiecznego zakupu

- oszczędność czasu

-pomoc w uzyskaniu kredytu na najlepszych warunkach

- kompleksowe doradztwo

Ania Kamuda- Doradca klienta

tel. Zobacz kontakt535 422 188

Zobacz kontaktanna.kamuda@elitare.pl

Nr oferty ROB/AKR /8/C/1/4/AK

Zamieszczone na naszych stronach informacje nie stanowią oferty w rozumieniu Kodeksu Cywilnego, a dane w nich zawarte mają jedynie charakter informacyjny.

OFERTA CENOWA AKTUALNA NA DZIEŃ 31.03.2026 I OBOWIĄZUJE DO DNIA 31.03.2026

Oceń ofertę


0


27 wydruk błąd schowek

Ostatnio przeglądane

 

 

 

pobieranie

Pobierz wzór umowy

Umowa przedwstępna sprzedaży

wybierz plik do pobrania
doc pdf

 

 

Deweloperzy

);