Prosimy, odblokuj wyświetlanie reklam w naszym serwisie, są one związane z rynkiem nieruchomości.
To dzięki nim masz darmowy dostęp do naszych treści.

Z pozdrowieniami zespół KRN.pl :)


telefon

wiadomość

mapa

Mieszkanie, Wrocław, Stare Miasto, ul. Braniborska

Mieszkanie na sprzedaż Wrocław (woj. Dolnośląskie), Stare Miasto, ul. Braniborska

Lokalizacja:

Wrocław, Stare Miasto, ul. Braniborska

Powierzchnia:

27.16 m2

Cena:

458 732 zł

Dane szczegółowe

lokalizacja:
Dolnośląskie, Wrocław, Stare Miasto, ul. Braniborska
typ obiektu:
mieszkanie na sprzedaż
cena:
458 732 zł
pokoi:
1
piętro:
2
ilość pięter w budynku:
9
powierzchnia:
27.16 m2
powierzchnia dodatkowa:
balkon
numer ogłoszenia:
300120
data dodania:
30-04-2026
data modyfikacji:
30-04-2026
jakość wypełnienia oferty:
82%

Szczegóły oferty

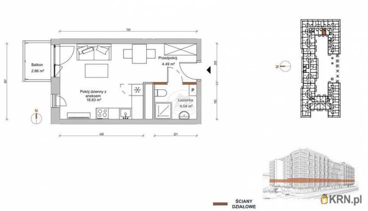
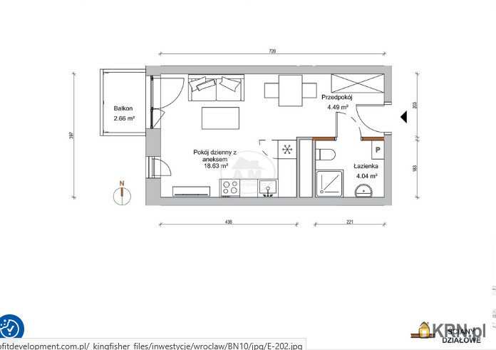
Na sprzedaż nowoczesne mieszkanie, zlokalizowane w prestiżowej inwestycji na Starym Mieście we Wrocławiu.TERAZ NIŻSZA CENA! CENA PRZED PROMOCJĄ485 893 zł Powierzchnia całkowita mieszkania 27,16 mÂ2Piętro 2Liczba pokoi 1Balkon 2,66 mÂ2Ekspozycja zachódMiejsce postojowe dostępne - 60 000 zł (opcjonalnie)Komórka lokatorska dostępna - 8000 zł/ mÂ2 (opcjonalnie rozmiary 2-6 mÂ2)Rozkład pomieszczeńPrzedpokój - 4,49 mÂ2Pokój dzienny z aneksem kuchennym -18,63 mÂ2Łazienka - 4,04 mÂ2Balkon - 2,66 mÂ2Atuty inwestycjiNowoczesny system dostępu do budynku w technologii hands freeReprezentacyjna strefa wejściowa oraz części wspólne z eleganckimi okładzinami ceramicznymi i meblowymiCiche i nowoczesne windyZielone patio i wyjątkowy ogród wertykalny inspirowany projektami Patricka Blanca - chroni przed nagrzewaniem, redukuje hałas i oczyszcza powietrzeTaras na dachu z prywatną strefą wypoczynkową tylko dla mieszkańcówPanoramiczne okna zapewniające naturalne światło i przestrzeńWideodomofony przy wejściachDrzwi antywłamaniowe klasy C z możliwością wymiany okładziny wewnętrznejSystem monitoringu z urządzeniami rejestrującymiGaraż podziemny oraz pomieszczenia wspólne na rowerySystem retencyjny do zbierania wody opadowej - wykorzystywany do podlewania zieleni na elewacjiLokalizacjaŚcisłe centrum Wrocławia - Stare MiastoW bliskim sąsiedztwie Rynku, restauracji, sklepów, punktów usługowych i instytucji kulturalnychPełna infrastruktura miejska i doskonała komunikacjaIdealne miejsce do życia lub pod inwestycjęKontaktW celu uzyskania szczegółowych informacji lub umówienia prezentacji prosimy o kontakt telefoniczny lub mailowy.Powyższy opis ma charakter informacyjny i nie stanowi oferty handlowej w rozumieniu art. 66 §1 Kodeksu Cywilnego.E/202

Oceń ofertę


0


30 wydruk błąd schowek

Ostatnio przeglądane

 

 

 

pobieranie

Pobierz wzór umowy

Umowa przedwstępna sprzedaży

wybierz plik do pobrania
doc pdf

 

 

Deweloperzy

);