Prosimy, odblokuj wyświetlanie reklam w naszym serwisie, są one związane z rynkiem nieruchomości.
To dzięki nim masz darmowy dostęp do naszych treści.

Z pozdrowieniami zespół KRN.pl :)


telefon

wiadomość

mapa

Mieszkanie, Kraków, Bieżanów-Prokocim/Złocień, ul. Agatowa

Mieszkanie na sprzedaż Kraków (woj. Małopolskie), Bieżanów-Prokocim/Złocień, ul. Agatowa

Lokalizacja:

Kraków, Bieżanów-Prokocim/Złocień, ul. Agatowa

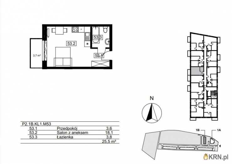
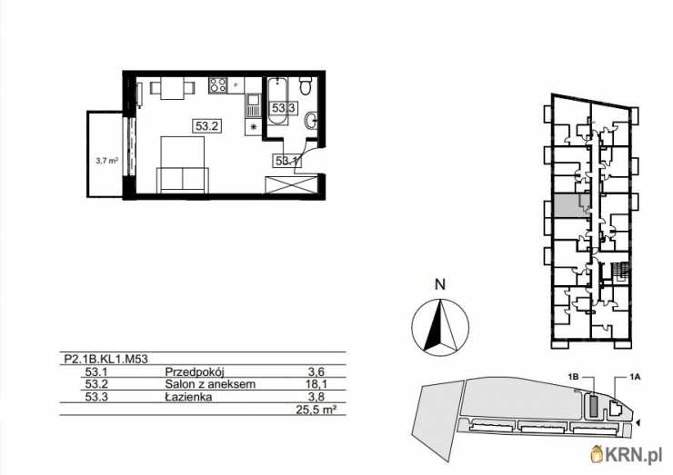
Powierzchnia:

25.72 m2

Cena:

419 000 zł

Dane szczegółowe

lokalizacja:
Małopolskie, Kraków, Bieżanów-Prokocim/Złocień, ul. Agatowa
typ obiektu:
mieszkanie na sprzedaż
cena:
419 000 zł
pokoi:
1
piętro:
2
ilość pięter w budynku:
4
powierzchnia:
25.72 m2
powierzchnia dodatkowa:
balkon
media:
woda
numer ogłoszenia:
BS2-MS-310830-136
data dodania:
17-04-2026
data modyfikacji:
17-04-2026
jakość wypełnienia oferty:
94%

Szczegóły oferty



ZŁOCIEŃ - NOWOCZESNE OSIEDLE MIESZKANIOWE.

Prezentujemy
nowoczesne osiedle
zlokalizowane w południowo-wschodniej części miasta.
W III etapie powstanie
czteropiętrowy budynek , w którym znajdują się mieszkania
w przedziale
od 25 do 68 m2 .

Podziemna część budynku przeznaczona jest na
garaż z miejscami parkingowymi.

Mieszkania na parterach będą mieć
ogródki , na wyższych piętrach
balkony . Mieszkania na najwyższych piętrach będą posiadać
duże tarasy na dachu.

Inwestycja budowana w
tradycyjnej technologii.
Mieszkania sprzedawane
w stanie deweloperskim
(tynki gipsowe, wylewki, instalacje).

Wokół
malownicza okolica , zielona przestrzeń, a przy tym dobra komunikacja miejska. Atrakcyjne połączenie z obwodnicą S7 i A4. Niedaleko inwestycji realizowany będzie przystanek kolei aglomeracyjnej, dzięki któremu z łatwością można dostać się do centrum miasta.
W okolicy znajdują się liczne sklepy spożywcze oraz inne punkty handlowo-usługowe.

Termin zakończenia budowy zaplanowano na II kwartał 2024 r.
Zapraszam do kontaktu:
Marek Popiela + Zobacz kontakt48 518 967 677
Zobacz kontaktmarek@sadurscy.pl
::DODATKOWE INFORMACJE
Rodzaj budynku: budynek wielorodzinny Dozór budynku: brak Głośność: ciche Widok: na inne budynki Gaz: brak Woda: tak - miejska Dojazd: asfalt Otoczenie: zabudowa wielorodzinna Ogrzewanie: C.O. miejskie Linie telefoniczne: TAK Komunikacja publ.: autobus miejski, tramwaj Winda: TAK Liczba wind: 1 Rozkład: rozkładowe Usytuowanie: jednostronne Drzwi antywłamaniowe: TAK Opłaty w czynszu: - Rodzaj mieszkania: jednopoziomowe Garaż: garaż pod budynkiem Stan lokalu: deweloperski Okna: PCV Instalacje: nowe Balkon: jest Liczba balkonów: 1 Powierzchnia balkonów/tarasów [m2]: 2,9000 Rok budowy: 2023 Liczba pokoi: 1 Liczba sypialni: 1 Podłogi pokoi: wylewka Ściany pokoi: zwykłe Typ kuchni: aneks kuchenny - połączony z salonem Rodzaj kuchni: otwarta na salon Podłoga kuchni: wylewka Typ łazienki: razem z wc Liczba łazienek: 1 Glazura łazienki: bez glazury Podłoga łazienki: wylewka Ściany łazienki: zwykłe Liczba przedpokoi: 1 Podłoga przedpokoi: wylewka Ściany przedpokoi: zwykłe
::LINK DO STRONY
https://sadurscy.pl/offer/BS2-MS-310830
::KONTAKT DO AGENTA
Marek Popiela + Zobacz kontakt48 518-967-677 Zobacz kontaktmarek@sadurscy.pl
::DANE BIURA
Oddział BS2, Rynek Pierwotny Przewóz
47 30-081 Kraków Zobacz kontakt12 630-90-45
--------------------------
::GRATIS | Nasza prowizja zawiera: koszt przedwstępnej notarialnej umowy sprzedaży nieruchomości z rynku wtórnego. ::GWARANCJA | Gwarancja zwrotu zadatku. Więcej informacji na sadurscy.pl/zwrot-zadatku/

Ogrzewanie: Miejskie

Kontakt do agenta:
Marek Popiela
Zobacz kontaktmarek@sadurscy.pl
+ Zobacz kontakt48 518-967-677

Oceń ofertę


0


35 wydruk błąd schowek

Ostatnio przeglądane

 

 

 

pobieranie

Pobierz wzór umowy

Umowa przedwstępna sprzedaży

wybierz plik do pobrania
doc pdf

 

 

Deweloperzy

);