Prosimy, odblokuj wyświetlanie reklam w naszym serwisie, są one związane z rynkiem nieruchomości.
To dzięki nim masz darmowy dostęp do naszych treści.

Z pozdrowieniami zespół KRN.pl :)


telefon

wiadomość

mapa

Mieszkanie, Wrocław, Krzyki

Mieszkanie na sprzedaż Wrocław (woj. Dolnośląskie), Krzyki

Lokalizacja:

Wrocław, Krzyki, ul.

Powierzchnia:

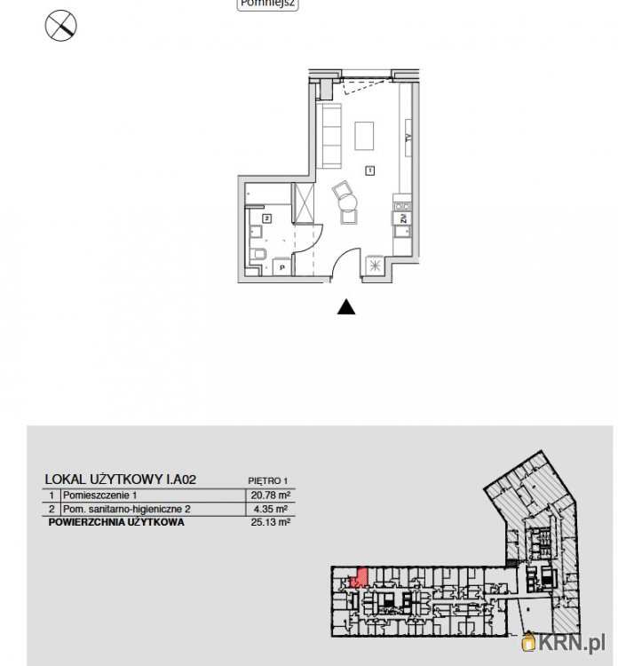
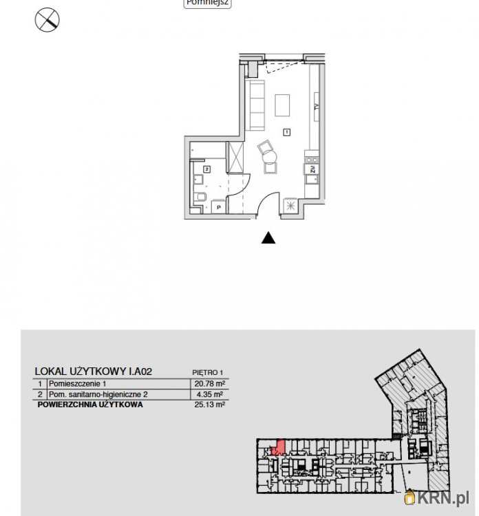
25.13 m2

Cena:

402 080 zł

Dane szczegółowe

lokalizacja:
Dolnośląskie, Wrocław, Krzyki
typ obiektu:
mieszkanie na sprzedaż
cena:
402 080 zł
pokoi:
1
piętro:
1
ilość pięter w budynku:
4
powierzchnia:
25.13 m2
powierzchnia dodatkowa:
balkon, taras, piwnica
numer ogłoszenia:
1788-12
data dodania:
31-12-2025
data modyfikacji:
31-12-2025
jakość wypełnienia oferty:
76%

Szczegóły oferty


OFERTA OD DEWELOPERA BEZ PROWIZJI DLA BIURA I PODATKU PCC 2%!

Jeżeli szukasz sposobu na zainwestowanie swoich oszczędności w nieruchomości, to najlepszy wybór dla Ciebie! Podana cena jest wartością BRUTTO i zawiera w sobie 23% VAT -atrakcyjna oferta dla Inwestora. Możesz przeznaczyć apartament na cele własne lub własnej działalności lub możesz skorzystać z oferty współpracy profesjonalnego operatora rekomendowanego przez Dewelopera lub powierzyć obsługę najmu dowolnej firmie.

W ofercie znajdziesz 113 apartamentów inwestycyjnych jedno-, dwu-, trzypokojowych, a także dwulokalowe. Łatwy dostęp zarówno do centrum Wrocławia, jak i ośrodków biznesowych, sprawia, jest doskonałym wyborem pod wynajem krótko- oraz długoterminowy. Apartamenty są wykończone pod klucz, w standardzie mają wykończone łazienki, podłogi, drzwi, klimatyzację. Ogrzewanie podłogowe -miejskie.Prezentowany apartament inwestycyjny ma powierzchnię 25,13m2 i składa się z salonu z aneksem kuchennym oraz łazienki.

Dzielnica Krzyki, w której znajduje się inwestycja, łączy wszystko, czego potrzebuje Twój biznes, aby błyszczeć. Dojazd do Starego Miasta lub w okolice Dworca Głównego zajmuje stąd zaledwie 10 minut. Małe i te większe zakupy można zrealizować w pobliskich sklepach oraz centrach handlowych. Potrzebujesz chwili wytchnienia i odpoczynku wśród w zieleni? W zaledwie kilka minut dotrzesz do Parku Wschodniego czy Parku Na Niskich Łąkach.Prezentowany lokal ma powierzchnię . Bliskość przystanków autobusowych i tramwajowych umożliwi bezproblemowe dotarcie do wielu dzielnic Wrocławia. Dodatkowo lokalizacja inwestycji przy głównych drogach sprawi, że wyjazd samochodem z miasta nie będzie stanowić kłopotu.

Dodatkowe atuty-

-Lokale są klimatyzowane- Każdy z lokali posiada wykończoną łazienkę- Reprezentacyjne lobby z recepcją, monitoring, ochrona fizyczna-Sprawny dojazd do centrum Wrocławia-Rowerownia,-miejsce postojowe w garażu podziemnym w cenie 40 000

Zapraszam do kontaktu w celu przygotowania oferty / umówienia się na prezentacje – Kupujący nie płaci prowizji.

Zapewniam

- profesjonalną obsługę, gwarantowaną wieloletnim doświadczeniem w branży nieruchomości-możliwość bezpłatnej rezerwacji lokalu

- kompleksowe wsparcie na każdym etapie transakcji

- gwarancję bezpiecznego zakupu

- oszczędność czasu

-pomoc w uzyskaniu kredytu na najlepszych warunkach

- kompleksowe doradztwo

Ania Kamuda- Doradca klienta

tel. Zobacz kontakt535 422 188

Zobacz kontaktanna.kamuda@elitare.pl

Nr oferty AKR 1A.02/AK

Zamieszczone na naszych stronach informacje nie stanowią oferty w rozumieniu Kodeksu Cywilnego, a dane w nich zawarte mają jedynie charakter informacyjny.

OFERTA CENOWA AKTUALNA NA DZIEŃ 30-12-2025 I OBOWIĄZUJE DO DNIA 30-12-2025

Oceń ofertę


0


24 wydruk błąd schowek

Ostatnio przeglądane

 

 

 

pobieranie

Pobierz wzór umowy

Umowa przedwstępna sprzedaży

wybierz plik do pobrania
doc pdf

 

 

Deweloperzy

);