Prosimy, odblokuj wyświetlanie reklam w naszym serwisie, są one związane z rynkiem nieruchomości.
To dzięki nim masz darmowy dostęp do naszych treści.

Z pozdrowieniami zespół KRN.pl :)


telefon

wiadomość

mapa

Mieszkanie, Kraków, Stare Miasto/Kazimierz, ul. Nowy

Mieszkanie na sprzedaż Kraków (woj. Małopolskie), Stare Miasto/Kazimierz, ul. Nowy

Lokalizacja:

Kraków, Stare Miasto/Kazimierz, ul. Nowy

Powierzchnia:

165.00 m2

Cena:

1 599 000 zł

Dane szczegółowe

lokalizacja:
Małopolskie, Kraków, Stare Miasto/Kazimierz, ul. Nowy
typ obiektu:
mieszkanie na sprzedaż
cena:
1 599 000 zł
pokoi:
4
piętro:
4
ilość pięter w budynku:
4
powierzchnia:
165.00 m2
numer ogłoszenia:
SBK-MS-19498
data dodania:
17-01-2026
data modyfikacji:
14-02-2026
jakość wypełnienia oferty:
76%

Szczegóły oferty

|
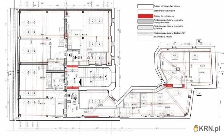
Oferujemy do sprzedaży strych do adaptacji w kamienicy na krakowskim Kazimierzu w rej.
Plac Nowy. Nieruchomość z w pełni uregulowanym stanem prawnym całego budynku.
Strych ma odrębną Księgę Wieczystą oraz pozwolenie konserwatorskie na prowadzenie prac budowlanych a także wszelkie niezbędne uchwały i zgody wspólnoty na przeprowadzenie adaptacji poddasza. Powierzchnia użytkowa do uzyskania to 165 m2, a po podłodze aż 224m2, co pozwala na wyodrębnienie czterech
niezależnych jednostek mieszkaniowych : 62,74 m2, 26,02 m2, 35,07 m2, 30,16 m2.
Przygotowany projekty architektoniczne, pozwolenie na budowę oraz niezbędne ekspertyzy .
W budynku prężnie działająca wspólnota mieszkaniowa, w 2022 r. odnowiona elewacja.
Czyste i zadbane klatki schodowe, docieplona i odnowiona część oficyny. W 2023 planowane jest docieplenie pozostałej części oficyny oraz podział piwnic.
INWESTYCJA:
Strych do adaptacji z pozwoleniem na budowę
o pow. całkowitej 224 m2 oraz użytkowej maksymalnej powierzchni do uzyskania 165 m2
Projekt przewiduje podział na 4 mieszkania : 62,74 m2, 26,02 m2, 35,07 m2, 30,16 m2.
FINANSE:
Cena strychu : 1 599 000 zł (do negocjacji)
KONTAKT:
Urszula Szembek Zobacz kontakt519 496 662
Biuro Nieruchomości Szembek Ewa, Grodzka 41
Numer licencji pośrednika odpowiedzialnego zawodowo 2240. Niniejsza oferta nie stanowi oferty w rozumieniu kodeksu cywilnego
::DODATKOWE INFORMACJE |
Rodzaj budynku: kamienica |
Parking strzeżony (odległość w metrach) [m]: 100 |
Dozór budynku: monitoring |
Głośność: ciche |
Widok: na inne budynki |
Komunikacja publ.: MPK, autobus miejski, miejska, tramwaj, autobus |
Winda: NIE |
Rozkład: dwustronne rozkładowe |
Usytuowanie: dwustronne |
Opłaty wg liczników: prąd |
Rodzaj mieszkania: jednopoziomowe |
Stan lokalu: do adaptacji |
Okna: drewniane |
Instalacje: brak |
Powierzchnia użytkowa [m2]: 165 |
Liczba pokoi: 4 |
::DANE BIURA |
Biuro Nieruchomości Szembek Ewa |
Grodzka 41 |
31-001 Kraków |
Zobacz kontakt12/432 43 90 |
www.ewaszembek.pl
|
Oferta wysłana z systemu Galactica Virgo

Kontakt do agenta:
Urszula Szembek
Zobacz kontakturszula.szembek@ewaszembek.pl
Zobacz kontakt12/432 43 90
Zobacz kontakt519 496 662

Oceń ofertę


0


116 wydruk błąd schowek

Ostatnio przeglądane

 

 

 

pobieranie

Pobierz wzór umowy

Umowa przedwstępna sprzedaży

wybierz plik do pobrania
doc pdf

 

 

Deweloperzy

);