Prosimy, odblokuj wyświetlanie reklam w naszym serwisie, są one związane z rynkiem nieruchomości.
To dzięki nim masz darmowy dostęp do naszych treści.

Z pozdrowieniami zespół KRN.pl :)


telefon

wiadomość

mapa

Mieszkanie, Kraków, Prądnik Czerwony, ul. 29 Listopada

Mieszkanie na sprzedaż Kraków (woj. Małopolskie), Prądnik Czerwony, ul. 29 Listopada

Lokalizacja:

Kraków, Prądnik Czerwony, ul. 29 Listopada

Powierzchnia:

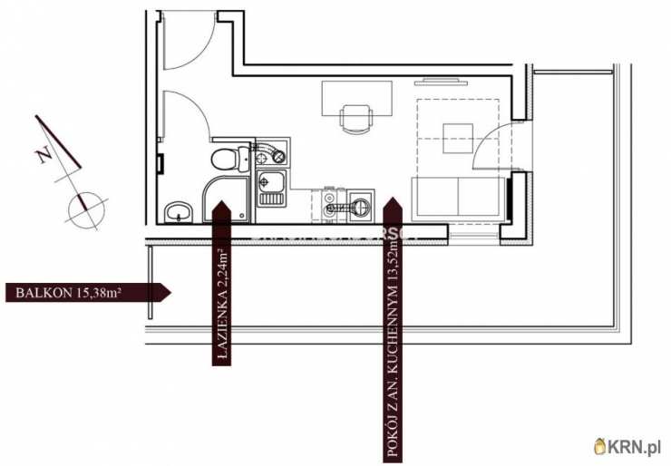
15.76 m2

Cena:

299 440 zł

Dane szczegółowe

lokalizacja:
Małopolskie, Kraków, Prądnik Czerwony, ul. 29 Listopada
typ obiektu:
mieszkanie na sprzedaż
cena:
299 440 zł
pokoi:
1
piętro:
4
ilość pięter w budynku:
5
powierzchnia:
15.76 m2
powierzchnia dodatkowa:
balkon
numer ogłoszenia:
BS2-MS-280693-126
data dodania:
30-11-2024
data modyfikacji:
30-11-2024
jakość wypełnienia oferty:
88%

Szczegóły oferty


NOWA INWESTYCJA BLISKO RYNKU GŁÓWNEGO W KRAKOWIE.
Bracia Sadurscy to oficjalny przedstawiciel handlowy dewelopera - kupując z nami nie płacisz prowizji i ukrytych kosztów.
Pozostały lokale o pow. 15~16m2 w cenie netto + 23%VAT.
Prezentowana inwestycja to
6-kondygnacyjny
budynek zaprojektowany w
nowoczesnych technologiach
wykonany z wysokiej jakości materiałów w którym mieści się
137 lokali
o powierzchniach użytkowych od
13,30 do 22,60 m2.

Lokale budowane w
podwyższonym standardzie
wykończenia deweloperskiego.
W budynku znajdują się dwie
nowoczesne windy, monitoring oraz recepcja.
Eleganckie
wykończenie klatek schodowych i korytarzy zapewnia użytkownikom
komfort i luksus
korzystania z obiektu.
Istnieje możliwość zakupu komórki lokatorskiej.
Doskonałe położenie inwestycji,
profesjonalne zagospodarowanie terenu wokół budynku,
w pobliżu
przystanki komunikacji miejskie j, ok
2 km do Rynku Głównego.
Pełna infrastruktura handlowo-usługowa.

PODANA CENA JEST CENĄ NETTO. Zapraszam na prezentację nieruchomości
Dariusz Zieliński + Zobacz kontakt48 503 112 787
Zobacz kontaktdarek.zielinski@sadurscy.pl
::DODATKOWE INFORMACJE
Kategoria oferty: Pewny Partner Rodzaj budynku: nowe budownictwo Dozór budynku: monitoring Głośność: średnio głośne Widok: na inne budynki Gaz: brak Woda: ciepła - miejska Dojazd: ASFALTOWA Otoczenie: działki zabudowane Ogrzewanie: miejskie Linie telefoniczne: TAK Komunikacja publ.: autobus Winda: TAK Liczba wind: 1 Rozkład: rozkładowe Usytuowanie: dwustronne Teren ogrodzony: TAK Opłaty w czynszu: - Rodzaj mieszkania: jednopoziomowe Garaż: możliwość kupna Stan lokalu: deweloperski Okna: PCV Instalacje: nowe Balkon: jest Liczba balkonów: 1 Rok budowy: 2022 Liczba pokoi: 1 Liczba sypialni: 1 Podłogi pokoi: wylewka Ściany pokoi: zwykłe Typ kuchni: aneks kuchenny - połączony z salonem Rodzaj kuchni: aneks kuchenny Typ łazienki: razem z wc Liczba łazienek: 1 Glazura łazienki: bez glazury Podłoga łazienki: wylewka Ściany łazienki: zwykłe Liczba przedpokoi: 1 Podłoga przedpokoi: wylewka Ściany przedpokoi: zwykłe
::LINK DO STRONY
https://sadurscy.pl/offer/BS2-MS-280693
::KONTAKT DO AGENTA
Dariusz Zieliński + Zobacz kontakt48 503-112-787 Zobacz kontaktdarek.zielinski@sadurscy.pl
::DANE BIURA
Oddział BS2, Rynek Pierwotny Przewóz
47 30-081 Kraków Zobacz kontakt12 630-90-45
Pośrednik odpowiedzialny zawodowo za wykonanie umowy pośrednictwa: Dariusz Sadurski (licencja nr: 803)
--------------------------
::GRATIS | Nasza prowizja zawiera: koszt przedwstępnej notarialnej umowy sprzedaży nieruchomości z rynku wtórnego. ::GWARANCJA | Gwarancja zwrotu zadatku. Więcej informacji na sadurscy.pl/zwrot-zadatku/

Ogrzewanie: Miejskie

Kontakt do agenta:
Dariusz Zieliński
Zobacz kontaktdarek.zielinski@sadurscy.pl
+ Zobacz kontakt48 503-112-787

Oceń ofertę


3


452 wydruk błąd schowek

Ostatnio przeglądane

 

 

 

pobieranie

Pobierz wzór umowy

Umowa przedwstępna sprzedaży

wybierz plik do pobrania
doc pdf

 

 

Deweloperzy

);