Prosimy, odblokuj wyświetlanie reklam w naszym serwisie, są one związane z rynkiem nieruchomości.
To dzięki nim masz darmowy dostęp do naszych treści.

Z pozdrowieniami zespół KRN.pl :)


telefon

wiadomość

mapa

Nowe mieszkanie, Kraków, Zwierzyniec/Wola Justowska, ul. Podłącze

Nowe mieszkanie na sprzedaż Kraków (woj. Małopolskie), Zwierzyniec/Wola Justowska, ul. Podłącze

Lokalizacja:

Kraków, Zwierzyniec/Wola Justowska, ul. Podłącze

Powierzchnia:

146.53 m2

Cena:

informacje w biurze sprzedaży

Dane szczegółowe

lokalizacja:
Małopolskie, Kraków, Zwierzyniec/Wola Justowska, ul. Podłącze
typ obiektu:
mieszkanie na sprzedaż
cena:
informacje w biurze sprzedaży
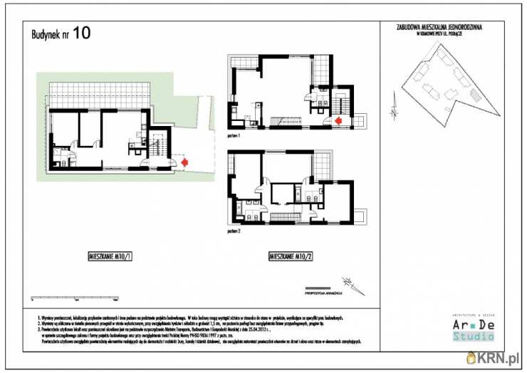
piętro:
1
powierzchnia:
146.53 m2
powierzchnia dodatkowa:
balkon
numer ogłoszenia:
M10/2
data dodania:
10-05-2018
data modyfikacji:
21-01-2022
jakość wypełnienia oferty:
94%


Szczegóły inwestycji

„Magnoliowy Ogród”

Wyobraź sobie mieszkanie zlokalizowane w najbardziej prestiżowej dzielnicy Krakowa – Woli Justowskiej, doskonale skomunikowane, w którym można doznawać piękna otaczającej natury i jednocześnie cieszyć się bliskością centrum Krakowa. Apartament zaprojektowany zgodnie z Twoimi marzeniami, w pełni funkcjonalny, wygodny i luksusowy. Apartament, w którym doświadczysz relaksu z dala od miejskiego zgiełku. Zapraszamy do naszego nowego prestiżowego projektu Magnoliowy Ogród.

Magnoliowy Ogród to elegancka, delikatna, minimalistyczna architektura, która z charakterystyczną jasną elewacją oraz dużymi przeszkleniami nawiązują do bliskości natury. Magnoliowy Ogród składa się z ośmiu budynków w zabudowie bliźniaczej i dwóch w zabudowie wolnostojącej. Apartamenty będą liczyły od 40 m2 do 135 m2. Każdy budynek posiada jeden mniejszy apartament i jeden dwupoziomowy. Dwa budynki posiadają prywatne windy. Dołożyliśmy wszelkich starań, aby w szczególny sposób zadbać o przestrzeń zewnętrzną zapewniając zapierający dech w piersiach Magnoliowy Ogród.

Oceń ofertę


9.99


6946 wydruk błąd schowek

Informacje o inwestycji

Magnoliowy Ogród

termin oddania:
gotowe
powierzchnia:
mieszkalna: od 121,35 do 146,53 m2

pokoje:

Ostatnio przeglądane

 

 

 

pobieranie

Pobierz wzór umowy

Umowa przedwstępna sprzedaży

wybierz plik do pobrania
doc pdf

 

 

Deweloperzy

);