Prosimy, odblokuj wyświetlanie reklam w naszym serwisie, są one związane z rynkiem nieruchomości.
To dzięki nim masz darmowy dostęp do naszych treści.

Z pozdrowieniami zespół KRN.pl :)


telefon

wiadomość

mapa

Mieszkanie, Trzebinia

Mieszkanie na sprzedaż Trzebinia (woj. Małopolskie)

Lokalizacja:

Trzebinia, , ul.

Powierzchnia:

126.00 m2

Cena:

678 000 zł

Dane szczegółowe

lokalizacja:
Małopolskie, Trzebinia
typ obiektu:
mieszkanie na sprzedaż
cena:
678 000 zł
pokoi:
6
piętro:
1
ilość pięter w budynku:
2
powierzchnia:
126.00 m2
numer ogłoszenia:
DNX-MS-30498-8
data dodania:
03-02-2026
data modyfikacji:
03-02-2026
jakość wypełnienia oferty:
76%

Szczegóły oferty


DO SRZEDAŻY NOWE MIESZKANIA W STANDARDZIE DEWELOPERSKIM ZNAJDUJĄCE SIĘ W MŁOSZOWEJ OBOK TRZEBINI

OFERTA BEZ PROWIZJI ORAZ PODATKU PCC
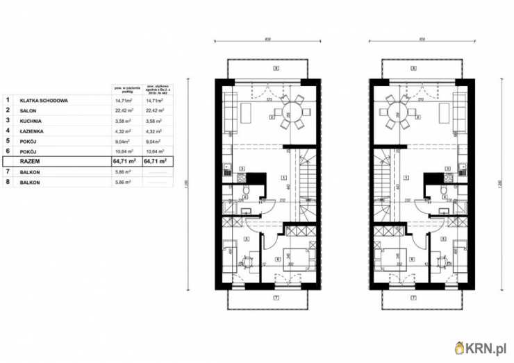
Do sprzedaży mieszkanie dwupiętrowe o powierzchni 126 m2 znajdujące się na 1 i 2 piętrze. Mieszkanie z bezpośrednim i własnym wejściem klatką schodową, która przynależy tylko do tego mieszkania. Budynek, w którym znajduje się mieszkanie wybudowany został w wysokim standardzie. Przestronne balkony oraz duże przeszklenia nadają bryłą budynków nowoczesnego i eleganckiego charakteru. Osiedle zamknięte z monitoringiem, furtką i przesuwną bramą wjazdową. Wystawa mieszkania na północny wschód oraz południowy zachód. W całym mieszkaniu złożona jest podłogówka. Ogrzewanie oraz ciepła woda z pieca gazowego.
Mieszkanie posiada 4 balkony. Istnieje możliwość wydzielenia dwóch niezależnych mieszkań po około 60 m2 każde.
Istnieje możliwość zakupu dwóch miejsc postojowych naziemnych przynależnych do tego mieszkania. Cena jednego miejsca postojowego to 10 000,00 zł

Mieszkanie wyposażone jest w instalację takie jak:

regulacji ciepła w każdym pokoju,
instalacja klimatyzacji,
instalacja zmiękczacza wody,
instalacja pod panele fotowoltaiczne,
instalacja pod elektryczne rolety,
instalacja pod alarm. LOKALIZACJA
Umiejscowienie inwestycji zapewnia szybki dojazd do dworca PKP w Trzebini, skąd odjeżdża szybka kolej do Krakowa i Katowic. W bliskiej odległości znajdują się również przystanki autobusowe, dzięki którym można dostać się do pobliskich miejscowości np.
Chrzanowa, Krakowa i Katowic. Inwestycja zlokalizowana jest dokładnie po środku trasy Kraków - Katowice.
Czas dojazdu samochodem do Krakowa i Katowic to około 35- 40 minut, a odległość to 40 km.
W bliskiej odległości Puszcza Dulowska i Pałac w Młoszowej. Dwa kilometry do Ośrodka Rekreacyjnego „Balaton” w Trzebini i 4 km do Zalewu Chechło w Trzebini. W odległości około 500 metrów znajduje się Szkoła Podstawowa nr 8, Zespół Szkół Ekonomiczno-Chemicznych oraz hala Widowiskowo - Sportowa w Trzebini.
W pobliżu pełna infrastruktura handlowo- usługowa. Najbliższy sklep w odległości 50 metrów od inwestycji. Do rynku w Trzebini ok. 2-3 minut autem oraz 10 minut na piechotę.
ZACHĘCAM DO KONTAKTU. Z MIŁĄ CHĘCIĄ PRZEPROWADZĘ CIEBIE PRZEZ CAŁY PROCES ZAKUPU TEJ NIERUCHOMOŚCI

::DODATKOWE INFORMACJE
Dozór budynku: monitoring Głośność: ciche Gaz: jest Woda: ciepła - piecyk gazowy Ogrzewanie: C.O. GAZOWE Komunikacja publ.: kolej, bus, PKP, autobus Winda: NIE Opłaty w czynszu: woda/ryczałt na wodę, monitoring, Części wspólne, administracja Stan lokalu: deweloperski Okna: PCV Balkon: jest Powierzchnia użytkowa [m2]: 126 Rok budowy: 2024 Liczba pokoi: 6
::KONTAKT DO AGENTA
Tomasz Trocha Zobacz kontakt502 181 980 Zobacz kontakttomek@danax.pl
Pośrednik odpowiedzialny zawodowo za wykonanie umowy pośrednictwa: Bartłomiej Krosta (licencja nr: 6585)
--------------------------
Od 1993 r. pośredniczymy w transakcjach na krakowskim rynku nieruchomości.
Pomożemy Ci jak przyjacielowi.

Ogrzewanie: Gazowe

Kontakt do agenta:
Tomasz Trocha
Zobacz kontakttomek@danax.pl
Zobacz kontakt502 181 980

Oceń ofertę


0


17 wydruk błąd schowek

Ostatnio przeglądane

 

 

 

pobieranie

Pobierz wzór umowy

Umowa przedwstępna sprzedaży

wybierz plik do pobrania
doc pdf

 

 

Deweloperzy

);