Prosimy, odblokuj wyświetlanie reklam w naszym serwisie, są one związane z rynkiem nieruchomości.
To dzięki nim masz darmowy dostęp do naszych treści.

Z pozdrowieniami zespół KRN.pl :)


telefon

wiadomość

mapa

Mieszkanie, Kraków, Prądnik Czerwony, ul. Reduta

Mieszkanie na sprzedaż Kraków (woj. Małopolskie), Prądnik Czerwony, ul. Reduta

Lokalizacja:

Kraków, Prądnik Czerwony, ul. Reduta

Powierzchnia:

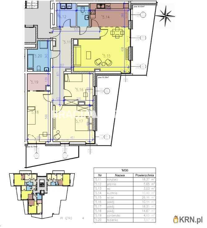
120.54 m2

Cena:

2 052 000 zł

Dane szczegółowe

lokalizacja:
Małopolskie, Kraków, Prądnik Czerwony, ul. Reduta
typ obiektu:
mieszkanie na sprzedaż
cena:
2 052 000 zł
pokoi:
4
piętro:
4
ilość pięter w budynku:
5
powierzchnia:
120.54 m2
powierzchnia dodatkowa:
balkon
numer ogłoszenia:
BS2-MS-305273-63
data dodania:
30-11-2024
data modyfikacji:
30-11-2024
jakość wypełnienia oferty:
88%

Szczegóły oferty


Marzysz, aby mieszkać w cichej i spokojnej okolicy nie rezygnując jednocześnie z uroków miasta?
Jesteś w dobrym miejscu!
Przedstawiamy inwestycję w krakowskiej dzielnicy Prądnik Czerwony, która znajduje się tuż przy 8 hektarowym parku rekreacyjno-spacerowym. W skład wchodzą
2 budynki 6- kondygnacyjne , kolejno po 22 i 37 mieszkań. Funkcjonalne układy mieszkań mieszczące się w przedziałach od
40/41 m2- 137 m2
przypadną do gustu nawet tym najbardziej wymagającym.Inwestycja wykonana z najwyższej jakości materiałów budowlanych z dbałością o każdy szczegół.
Większość mieszkań na parterach będą mieć
ogródki , na wyższych piętrach
balkony . Podziemna część budynku przeznaczona jest na
garaż z miejscami parkingowymi.
Niebywałym atutem jest lokalizacja, która sprzyja osobom zarówno przemieszczającym się samochodem jak i komunikacją miejską. Pobliskie tereny bogate są w punkty usługowo-handlowe oraz rozrywkowe np.
Serenada, Park Wodny, Multikino , co z pewnością odpowie potrzebom zarówno młodszych jak i starszych osób. Obecność
Parku
tuż obok inwestycji daje możliwość obcowania z naturą oraz spędzenia wolnego czasu na świeżym powietrzu. W bliskim sąsiedztwie zabudowy wielorodzinnej znajdują się żłobki, przedszkola oraz szkoła.

Termin zakończenia budowy zaplanowano na II kwartał 2023 r.

Zapraszam do kontaktu:
Malwina Filas

Zobacz kontaktmalwina@sadurscy.pl
Zobacz kontakt518-706-518
::DODATKOWE INFORMACJE
Kategoria oferty: Pewny Partner, Mieszkania dla rodzin z dziećmi Rodzaj budynku: nowe budownictwo Dozór budynku: brak Głośność: ciche Widok: na osiedle Gaz: brak Woda: jest Dojazd: asfalt Otoczenie: osiedle Ogrzewanie: C.O. miejskie Komunikacja publ.: MPK, miejska, tramwaj, autobus Odległość do komunikacji publicznej [m]: 200 Odl. do sklepu [m]: 150 Odl. do szkoły [m]: 800 Odl. do przedszkola [m]: 350 Winda: TAK Rozkład: jednostronne Usytuowanie: dwustronne Opłaty w czynszu: - Rodzaj mieszkania: jednopoziomowe Garaż: możliwość kupna Stan lokalu: deweloperski Okna: PCV Instalacje: nowe Balkon: jest Liczba balkonów: 3 Rok budowy: 2023 Liczba pokoi: 4 Liczba sypialni: 3 Podłogi pokoi: wylewka Ściany pokoi: zwykłe Typ kuchni: aneks kuchenny - połączony z salonem Rodzaj kuchni: aneks kuchenny Podłoga kuchni: wylewka Typ łazienki: razem z wc Liczba łazienek: 1 Glazura łazienki: bez glazury Podłoga łazienki: wylewka Ściany łazienki: zwykłe Liczba WC: 1 Glazura WC: bez glazury Podłoga WC: wylewka Liczba przedpokoi: 1 Podłoga przedpokoi: wylewka Ściany przedpokoi: zwykłe
::LINK DO STRONY
https://sadurscy.pl/offer/BS2-MS-305273
Zobacz Wirtualny Spacer: https://my.matterport.com/show/?m=C1ZFf2ayZZ4
::KONTAKT DO AGENTA
Malwina Filas + Zobacz kontakt48 518-706-518 Zobacz kontaktmalwina@sadurscy.pl
::DANE BIURA
Oddział BS2, Rynek Pierwotny Przewóz
47 30-081 Kraków Zobacz kontakt12 630-90-45
--------------------------
::GRATIS | Nasza prowizja zawiera: koszt przedwstępnej notarialnej umowy sprzedaży nieruchomości z rynku wtórnego. ::GWARANCJA | Gwarancja zwrotu zadatku. Więcej informacji na sadurscy.pl/zwrot-zadatku/

Ogrzewanie: Miejskie

Kontakt do agenta:
Malwina Filas
Zobacz kontaktmalwina@sadurscy.pl
+ Zobacz kontakt48 518-706-518

Oceń ofertę


3


447 wydruk błąd schowek

Ostatnio przeglądane

 

 

 

pobieranie

Pobierz wzór umowy

Umowa przedwstępna sprzedaży

wybierz plik do pobrania
doc pdf

 

 

Deweloperzy

);