Prosimy, odblokuj wyświetlanie reklam w naszym serwisie, są one związane z rynkiem nieruchomości.
To dzięki nim masz darmowy dostęp do naszych treści.

Z pozdrowieniami zespół KRN.pl :)


telefon

wiadomość

mapa

Mieszkanie, Kraków, Grzegórzki, ul. A. Lubomirskiego

Mieszkanie na sprzedaż Kraków (woj. Małopolskie), Grzegórzki, ul. A. Lubomirskiego

Lokalizacja:

Kraków, Grzegórzki, ul. A. Lubomirskiego

Powierzchnia:

103.10 m2

Cena:

2 015 000 zł

Dane szczegółowe

lokalizacja:
Małopolskie, Kraków, Grzegórzki, ul. A. Lubomirskiego
typ obiektu:
mieszkanie na sprzedaż
cena:
2 015 000 zł
pokoi:
4
piętro:
2
ilość pięter w budynku:
3
powierzchnia:
103.10 m2
powierzchnia dodatkowa:
balkon, piwnica
numer ogłoszenia:
BS3-MS-312789-2
data dodania:
01-11-2025
data modyfikacji:
17-01-2026
jakość wypełnienia oferty:
94%

Szczegóły oferty


Biuro Nieruchomości Bracia Sadurscy
ma przyjemność
przedstawić do sprzedaży
piękne
mieszkanie w kamienicy z 1912 roku.

Kamienicę zaprojektował i wykonał
architekt Karol Szpondrowski w 1912 roku . Nietypowy budynek z cegły został zbudowany na planie litery H.
Oczarowuje
wykuszami, balkonami i gargulcami. Wspaniała nieruchomość z duszą dla osób chcących zamieszkać w centrum miasta lub jako inwestycja.
Zarówno
secesyjna kamienica
jak i samo mieszkanie
zachowane jest w doskonałym stanie. Stropy żelbetonowe a nie drewniane, drewniana stolarka nowego typu, wymieniona instalacja.
Warto podkreślić, że mieszkanie zostało wyremontowane przez właścicieli na ich własny użytek z dbałością o każdy detal!!!
Ogrzewanie i woda ciepła- piec gazowy dwufunkcyjny.

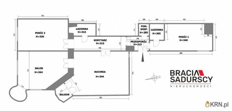
Mieszkanie
o powierzchni 103m2
składa się w pierwszej części z:

salonu z aneksem kuchennym i balkonem
dwóch pokoi
łazienki z WC
dużego przedpokoju

W drugiej części znajduje się:

pokój
przedpokój
łazienka z WC
w razie potrzeby może służyć jako oddzielne mieszkanie ze względu na osobne wejście Do mieszkania przynależy
duży
udział w piwnicy i w strychu.

Możliwość parkowania
dla mieszkańców na wewnętrznej ulicy .

Lokalizacja:

nieruchomość znajduje 3 minuty spacerem od Galerii Krakowskiej.
do Rynku Głównego to zaledwie 10 minut.
bardzo dobrze skomunikowana zarówno jeśli chodzi o komunikacje miejską jak i transport własny
w pobliżu ulice Lubicz, Mogilska, Warszawska
Opłaty:

Czynsz + fundusz remontowy 700 zł (300 zł +400 zł)
Ogrzewanie i woda -piec gazowy dwufunkcyjny
Prąd i woda wg. zużycia
Cena
2 015 000 zł
Ogłoszenie ma charakter informacyjny i nie stanowi oferty w rozumieniu Kodeksu cywilnego.
Zdjęcia mogą zawierać dodane elementy dekoracyjne, które nie są częścią wyposażenia nieruchomości.

Zapraszamy do kontaktu:
Katarzyna Rozwadowska-Różana
tel: Zobacz kontakt791-023-893
Zobacz kontaktkasia@sadurscy.pl
::DODATKOWE INFORMACJE
Rodzaj budynku: kamienica Dozór budynku: monitoring Głośność: średnio głośne Gaz: brak Woda: piec gazowy dwufunkcyjny Dojazd: ASFALTOWA Otoczenie: centrum miasta Ogrzewanie: piec dwufunkcyjny Komunikacja publ.: kolej, autobus miejski, miejska, tramwaj, PKS, PKP Odległość do komunikacji publicznej [m]: 150 Odl. do przedszkola [m]: 1000 Winda: NIE Rozkład: dwustronne Usytuowanie: dwustronne Teren ogrodzony: TAK Opłaty w czynszu: woda, fundusz remontowy, Części wspólne, administracja Opłaty wg liczników: Woda ciepła, prąd, CO Rodzaj mieszkania: apartament Piwnica: TAK Stan lokalu: bardzo dobry Okna: PCV 3 komorowe Instalacje: nowe Balkon: jest Liczba balkonów: 1 Powierzchnia użytkowa [m2]: 103,1000 Rok budowy: 1912 Liczba pokoi: 4 Wysokość pomieszczeń [m]: 3 Liczba sypialni: 3 Podłogi pokoi: parkiet Ściany pokoi: gładzie gipsowe Wystawa okien - pokoje : Pn-Wsch Podłoga kuchni: parkiet Typ łazienki: razem z wc Liczba łazienek: 2 Glazura łazienki: nowego typu Podłoga łazienki: płytki Wyposażenie łazienki: WC, wanna, umywalka, natrysk, lustro, kabina prysznicowa Ściany łazienki: glazura Liczba przedpokoi: 1 Podłoga przedpokoi: parkiet
::LINK DO STRONY
https://sadurscy.pl/offer/BS3-MS-312789
::KONTAKT DO AGENTA
Katarzyna Rozwadowska-Różana + Zobacz kontakt48 791-023-893 Zobacz kontaktkasia@sadurscy.pl
::DANE BIURA
Oddział BS3, Przewóz Przewóz 47/1 piętro 31-509 Kraków Zobacz kontakt12 429-11-00
--------------------------
::GRATIS | Nasza prowizja zawiera: koszt przedwstępnej notarialnej umowy sprzedaży nieruchomości z rynku wtórnego. ::GWARANCJA | Gwarancja zwrotu zadatku. Więcej informacji na sadurscy.pl/zwrot-zadatku/

Ogrzewanie: PIEC DWUFUNKCYJNY

Kontakt do agenta:
Katarzyna Rozwadowska-Różana
Zobacz kontaktkasia@sadurscy.pl
+ Zobacz kontakt48 791-023-893

Oceń ofertę


9.99


414 wydruk błąd schowek

Ostatnio przeglądane

 

 

 

pobieranie

Pobierz wzór umowy

Umowa przedwstępna sprzedaży

wybierz plik do pobrania
doc pdf

 

 

Deweloperzy

);