Prosimy, odblokuj wyświetlanie reklam w naszym serwisie, są one związane z rynkiem nieruchomości.
To dzięki nim masz darmowy dostęp do naszych treści.

Z pozdrowieniami zespół KRN.pl :)


telefon

wiadomość

mapa

Mieszkanie, Kraków, Grzegórzki, ul. Mogilska

Mieszkanie na sprzedaż Kraków (woj. Małopolskie), Grzegórzki, ul. Mogilska

Lokalizacja:

Kraków, Grzegórzki, ul. Mogilska

Powierzchnia:

102.00 m2

Cena:

3 517 275 zł

Dane szczegółowe

lokalizacja:
Małopolskie, Kraków, Grzegórzki, ul. Mogilska
typ obiektu:
mieszkanie na sprzedaż
cena:
3 517 275 zł
pokoi:
4
piętro:
4
ilość pięter w budynku:
4
powierzchnia:
102.00 m2
numer ogłoszenia:
SBK-MS-19326
data dodania:
28-11-2025
data modyfikacji:
17-12-2025
jakość wypełnienia oferty:
82%

Szczegóły oferty

|

OFERUJEMY PAŃSTWU DO SPRZEDAŻY apartament w centrum
w nowej inwestycji w Krakowie na ul. Mogilskiej. Inwestycja zlokalizowana w ścisłym centrum w jednej z najbardziej rozwiniętych części Krakowa. Apartament wykończony w wysokim standardzie z dbałością o każdy szczegół i jak najwyższą jakością materiałów.
Informacje o sprzedawanym mieszkaniu:
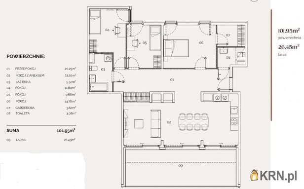
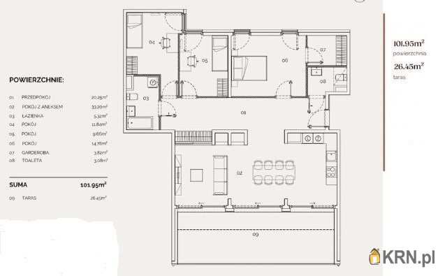
- metraż 102 m2,
- bardzo duży taras o powierzchni ponad 30 m2,
- widok na dziedziniec (mieszkanie jest ciche, nie wychodzi na ruchliwą drogę),
- piętro 4 (ostatnie),
- okna na 2 strony świata: salon na południowy wschód; sypialnie na północny-zachód;
- dobrze doświetlona część dzienna,
- cicha część sypialniana.
Dodatkowe opłaty:
- podwójne miejsce postojowe (z możliwością podłączenia ładowarki do auta elektrycznego) w garażu podziemnym 200 000 zł
Młyny Mogilska oferują doskonałą lokalizację, miejską infrastrukturę i komunikację, to nie tylko najwyższa jakość, wyjątkowy design, architektura. To bogactwo zieleni, ogólnodostępny plac zabaw dla najmłodszych, wybieg dla psów i starannie wyselekcjonowane restauracje, sklepy spożywcze i usługi, aby spełnić wszystkie potrzeby mieszkańców i zapewnić im miejsce do życia, nie tylko do mieszkania. To także codzienna kontemplacja sztuki, dzięki wykonanej przez cenionego artystę Pawła Orłowskiego autorskiej rzeźbie, która zagości na dziedzińcu inwestycji. Dużym atutem inwestycji jest jej lokalizacja gwarantująca bliskość ważnych arterii drogowych oraz duży wybór linii tramwajowych i autobusowych.

Zapraszam na prezentację.
Kontakt w sprawie oferty; Urszula Bugajska Zobacz kontakt530 260 261
Biuro Nieruchomości SZEMBEK EWA
GRODZKA 41
Numer licencji pośrednika odpowiedzialnego zawodowo 2240. Powyższa oferta ma charakter informacyjny i nie stanowi oferty handlowej w rozumieniu Kodeksu Cywilnego oraz innych właściwych przepisów prawnych.
::DODATKOWE INFORMACJE |
Rodzaj budynku: apartamentowiec |
Parking strzeżony (odległość w metrach) [m]: 100 |
Głośność: ciche |
Widok: na inne budynki |
Gaz: brak |
Woda: ciepła - miejska |
Dojazd: asfalt |
Otoczenie: centrum miasta |
Ogrzewanie: centralne |
Nadaje się na biuro: TAK |
Komunikacja publ.: MPK, autobus miejski, miejska, tramwaj, autobus |
Winda: TAK |
Rozkład: dwustronne rozkładowe |
Usytuowanie: dwustronne |
Drzwi antywłamaniowe: TAK |
Opłaty w czynszu: wywóz śmieci, woda, Winda, sprzątanie, fundusz remontowy, CO, administracja |
Opłaty wg liczników: prąd |
Rodzaj mieszkania: jednopoziomowe |
Stan lokalu: do wprowadzenia |
Okna: drewniane |
Instalacje: nowe |
Balkon: taras |
Powierzchnia użytkowa [m2]: 102 |
Rok budowy: 2023 |
Liczba pokoi: 4 |
Wysokość pomieszczeń [m]: 2,7500 |
Typ kuchni: aneks kuchenny - połączony z salonem |
Typ łazienki: razem z wc |
Liczba WC: 2 |
Liczba przedpokoi: 1 |
::DANE BIURA |
Biuro Nieruchomości Szembek Ewa |
Grodzka 41 |
31-001 Kraków |
Zobacz kontakt12/432 43 90 |
www.ewaszembek.pl
|
Oferta wysłana z systemu Galactica Virgo
Ogrzewanie: CENTRALNE

Kontakt do agenta:
Urszula Bugajska
Zobacz kontakturszula.bugajska@ewaszembek.pl
Zobacz kontakt12/432 43 90
Zobacz kontakt530 260 261

Oceń ofertę


3


104 wydruk błąd schowek

Ostatnio przeglądane

 

 

 

pobieranie

Pobierz wzór umowy

Umowa przedwstępna sprzedaży

wybierz plik do pobrania
doc pdf

 

 

Deweloperzy

);