Prosimy, odblokuj wyświetlanie reklam w naszym serwisie, są one związane z rynkiem nieruchomości.
To dzięki nim masz darmowy dostęp do naszych treści.

Z pozdrowieniami zespół KRN.pl :)


telefon

wiadomość

mapa

Lokal użytkowy, Strzelin

Lokal użytkowy na wynajem Strzelin (woj. Dolnośląskie)

Lokalizacja:

Strzelin, , ul.

Powierzchnia:

940.00 m2

Cena:

20 000 zł

Dane szczegółowe

lokalizacja:
Dolnośląskie, Strzelin
typ obiektu:
lokal użytkowy na wynajem
cena:
20 000 zł
ilość pięter w budynku:
1
powierzchnia:
940.00 m2
media:
prąd, gaz, woda
numer ogłoszenia:
46/3265/OOW
data dodania:
01-08-2024
data modyfikacji:
01-08-2024
jakość wypełnienia oferty:
70%

Szczegóły oferty

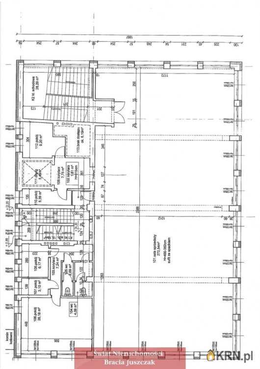
Prezentujemy Państwu obiekt handlowo-usługowy o pow. 940 mkw
-parter 540 mkw
- I p. 440 mkw
+ pomieszczenia piwniczne
+ duży przynależny parking

Budynek jest po remoncie został ocieplony i wymienione zostały okna, wejście do budynku jest dostosowane dla osób niepełnosprawnych, na zapleczu jest rampa dla samochodów dostawczych z dostępem do windy towarowej.

Media: instalacja wodno-kanalizacyjna, elektryczna (moc 38 KW), telefoniczna, ogrzewanie gazowe osobne dla każdej kondygnacji.

cena 20.000 zł/mkw netto + opłaty wg wskazań liczników

Serdecznie Polecam i Zapraszam Na Prezentację
agent prowadzący: Robert Miś, tel. Zobacz kontakt663 820 463
e-mail: Zobacz kontaktr.mis@swiat.nieruchomosci.pl

Świadectwo charakterystyki energetycznej zostanie przedłożone do zawarcia umowy, zgodnie z wymogami USTAWY z dnia 7 października 2022 r. o zmianie ustawy o charakterystyce energetycznej budynków oraz ustawy - Prawo budowlane

Uwaga!
Prezentowane w serwisie oferty nie stanowią oferty handlowej w porozumieniu art. 66 Kodeksu Cywilnego i mogą być nieaktualne.

NOTA PRAWNA:
Opis oferty zawarty na stronie internetowej sporządzany jest na podstawie oględzin nieruchomości oraz informacji uzyskanych od właściciela, może podlegać aktualizacji i nie stanowi oferty określonej w art. 66 i następnych K.C












Prezentowana oferta nie stanowi oferty handlowej w rozumieniu Art. 66 par. 1 Kodeksu Cywilnego, a dane w niej zawarte mają charakter jedynie informacyjny i mogą ulec zmianie.

Ofertę poleca ŚWIAT NIERUCHOMOŚCI oraz Centrum Kredytowe - z KREDYTem ZA PAN BRAT.

CENTRUM NOWYCH MIESZKAŃ zaprasza - Wrocław, ul. Oławska 28.



Oferta wysłana z programu dla biur nieruchomości ASARI CRM (asaricrm.com)



Kontakt:
Numer telefonu: + Zobacz kontakt48 663 82 04 63, Zobacz kontakt71 330 55 07
Adres email: Zobacz kontaktr.mis@swiat.nieruchomosci.pl
Numer licencji pośrednika: 646

Oceń ofertę


9.99


932 wydruk błąd schowek

Ostatnio przeglądane

 

 

 

pobieranie

Pobierz wzór umowy

Umowa przedwstępna najmu

wybierz plik do pobrania
doc pdf

 

 

Deweloperzy

);