Prosimy, odblokuj wyświetlanie reklam w naszym serwisie, są one związane z rynkiem nieruchomości.
To dzięki nim masz darmowy dostęp do naszych treści.

Z pozdrowieniami zespół KRN.pl :)


telefon

wiadomość

mapa

Lokal użytkowy, Gdynia, Śródmieście, ul. Świętojańska

Lokal użytkowy na sprzedaż Gdynia (woj. Pomorskie), Śródmieście, ul. Świętojańska

Lokalizacja:

Gdynia, Śródmieście, ul. Świętojańska

Powierzchnia:

87.50 m2

Cena:

1 690 000 zł

oferta nieaktualna

Dane szczegółowe

lokalizacja:
Pomorskie, Gdynia, Śródmieście, ul. Świętojańska
typ obiektu:
lokal użytkowy na sprzedaż
cena:
1 690 000 zł
piętro:
1
ilość pięter w budynku:
4
powierzchnia:
87.50 m2
numer ogłoszenia:
PAN265363
data dodania:
04-03-2024
data modyfikacji:
10-02-2025
jakość wypełnienia oferty:
70%

Szczegóły oferty

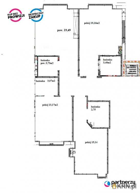
LOKAL BIUROWO - USŁUGOWY 87,5m2 + ARCHIWUM 93,5m2NOWA WINDALOKALIZACJA:Lokal znajduje się w ścisłym CENTRUM GDYNI przy jednej z najbardziej popularnych ulic, ul. Świętojańskiej.BUDYNEK:Kamienica z lat 30 w bardzo dobrym stanie, przez kilka lat funkcjonująca jako placówka bankowa od parteru po pierwsze piętro, piwnica pełniła funkcję archiwum.LOKAL:Lokal na I piętrze o pow. 87,5 m2, oryginalnie 4 pokojowy plus piwnica 93,5m2W skład mieszkania/biura wchodzą:- 4 POKOJE- KUCHNIA- ŁAZIENKA - PRZEDSIONEK - WC - PRZEDPOKÓJ Istnieje możliwość uzyskania pozwolenia na przebudowę przedmiotowego lokalu na 4 samodzielne apartamenty inwestycyjne - każdy będzie miał niezależne wejście z korytarza, osobną łazienkę oraz aneks kuchenny.DODATKOWO:- Miejskie miejsca postojowe dla klientów i użytkowników lokali bezpośrednio przy wejściu do budynku.- Wysoki standard wykończenia całej kamienicy ( nowa elewacja , nowe okna , nowa winda ) - piwnica ( magazyn archiwum) o pow. 93,5m2 w idealnym stanie- ogrzewanie miejskiej i ciepła woda miejska- cena ofertowa jest ceną netto, VAT 23%.ZAPRASZAM NA PREZENTACJĘ!KUP Z NAMI - KORZYSTNIE I BEZPIECZNIE!- 0% prowizji od Kupującego (dotyczy ofert oznaczonych znaczkiem KUP bez prowizji) i żadnych dodatkowych lub ukrytych kosztów- gwarantujemy bezpieczny zakup i najlepszą cenę- oferujemy skuteczną i bezpłatną pomoc w uzyskaniu kredytu- zapewniamy fachowe doradztwo przy zakupie pod inwestycję

Oceń ofertę


3


414 wydruk błąd schowek

Ostatnio przeglądane

 

 

 

pobieranie

Pobierz wzór umowy

Umowa przedwstępna sprzedaży

wybierz plik do pobrania
doc pdf

 

 

Deweloperzy

);