Prosimy, odblokuj wyświetlanie reklam w naszym serwisie, są one związane z rynkiem nieruchomości.
To dzięki nim masz darmowy dostęp do naszych treści.

Z pozdrowieniami zespół KRN.pl :)


telefon

wiadomość

mapa

Lokal użytkowy, Gliwice

Lokal użytkowy na wynajem Gliwice (woj. Śląskie)

Lokalizacja:

Gliwice, , ul.

Powierzchnia:

787.79 m2

Cena:

24 000 zł

Dane szczegółowe

lokalizacja:
Śląskie, Gliwice
typ obiektu:
lokal użytkowy na wynajem
cena:
24 000 zł
powierzchnia:
787.79 m2
numer ogłoszenia:
NXH-BW-5992
data dodania:
03-01-2026
data modyfikacji:
03-01-2026
jakość wypełnienia oferty:
52%

Szczegóły oferty


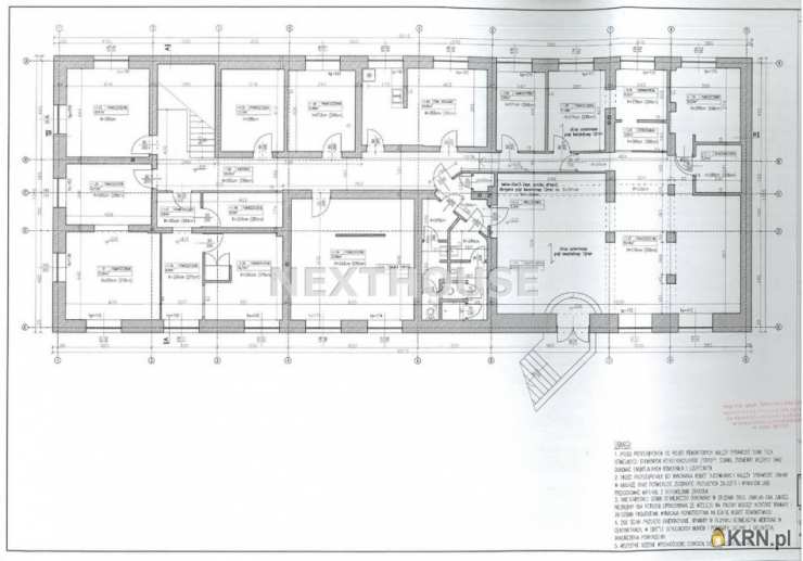
Oferujemy Państwu do wynajęcia nowoczesny i funkcjonalny obiekt dwukondygnacyjny, handlowo-biurowo-usługowy z miejskim ogrzewaniem i ciepłą wodą na działce 1658 m 2 , w Gliwicach, bezpośrednio przy węźle autostrad
A-4, A-1 i DK902. Nieruchomość po ekspertyzie budowlanej z możliwością rozbudowy o kolejne dwie kondygnacje.Parter:12
pomieszczeń biurowych o wysokim standardzie, klimatyzowanych z możliwością ich dowolnej aranżacji, pomieszczenie socjalne, 2 WC oraz hall o łącznej powierzchni 410,30 m 2 . Przyziemie:14 pomieszczeń, pomieszczenie socjalne, 2 serwerownie, wymiennikownia, 2 WC oraz korytarz o łącznej powierzchni 377,49 m 2 . Budynek wykonano w technologii tradycyjnej z cegły, docieplono styropianem, dwa niezależne wejścia, alarm, klimatyzacja w części biurowej, własne miejsca parkingowe. Cena najmu nie obejmuje mediów. Zapraszamy na prezentację.

Bezpieczeństwo transakcji gwarantuje licencjonowany pośrednik w obrocie nieruchomościami: Jerzy Piotrowski, nr licencji zawodowej Polskiej Federacji Rynku Nieruchomości nr:25088.
Zobacz Wirtualny Spacer: https://panoramy.galactica.pl/bck/159769
Pośrednik odpowiedzialny zawodowo za wykonanie umowy pośrednictwa: Jerzy Piotrowski
(licencja nr: 25088)
Oferta wysłana z systemu BCK Galactica
Ogrzewanie: Miejskie

Kontakt do agenta:
Jerzy Piotrowski
Zobacz kontaktj.piotrowski@nexthouse.com.pl
Zobacz kontakt535096333

Oceń ofertę


0


118 wydruk błąd schowek

Ostatnio przeglądane

 

 

 

pobieranie

Pobierz wzór umowy

Umowa przedwstępna najmu

wybierz plik do pobrania
doc pdf

 

 

Deweloperzy

);