Prosimy, odblokuj wyświetlanie reklam w naszym serwisie, są one związane z rynkiem nieruchomości.
To dzięki nim masz darmowy dostęp do naszych treści.

Z pozdrowieniami zespół KRN.pl :)


telefon

wiadomość

mapa

Lokal użytkowy, Gdańsk, Orunia-Św. Wojciech-Lipce/Orunia

Lokal użytkowy na wynajem Gdańsk (woj. Pomorskie), Orunia-Św. Wojciech-Lipce/Orunia

Lokalizacja:

Gdańsk, Orunia-Św. Wojciech-Lipce/Orunia, ul.

Powierzchnia:

710.00 m2

Cena:

27 000 zł

Dane szczegółowe

lokalizacja:
Pomorskie, Gdańsk, Orunia-Św. Wojciech-Lipce/Orunia
typ obiektu:
lokal użytkowy na wynajem
cena:
27 000 zł
piętro:
parter
ilość pięter w budynku:
2
powierzchnia:
710.00 m2
numer ogłoszenia:
DJ736673
data dodania:
16-10-2025
data modyfikacji:
16-03-2026
jakość wypełnienia oferty:
52%

Szczegóły oferty

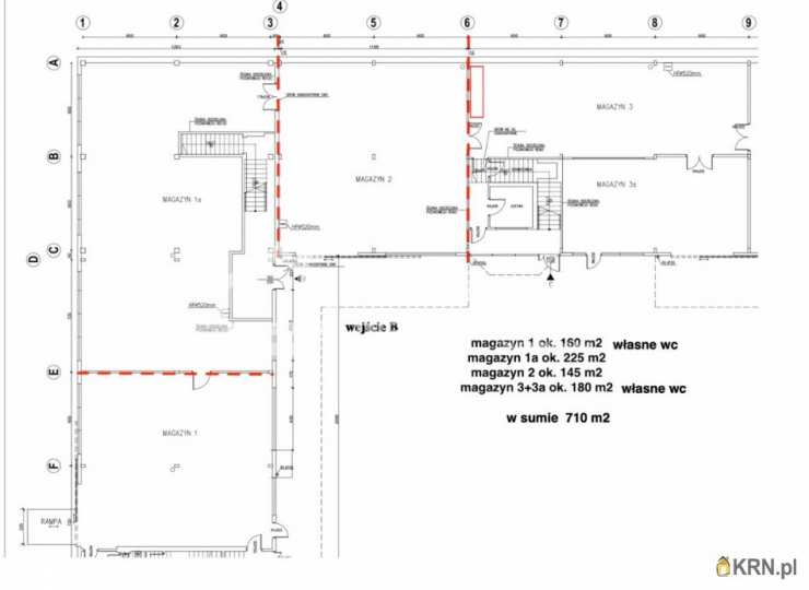
Magazyn na wynajem o powierzchni 710m2 Gdańsk Orunia Trakt Św. Wojciecha Dostępny Od 01 lutego 2026 roku. Wysokość hali 4 metry. Posadzka antystatyczna. Ogrzewany i w części klimatyzowany. Istnieje możliwość podziału i wynajmu na mniejsze. (160m2, 225m2, 145m2,180m2 )Dogodny dojazd TIR do obwodnicy. Miejsca parkingowe. Cena 27.000 nettoWięcej informacji u Agenta prowadzącego,Anna Rachońtel. Zobacz kontakt668 862 853 zapraszam na prezentację.

Oceń ofertę


9.99


630 wydruk błąd schowek

Ostatnio przeglądane

 

 

 

pobieranie

Pobierz wzór umowy

Umowa przedwstępna najmu

wybierz plik do pobrania
doc pdf

 

 

Deweloperzy

);