Prosimy, odblokuj wyświetlanie reklam w naszym serwisie, są one związane z rynkiem nieruchomości.
To dzięki nim masz darmowy dostęp do naszych treści.

Z pozdrowieniami zespół KRN.pl :)


telefon

wiadomość

mapa

Lokal użytkowy, Czarnochowice

Lokal użytkowy na wynajem Czarnochowice (woj. Małopolskie)

Lokalizacja:

Czarnochowice, , ul.

Powierzchnia:

55.11 m2

Cena:

5 000 zł

Dane szczegółowe

lokalizacja:
Małopolskie, Czarnochowice
typ obiektu:
lokal użytkowy na wynajem
cena:
5 000 zł
piętro:
parter
powierzchnia:
55.11 m2
numer ogłoszenia:
DNX-LW-30645
data dodania:
31-01-2026
data modyfikacji:
31-01-2026
jakość wypełnienia oferty:
47%

Szczegóły oferty



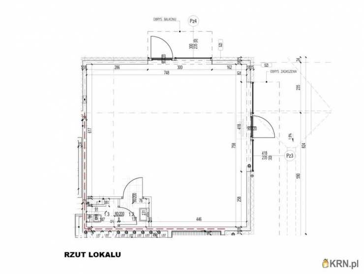
Do wynajęcia nowoczesny lokal handlowo-usługowy - 55,11 m² | Czarnochowice (Wieliczka / Kraków)
Oferujemy do wynajęcia funkcjonalny lokal handlowo-usługowy o powierzchni
55,11 m² , zlokalizowany w Czarnochowicach, w bezpośrednim sąsiedztwie Wieliczki i Krakowa.
Lokal znajduje się w
stanie deweloperskim , co daje przyszłemu najemcy pełną swobodę aranżacji wnętrza zgodnie z profilem prowadzonej działalności. Składa się z przestronnej sali typu
open space
oraz łazienki.
Wejście bezpośrednio z ulicy
zapewnia dobrą widoczność i łatwy dostęp dla klientów.
Dzięki
narożnemu położeniu
oraz
dużym przeszkleniom
wnętrze jest doskonale doświetlone światłem dziennym, co znacząco podnosi komfort pracy i atrakcyjność lokalu. To idealna propozycja dla działalności handlowej, usługowej, biurowej lub medycznej.
Atuty lokalu:

światłowód

klimatyzacja

ogrzewanie podłogowe

wentylacja mechaniczna

3 miejsca parkingowe w cenie najmu

Nieruchomość położona jest na
nowo wybudowanym osiedlu budynków wielorodzinnych , co gwarantuje duży potencjał klientów i stały ruch pieszy. Dodatkowym atutem jest
bardzo dobry dojazd
do Wieliczki oraz Krakowa.
Opłaty:

czynsz najmu:
5 000 zł netto / miesiąc

czynsz administracyjny (z zaliczkami na niektóre media):
15,85 zł/m²

kaucja:
jednomiesięczny czynsz najmu

Zapraszamy na prezentację lokalu.

::DODATKOWE INFORMACJE
Rodzaj budynku: blok Dozór budynku: alarm Dojazd: asfaltowa/kostka Ogrzewanie: C.O. GAZOWE Internet: TAK Komunikacja publ.: bus, autobus podmiejski Sąsiedztwo: zabudowa mieszana Usytuowanie: narożne Wysokość kondygnacji [m]: 2,76 Możliwość parkowania: tak Naziemn. miejsc parking.: 3 Położenie lokalu: ulica osiedlowa Wejście: od ulicy Stan lokalu: deweloperski Okna: PCV Instalacje: nowe Powierzchnia użytkowa [m2]: 55,1100 Rodzaj lokalu: jednopoziomowy Przeznaczenie lokalu: handlowo-usługowy Miejsce na reklamę: tak Typ kaucji: jednomiesięczna
::KONTAKT DO AGENTA
Stanisław Godłowski Zobacz kontakt502 181 981 Zobacz kontaktstaszek@danax.pl
Pośrednik odpowiedzialny zawodowo za wykonanie umowy pośrednictwa: Bartłomiej Krosta (licencja nr: 6585)
--------------------------
Od 1993 r. pośredniczymy w transakcjach na krakowskim rynku nieruchomości.
Pomożemy Ci jak przyjacielowi.

Ogrzewanie: Gazowe

Kontakt do agenta:
Stanisław Godłowski
Zobacz kontaktstaszek@danax.pl
Zobacz kontakt502 181 981

Oceń ofertę


0


16 wydruk błąd schowek

Ostatnio przeglądane

 

 

 

pobieranie

Pobierz wzór umowy

Umowa przedwstępna najmu

wybierz plik do pobrania
doc pdf

 

 

Deweloperzy

);