Prosimy, odblokuj wyświetlanie reklam w naszym serwisie, są one związane z rynkiem nieruchomości.
To dzięki nim masz darmowy dostęp do naszych treści.

Z pozdrowieniami zespół KRN.pl :)


telefon

wiadomość

mapa

Lokal użytkowy, Kraków, Nowa Huta, ul. Igołomska

Lokal użytkowy na wynajem Kraków (woj. Małopolskie), Nowa Huta, ul. Igołomska

Lokalizacja:

Kraków, Nowa Huta, ul. Igołomska

Powierzchnia:

4100.00 m2

Cena:

164 000 zł

Dane szczegółowe

lokalizacja:
Małopolskie, Kraków, Nowa Huta, ul. Igołomska
typ obiektu:
lokal użytkowy na wynajem
cena:
164 000 zł
powierzchnia:
4100.00 m2
numer ogłoszenia:
BS5-HW-312740-3
data dodania:
03-12-2025
data modyfikacji:
03-12-2025
jakość wypełnienia oferty:
64%

Szczegóły oferty

|
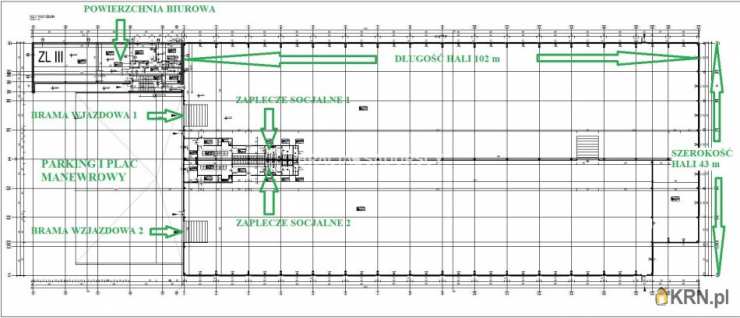
Do wynajęcia nowa hala o przeznaczeniu produkcyjnym lub magazynowym przy ul. Igołomskiej.
Hala usytuowana w
Strefie Aktywności Gospodarczej Kraków Igołomska Północ
przy
ul. Badeniego .
Hala ma powierzchnię ok.
4100m 2
, jest konstrukcji dwunawowej o
wysokości 10,2 m w okapie i 11,2 m w kalenicy . Wyposażenie hali stanowią
4 suwnice , po dwie w każdej nawie, udźwig jednej
suwnicy
wynosi
5 t , więc przy wspólnej pracy w nawie uzyskuje się
udźwig 10 t .
Ściany obudowane
płytami warstwowymi poliuretanowymi
o grubości
120 mm , na dachu membrana izolacyjna i
płyta poliuretanowa
o grubości
160 mm . Elementy konstrukcyjne posiadają bardzo dobre
parametry termoizolacyjności
- współczynnik
przenikalności cieplnej
dachu
Uc=0,14 , ścian zewnętrznych
Uc=0,18 .
Posadzka o grubości 18 cm , wytrzymałość na nacisk
10-12 t/m 2 .
W ścianie północnej znajdują się
2 bramy wjazdowe
o wym.
4 m x 4,5 m , umożliwiające wjazd samochodu ciężarowego TIR.
Plac manewrow
y
przed halą od strony północnej o pow.
800 m 2
, utwardzony kostką cementową.
W każdej nawie hali znajduje się
oddzielne zaplecze sanitarne
o pow.
65 m 2
.
Dach hali przystosowany do montażu paneli fotowoltaicznych, które zredukują koszty zużycia energii elektrycznej.
W projekcie budowa zaplecza biurowego o pow. użytkowej ok. 600 m 2 .
Możliwość wynajęcia całej hali lub mniejszej części w zależności od potrzeb.
Media: woda, prąd (moc przyłączeniowa 100 kW z możliwością zwiększenia), kanalizacja sanitarna miejska.

Planowany termin oddania do użytkowania II kwartał 2026 r.
Czynsz najmu: 40 zł/m 2
netto
Koszty eksploatacyjne: wg indywidualnego zużycia mediów

Biuro pomaga bezpiecznie przeprowadzić transakcję.

Zapraszam do kontaktu w celu uzyskania dodatkowych informacji na temat prezentowanej nieruchomości.

Wojciech Sudoł
+ Zobacz kontakt48 509 907 533
Zobacz kontaktwojtek@sadurscy.pl
::DODATKOWE INFORMACJE |
Dojazd: asfalt |
Otoczenie: zakład produkcyjny |
Ogrzewanie: pompa ciepła |
Komunikacja publ.: autobus |
Odległość do komunikacji publicznej [m]: 1000 |
Odległość od centrum [m]: 17000 |
Odl. od lotniska [m]: 39000 |
Położenie: teren przemysłowy |
Plac utwardzany: TAK |
Plac manewrowy: TAK |
Liczba kondygnacji: 1 |
Wysokość hali od [m]: 11,2000 |
Wysokość hali do [m]: 11,2000 |
Przydział mocy: 100 |
Liczba wrót wejść.: 2 |
Wym. wrót wejściowych [m]: 4m x 4,5m |
Suwnica: TAK |
Udźwig suwnicy: 10000 |
Materiał konstrukcyjny: płyta warstwowa |
Możliwość wjazdu TIR-a: TAK |
Dostęp samochodów: dostęp dla TIR |
Opłaty wg liczników: woda, prąd |
Wymiary działki [m]: 150 |
Zagosp. działki: zagospodarowana |
Ukształtowanie działki: płaska |
Kształt działki: prostokąt |
Rok budowy: 2025 |
Czynsz najmu netto /m2: 40 |
Pow. każdej kondyg. [m2]: 4100 |
Liczba pomieszczeń socjalnych: 12 |
Powierzchnia pomieszczeń socjalnych [m2]: 130 |
Liczba pomieszczeń produkcyjnych: 2 |
Powierzchnia pomieszczeń produkcyjnych [m2]: 41000 |
::LINK DO STRONY |
https://sadurscy.pl/offer/BS5-HW-312740
Zobacz Wirtualny Spacer: https://panoramy.galactica.pl/virgo/489865
::KONTAKT DO AGENTA |
Wojciech Sudoł |
+ Zobacz kontakt48 509-907-533 |
Zobacz kontaktwojtek@sadurscy.pl
::DANE BIURA |
Oddział BS5, Nowa Huta |
Bracia Sadurscy Dariusz Sadurski |
Os. Kazimierzowskie 36 |
31-844 Kraków |
Zobacz kontakt12 265 10 29
|
Oferta wysłana z systemu Galactica Virgo
Ogrzewanie: POMPA CIEPLA

Kontakt do agenta:
Wojciech Sudoł
Zobacz kontaktwojtek@sadurscy.pl
+ Zobacz kontakt48 509-907-533

Oceń ofertę


0


52 wydruk błąd schowek

Ostatnio przeglądane

 

 

 

pobieranie

Pobierz wzór umowy

Umowa przedwstępna najmu

wybierz plik do pobrania
doc pdf

 

 

Deweloperzy

);