Prosimy, odblokuj wyświetlanie reklam w naszym serwisie, są one związane z rynkiem nieruchomości.
To dzięki nim masz darmowy dostęp do naszych treści.

Z pozdrowieniami zespół KRN.pl :)


telefon

wiadomość

mapa

Lokal użytkowy, Kraków, Prądnik Biały/Górka Narodowa

Lokal użytkowy na sprzedaż Kraków (woj. Małopolskie), Prądnik Biały/Górka Narodowa

Lokalizacja:

Kraków, Prądnik Biały/Górka Narodowa, ul.

Powierzchnia:

302.60 m2

Cena:

2 490 000 zł

Dane szczegółowe

lokalizacja:
Małopolskie, Kraków, Prądnik Biały/Górka Narodowa
typ obiektu:
lokal użytkowy na sprzedaż
cena:
2 490 000 zł
piętro:
parter
ilość pięter w budynku:
2
powierzchnia:
302.60 m2
numer ogłoszenia:
DNX-LS-30445
data dodania:
05-11-2025
data modyfikacji:
07-01-2026
jakość wypełnienia oferty:
64%

Szczegóły oferty



Budynek biurowo-usługowy na sprzedaż - Prądnik Biały, Kraków
Do sprzedaży
budynek biurowo-usługowy
o całkowitej powierzchni
302,6
m²
(użytkowej
270,3
m² ), położony na działce
6,97 ara
w atrakcyjnej lokalizacji na Prądniku Białym, w pobliżu wjazdu na
obwodnicę północną Krakowa .
Budynek oddany do użytkowania w
2002 roku , ostatnia renowacja przeprowadzona w
2013 roku . Obecnie wymaga odświeżenia, co pozwala na dowolną aranżację wnętrz pod własne potrzeby.
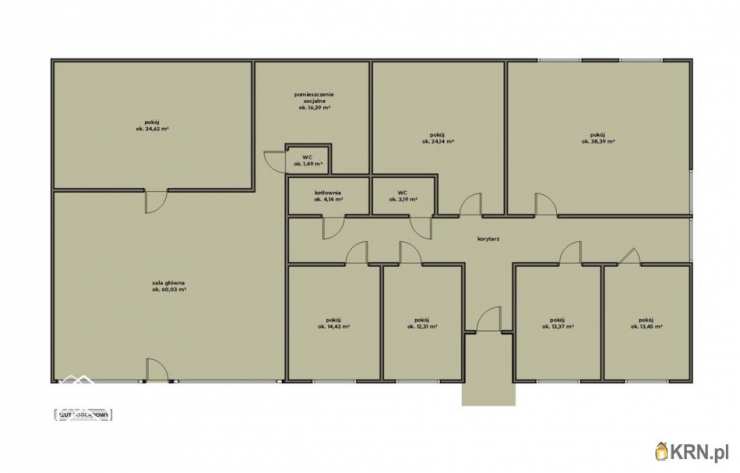
Układ pomieszczeń

Parter:

Sala główna - 60,03 m²

7 pokoi biurowych - 34,62 m², 24,14 m², 38,39 m², 14,42 m², 12,31 m², 13,37 m², 13,45 m²

Pomieszczenie socjalne - 16,39 m²

Kotłownia - 4,14 m²

Dwie toalety - 1,49 m² i 3,19 m²

Poddasze:

Open space do dowolnej adaptacji, wysokość do kalenicy 3 m, skosy. powierzchnia podłogi ok 300m2

Działka i parking

Powierzchnia działki:
6,97 ara , dodatkowo udział 1/3 w działce sąsiedniej o powierzchni 1,44 ara

Możliwość parkowania
15-20 samochodów , w tym wjazdu
samochodów ciężarowych

Parking na całym terenie funkcjonuje w oparciu o nieformalną umowę z sąsiednim budynkiem

Wyposażenie i instalacje

Instalacje: wodna, gazowa, elektryczna, kanalizacyjna, alarmowa

Budynek przystosowany pod
hurtownię i biura , możliwość dalszej adaptacji pod różne funkcje usługowe

Atuty nieruchomości

Doskonała lokalizacja z szybkim dojazdem do
obwodnicy Krakowa

Duży teren pod parking i wjazd samochodów ciężarowych

Możliwość dowolnej adaptacji poddasza

Budynek w zabudowie bliźniaczej z własną działką i udziałem w działce sąsiedniej

Podsumowanie
Nieruchomość idealnie sprawdzi się jako
siedziba firmy, biura z magazynem, hurtownia lub inna działalność usługowa
wymagająca dużej powierzchni i dogodnego dojazdu.
Cena: 2490000zł netto (+23% VAT)
Zapraszamy na prezentację!
To wyjątkowa okazja, aby obejrzeć nieruchomość, która łączy funkcjonalność, przestrzeń i świetną lokalizację. Skontaktuj się z nami i przekonaj się osobiście, jak dobrze może służyć Twojej firmie.
::DODATKOWE INFORMACJE
Rodzaj budynku: biurowo-usługowy Piętro: wysoki parter Dozór budynku: alarm Dojazd: asfalt Ogrzewanie: C.O. GAZOWE Sąsiedztwo: działki zabudowane Możliwość parkowania: tak Podłogi: panele Stan lokalu: do odświeżenia Okna: PCV Instalacje: nowe Powierzchnia użytkowa [m2]: 270,3000 Rok budowy: 2002 Przeznaczenie lokalu: handlowo-usługowy, biurowo - magazynowy Miejsce na reklamę: tak
::KONTAKT DO AGENTA
Stanisław Godłowski Zobacz kontakt502 181 981 Zobacz kontaktstaszek@danax.pl
Pośrednik odpowiedzialny zawodowo za wykonanie umowy pośrednictwa: Bartłomiej Krosta (licencja nr: 6585)
--------------------------
Od 1993 r. pośredniczymy w transakcjach na krakowskim rynku nieruchomości.
Pomożemy Ci jak przyjacielowi.

Ogrzewanie: Gazowe

Kontakt do agenta:
Stanisław Godłowski
Zobacz kontaktstaszek@danax.pl
Zobacz kontakt502 181 981

Oceń ofertę


3


557 wydruk błąd schowek

Ostatnio przeglądane

 

 

 

pobieranie

Pobierz wzór umowy

Umowa przedwstępna sprzedaży

wybierz plik do pobrania
doc pdf

 

 

Deweloperzy

);