Prosimy, odblokuj wyświetlanie reklam w naszym serwisie, są one związane z rynkiem nieruchomości.
To dzięki nim masz darmowy dostęp do naszych treści.

Z pozdrowieniami zespół KRN.pl :)


telefon

wiadomość

mapa

Lokal użytkowy, Kraków, Zwierzyniec, ul. Królowej Jadwigi

Lokal użytkowy na sprzedaż Kraków (woj. Małopolskie), Zwierzyniec, ul. Królowej Jadwigi

Lokalizacja:

Kraków, Zwierzyniec, ul. Królowej Jadwigi

Powierzchnia:

289.00 m2

Cena:

3 100 000 zł

Dane szczegółowe

lokalizacja:
Małopolskie, Kraków, Zwierzyniec, ul. Królowej Jadwigi
typ obiektu:
lokal użytkowy na sprzedaż
cena:
3 100 000 zł
piętro:
parter
ilość pięter w budynku:
2
powierzchnia:
289.00 m2
media:
prąd, gaz, woda
numer ogłoszenia:
22746
data dodania:
05-02-2026
data modyfikacji:
07-05-2026
jakość wypełnienia oferty:
70%

Szczegóły oferty



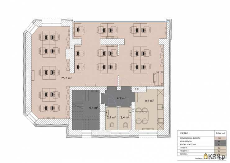
Butikowa przestrzeń biurowa w sercu Woli Justowskiej - jednej z najbardziej prestiżowych lokalizacji Krakowa. Kameralny, trzykondygnacyjny budynek o powierzchni 289 m˛ został zaprojektowany z myślą o firmach, które cenią wysoki standard pracy, prywatność oraz bliskość natury

WE SPEAK ENGLISH - PLEASE DO NOT HESITATE TO CONTACT US

Hamilton May przedstawia na sprzedaż kameralny budynek biurowy o powierzchni 289 m˛, położony w prestiżowej części Krakowa - na Woli Justowskiej. Lokalizacja łączy spokojne, zielone otoczenie z szybkim dostępem do centrum miasta, obwodnicy, autostrady oraz lotniska. W pobliżu znajdują się przystanki komunikacji miejskiej oraz stacja kolejowa.

Otoczona zielenią nieruchomość oferuje prywatny ogród o powierzchni ponad 7 arów, tworząc wyjątkowe warunki do pracy i spotkań w nieformalnej atmosferze. Duże przeszklenia od strony południowo-zachodniej zapewniają doskonałe doświetlenie wnętrz, a klimatyzacja w każdym pomieszczeniu gwarantuje komfort przez cały rok.

Nowoczesny, trzykondygnacujeny biurowiec, wykończony będzie w wysokim standardzie, z pełnym zapleczem biurowym, monitoringiem, systemem alarmowym, 8 miejscami postojowymi oraz rowerownią. Przestrzeń umożliwia komfortową pracę zespołu do 42 osób, z możliwością indywidualnej aranżacji i umeblowania zgodnie z projektem, z możliwością doposażenia w meble na indywidualnych warunkach.


Lokalizacja łączy prestiż i wygodę - szybki dojazd do centrum miasta, lotniska, obwodnicy oraz autostrady, a także dostęp do komunikacji miejskiej i kolei. To idealne miejsce dla firm, które chcą budować profesjonalny wizerunek w spokojnym, eleganckim otoczeniu.

Cena 3 100 000 PLN netto (+ 8 % VAT) do negocjacji
zawiera
miejsce parkingowe zewnętrzne,
zawiera komórkę lokatorską

Zapraszamy do kontaktu z naszym biurem.

Numer oferty: 22746

Niniejsze ogłoszenie ma charakter wyłącznie informacyjny i nie stanowi oferty handlowej w rozumieniu art. 66 §1 Kodeksu cywilnego.

Ogrzewanie: Gazowe

Kontakt do agenta:
Hamilton May Kraków
Zobacz kontakt12 346 34 25
Zobacz kontaktkrakow@hamiltonmay.com

Oceń ofertę


9.99


236 wydruk błąd schowek

Ostatnio przeglądane

 

 

 

pobieranie

Pobierz wzór umowy

Umowa przedwstępna sprzedaży

wybierz plik do pobrania
doc pdf

 

 

Deweloperzy

);