Prosimy, odblokuj wyświetlanie reklam w naszym serwisie, są one związane z rynkiem nieruchomości.
To dzięki nim masz darmowy dostęp do naszych treści.

Z pozdrowieniami zespół KRN.pl :)


telefon

wiadomość

mapa

Lokal użytkowy, Warszawa, Wola

Lokal użytkowy na wynajem Warszawa (woj. Mazowieckie), Wola

Lokalizacja:

Warszawa, Wola, ul.

Powierzchnia:

250.00 m2

Cena:

informacje w biurze sprzedaży

Dane szczegółowe

lokalizacja:
Mazowieckie, Warszawa, Wola
typ obiektu:
lokal użytkowy na wynajem
cena:
informacje w biurze sprzedaży
piętro:
2
powierzchnia:
250.00 m2
numer ogłoszenia:
17400/4651/OLW
data dodania:
14-05-2021
data modyfikacji:
14-05-2021
jakość wypełnienia oferty:
47%

Szczegóły oferty

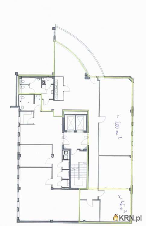
Leszno 14 to budynek biurowy klasy B usytuowany bezpośrednio przy jednej z głównych arterii komunikacyjnych. Lokalizacja zapewnia świetny dostęp do komunikacji miejskiej – w pieszej odległości znajdują się liczne przystanki autobusowe i tramwajowe. Dodatkowym atutem jest parking dostępny dla najemców.

Powierzchnia znajduje się na 2 piętrze w budynku. Biuro jest obecnie podzielone na większe pomieszczenia typu open space, jest możliwość podziału na mniejsze gabinety. Łazienki i kuchnia znajdują się na proponowanej powierzchni do indywidualnego użytku. Do biura przynależy taras ok 15 mkw. Koszt miejsca parkingowe 80 EUR/mc za 1 miejsce.



Dziękuję za zapoznanie się z propozycją i zapraszam do obejrzenia biura na żywo lub prezentację online.

Jeśli potrzebne będzie więcej szczegółów lub nie możesz znaleźć odpowiedniej propozycji wśród ofert na portalu, skontaktuj się ze mną. Wysłucham czego potrzebujesz i dopasuję powierzchnię na miarę potrzeb. Po więcej ofert wynajmu biur zapraszam również na naszą stronę internetową. To ogłoszenie jest kopią oryginalnej oferty, która znajduje się na naszej stronie internetowej Biuro Na Miarę.
---

Uprzejmie informujemy, że podane stawki są kwotami netto, do których należy doliczyć podatek VAT. W niektórych przypadkach powierzchni biurowych należy jeszcze doliczyć koszty eksploatacyjne oraz indywidualne koszty zużycia energii, a w przypadku budynków najwyższej klasy również uwzględnienie współczynników powierzchni wspólnych. Ogłoszenie nie jest ofertą w rozumieniu Kodeksu Cywilnego.

Oferta wysłana z programu dla biur nieruchomości - asariWEB



Kontakt:
Numer telefonu: Zobacz kontakt536 093 108
Adres email: Zobacz kontaktkatarzyna@biuronamiare.pl
Numer licencji pośrednika:

Oceń ofertę


9.99


1004 wydruk błąd schowek

Ostatnio przeglądane

 

 

 

pobieranie

Pobierz wzór umowy

Umowa przedwstępna najmu

wybierz plik do pobrania
doc pdf

 

 

Deweloperzy

);