Prosimy, odblokuj wyświetlanie reklam w naszym serwisie, są one związane z rynkiem nieruchomości.
To dzięki nim masz darmowy dostęp do naszych treści.

Z pozdrowieniami zespół KRN.pl :)


telefon

wiadomość

mapa

Lokal użytkowy, Kraków, Łagiewniki/Borek Fałęcki

Lokal użytkowy na wynajem Kraków (woj. Małopolskie), Łagiewniki/Borek Fałęcki

Lokalizacja:

Kraków, Łagiewniki/Borek Fałęcki, ul.

Powierzchnia:

240.00 m2

Cena:

9 200 zł

Dane szczegółowe

lokalizacja:
Małopolskie, Kraków, Łagiewniki/Borek Fałęcki
typ obiektu:
lokal użytkowy na wynajem
cena:
9 200 zł
powierzchnia:
240.00 m2
numer ogłoszenia:
LMN-BW-313653
data dodania:
12-02-2026
data modyfikacji:
12-02-2026
jakość wypełnienia oferty:
58%

Szczegóły oferty


Do wynajęcia - budynek biurowy przy
ul. Zakopiańskiej
w Krakowie
Do wynajęcia funkcjonalny, trzykondygnacyjny budynek biurowy zlokalizowany przy ul. Zakopiańskiej w Krakowie - jednej z głównych, ruchliwych arterii miasta, gwarantującej doskonałą widoczność, stały przepływ klientów oraz świetną ekspozycję dla działalności biznesowej.
Nieruchomość idealnie sprawdzi się jako siedziba firmy, biuro, placówka usługowa, szkoleniowa lub handlowa.
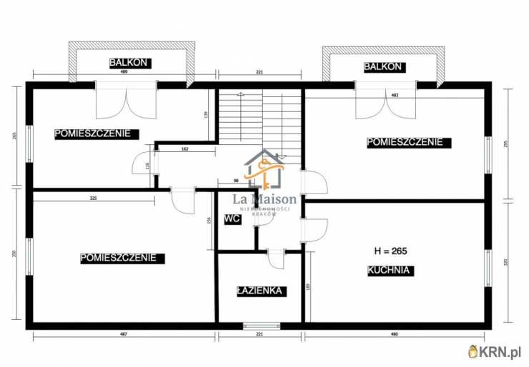
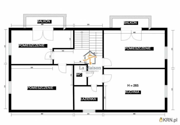
Układ i funkcjonalność budynku:

•
Parter: reprezentacyjna recepcja, pomieszczenie biurowe oraz zaplecze socjalne

•
I piętro: cztery pomieszczenia biurowe oraz toalety

•
II piętro: dwa pomieszczenia biurowe oraz toaleta
Budynek jest podpiwniczony - w piwnicy znajduje się kotłownia oraz dodatkowe pomieszczenia magazynowe, zwiększające funkcjonalność obiektu.
Standard i media:

•
budynek wyposażony we wszystkie media

•
ogrzewanie indywidualne - gazowe

•
budynek wolnostojący
Dodatkowe atuty:

•
min. 5 miejsc parkingowych na terenie nieruchomości

•
bardzo dobra komunikacja z centrum Krakowa oraz południową częścią miasta

•
szybki dojazd do obwodnicy i głównych tras wylotowych

•
lokalizacja przy ulicy o wysokim natężeniu ruchu - idealna dla firm stawiających na rozpoznawalność i dostępność.
Czynsz najmu - 9200,00 zł netto/miesiąc
Zapraszam do kontaktu.
Magdalena Kempkowska
La Maison Nieruchomości
tel. Zobacz kontakt512-532-892
e-mail: Zobacz kontaktmagda@lamaison.net.pl
Prezentacja nieruchomości bezpłatna, po uprzednim podpisaniu umowy pośrednictwa.
Zapraszam do współpracy również inne biura nieruchomości.
::DODATKOWE INFORMACJE
Kategoria oferty: Pewny Partner Prąd: jest Gaz: jest Woda: jest Dojazd: asfalt Otoczenie: działki zabudowane Ogrzewanie: C.O. GAZOWE Kanalizacja: tak Linie telefoniczne: TAK Komunikacja publ.: autobus Winda: NIE Klimatyzacja: TAK Klimatyzacja opis: Klimatyzatory w każdym pokoju biurowym. Recepcja: TAK Sieć komputerowa: TAK Wysokość kondygnacji [m]: 2.68 Typ powierzchni opis: Biurowa Możliwość parkowania: tak Naziemn. miejsc parking.: 5 Liczba wejść: 1 Podłogi: płytki Położenie obiektu: blisko centrum Teren ogrodzony: TAK Sala konferencyjna: TAK Pow. całk. budynku [m2]: 300 Pow. całk. biurowa [m2]: 240 Opłaty wg liczników: woda, prąd, gaz, CO Rok budowy: 1960 Ostatnia modernizacja: 2025 Liczba kondyg. biurowych: 3 Liczba pomieszczeń biurowych: 7 Liczba pomieszczeń magazynowych: 1 Liczba pomieszczeń socjalnych: 1 Liczba pomieszczeń sanitarnych: 3 Typ kaucji: dwumiesięczna
::LINK DO STRONY
https://virgo.galapp.net/Moduly/Virgo/virOfertaDrukuj.aspx?numid=6986013&id=958B8B43AE
::KONTAKT DO AGENTA
Magdalena Kempkowska + Zobacz kontakt48 512 532 892 + Zobacz kontakt48 512 532 892 Zobacz kontaktmagda@lamaison.net.pl
::DANE BIURA
La Maison Nieruchomości ul. Kołowa 5/3 30-134 Kraków + Zobacz kontakt48 512532892
Pośrednik odpowiedzialny zawodowo za wykonanie umowy pośrednictwa: Magdalena Kempkowska (licencja nr: 11849)

Ogrzewanie: Gazowe

Kontakt do agenta:
Magdalena Kempkowska
Zobacz kontaktmagda@lamaison.net.pl
+ Zobacz kontakt48 512 532 892
+ Zobacz kontakt48 512 532 892

Oceń ofertę


9.99


168 wydruk błąd schowek

Ostatnio przeglądane

 

 

 

pobieranie

Pobierz wzór umowy

Umowa przedwstępna najmu

wybierz plik do pobrania
doc pdf

 

 

Deweloperzy

);