Prosimy, odblokuj wyświetlanie reklam w naszym serwisie, są one związane z rynkiem nieruchomości.
To dzięki nim masz darmowy dostęp do naszych treści.

Z pozdrowieniami zespół KRN.pl :)


telefon

wiadomość

mapa

Lokal użytkowy, Skawina

Lokal użytkowy na sprzedaż Skawina (woj. Małopolskie)

Lokalizacja:

Skawina, , ul.

Powierzchnia:

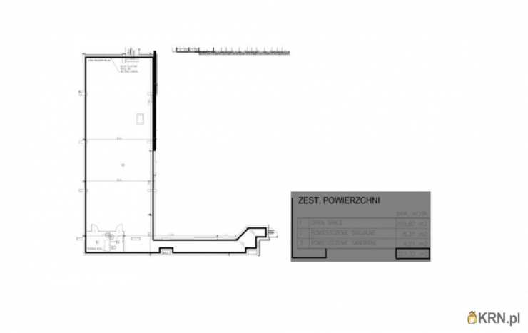
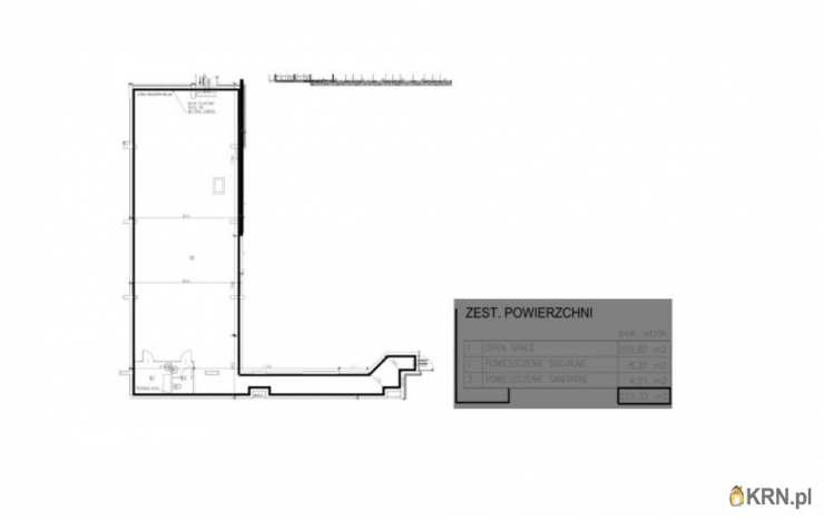
222.32 m2

Cena:

1 667 400 zł

Dane szczegółowe

lokalizacja:
Małopolskie, Skawina
typ obiektu:
lokal użytkowy na sprzedaż
cena:
1 667 400 zł
pokoi:
3
piętro:
parter
ilość pięter w budynku:
4
powierzchnia:
222.32 m2
numer ogłoszenia:
BS2-LS-308669-21
data dodania:
24-04-2026
data modyfikacji:
24-04-2026
jakość wypełnienia oferty:
64%

Szczegóły oferty


Na sprzedaż - lokale usługowe w nowoczesnym apartamentowcu na granicy Krakowa i Skawiny
Biuro Nieruchomości
Bracia Sadurscy
prezentuje ofertę sprzedaży trzech atrakcyjnych lokali usługowych o powierzchniach:
293 m² ,
223 m²
oraz
150 m² , zlokalizowanych w nowo powstałym apartamentowcu przy granicy
Krakowa i Skawiny .
Lokalizacja
Inwestycja znajduje się w doskonałym punkcie komunikacyjnym - zaledwie 1,8 km od dwóch przystanków nowej linii
Szybkiej Kolei Aglomeracyjnej , a także w pobliżu
3 linii autobusowych . W bezpośrednim sąsiedztwie znajdują się:

rozległe osiedle domków jednorodzinnych,

gęsto zaludniona okolica - ok.
1300 osób/km²
w promieniu 1-1,3 km,

65 apartamentów mieszkalnych w tym samym budynku.

O budynku i lokalach

Lokale usługowe znajdują się na
parterze budynku mieszkalnego , zapewniając świetną widoczność i dostępność.

Przystosowane do potrzeb
osób niepełnosprawnych .

39 ogólnodostępnych miejsc postojowych
dla klientów.

Nowoczesne rozwiązania technologiczne : pompy ciepła oraz instalacja fotowoltaiczna.

Każdy lokal będzie posiadał
możliwość oznakowania oraz montażu kasetonów reklamowych .

Idealne miejsce dla: sklepów, gabinetów, salonów urody, biur lub innych działalności usługowych.

Zapraszam do kontaktu i na prezentację:

Arkadiusz Zemła
Doradca ds. Nieruchomości
Zobacz kontakt518 706 552
Zobacz kontaktarek@sadurscy.pl
For Sale - Commercial Units in a Modern Residential Building on the Border of Kraków and Skawina

Bracia Sadurscy Real Estate Agency
presents an exclusive offer for the sale of
three attractive commercial units
with the following floor areas:
293 m² ,
223 m² , and
150 m² , located in a newly constructed apartment building right on the border of
Kraków and Skawina .
Location
This investment enjoys an excellent location with great transport accessibility:

Only
1.8 km
from two stations of the newly launched
Agglomeration Fast Rail line ,

Close to
three bus lines ,

In the immediate vicinity of:

A large residential estate of single-family houses,

A densely populated area - approx.
1300 residents/km²
within a 1-1.3 km radius,

65 residential apartments
within the same building.
About the Building and Units

The commercial units are located on the
ground floor
of the residential building, ensuring excellent visibility and accessibility.

Fully adapted
to the needs of people with disabilities.

39 public parking spaces
available for customers.

Equipped with
modern technologies : heat pumps and photovoltaic installation.

Each unit includes the possibility of
external signage and advertising light boxes .

An ideal location for:
shops, clinics, beauty salons, offices , or other service-oriented businesses.

Feel free to contact me for more details and to arrange a viewing:

Arkadiusz Zemła
Real Estate Advisor
+ Zobacz kontakt48 518 706 552
Zobacz kontaktarek@sadurscy.pl

::DODATKOWE INFORMACJE
Rodzaj budynku: budynek wielorodzinny Dozór budynku: monitoring Gaz: brak Woda: zimna Dojazd: asfalt Otoczenie: działki zabudowane Ogrzewanie: centralne Internet: TAK Komunikacja publ.: autobus miejski Winda: TAK Liczba wind: 2 Usytuowanie: jednostronne Przystosowania dla niepełnosprawnych: TAK Klimatyzacja: TAK Sieć komputerowa: TAK Możliwość parkowania: tak Naziemn. miejsc parking.: 39 Położenie lokalu: ciąg komunikacyjny Witryna wystawowa: jest Wejście: od ulicy Liczba wejść: 2 Podłogi: wylewka Opłaty w czynszu: Winda, monitoring, fundusz remontowy, Części wspólne, administracja Opłaty wg liczników: woda, prąd Stan lokalu: wykończony Okna: PCV 3 komorowe Instalacje: ELEKTRYCZNA Powierzchnia użytkowa [m2]: 293 Rok budowy: 2023 Rodzaj lokalu: jednopoziomowy Przeznaczenie lokalu: handlowo-usługowy Pow. zaplecza [m2]: 1 Rozkład pow.: do własnej aranżacji
Pow. ekspoz. handlowej [m2]: 1 Liczba pokoi: 2 Wysokość pomieszczeń [m]: 3 Liczba pomieszczeń biurowych: 1 Liczba pomieszczeń magazynowych: 1 Liczba pomieszczeń socjalnych: 1 Liczba pomieszczeń sanitarnych: 1
::LINK DO STRONY
https://sadurscy.pl/offer/BS2-LS-308669
::KONTAKT DO AGENTA
Arkadiusz Zemła + Zobacz kontakt48 518-706-552 Zobacz kontaktarek@sadurscy.pl
::DANE BIURA
Oddział BS2, Rynek Pierwotny Przewóz
47 30-081 Kraków Zobacz kontakt12 630-90-45
--------------------------
::GRATIS | Nasza prowizja zawiera: koszt przedwstępnej notarialnej umowy sprzedaży nieruchomości z rynku wtórnego. ::GWARANCJA | Gwarancja zwrotu zadatku. Więcej informacji na sadurscy.pl/zwrot-zadatku/

Ogrzewanie: CENTRALNE

Kontakt do agenta:
Arkadiusz Zemła
Zobacz kontaktarek@sadurscy.pl
+ Zobacz kontakt48 518-706-552

Oceń ofertę


0


26 wydruk błąd schowek

Ostatnio przeglądane

 

 

 

pobieranie

Pobierz wzór umowy

Umowa przedwstępna sprzedaży

wybierz plik do pobrania
doc pdf

 

 

Deweloperzy

);