Prosimy, odblokuj wyświetlanie reklam w naszym serwisie, są one związane z rynkiem nieruchomości.
To dzięki nim masz darmowy dostęp do naszych treści.

Z pozdrowieniami zespół KRN.pl :)


telefon

wiadomość

mapa

Lokal użytkowy, Gdynia, Śródmieście

Lokal użytkowy na wynajem Gdynia (woj. Pomorskie), Śródmieście

Lokalizacja:

Gdynia, Śródmieście, ul.

Powierzchnia:

207.11 m2

Cena:

14 000 zł

Dane szczegółowe

lokalizacja:
Pomorskie, Gdynia, Śródmieście
typ obiektu:
lokal użytkowy na wynajem
cena:
14 000 zł
piętro:
parter
ilość pięter w budynku:
4
powierzchnia:
207.11 m2
numer ogłoszenia:
DJ800910
data dodania:
08-03-2026
data modyfikacji:
16-03-2026
jakość wypełnienia oferty:
64%

Szczegóły oferty

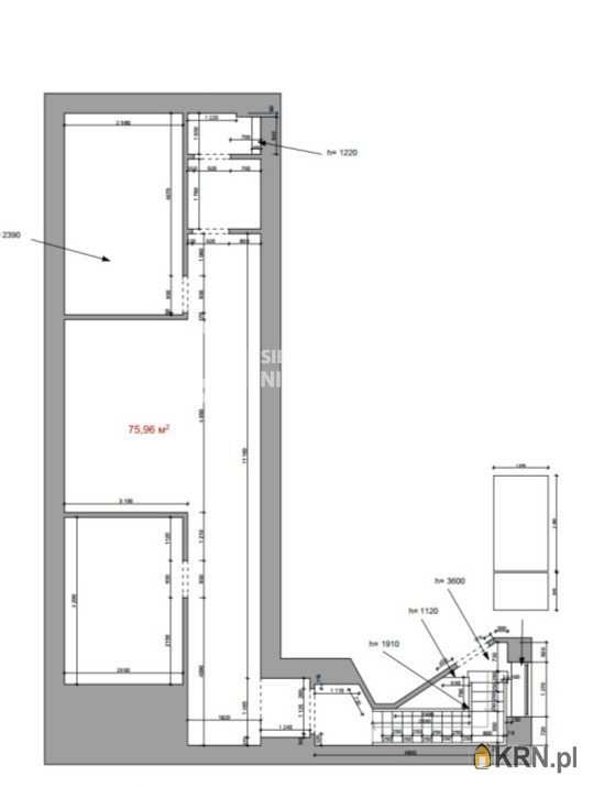
Takich ofert nie ma wiele !Znakomicie zlokalizowany lokal na parterze z witryną od głównej ulicy Świętojańskiej w Śródmieściu Gdyni o powierzchni 207,11m2.Wejście do lokalu z dwóch stron, od ulicy głównej i od klatki schodowej.Znajduję się ww zabytkowej dobrze utrzymanej kamienicy z 1931r.Lokal znajduję się tuż przy przystanku autobusowym, co generuje bardzo duży ruch pieszych.Lokal jest dwupoziomowy.Poziom pierwszy składa się z dwóch sali głównych, toalety.Poziom drugi składa się z sali głównej, szatni, biura, toalety.Ekspozycja okienna: południowy-zachód, północny-wschód.Lokal jest po remoncie.Posiada zabezpieczenia:alarm, monitoring. Ogrzewanie miejskie.Opłaty tylko licznikowe.Miejsca parkingowe na zamkniętym terenie kamienicy, od podwórka.Istnieje możliwość wynajmu garażu.Idealna lokalizacja!Samo serce Gdyni.Ogromny ruch pieszo-motoryzacyjny.W pobliżu pełna infrastruktura handlowo-usługowa.Bliskość komunikacji.Kilka minut pieszo do morza i lasu.Istnieje możliwość przejęcia gotowego biznesu, szkoły tańca i kawiarni.Istnieje także możliwość wynajmu części lokalu w cenie 8000 PLN/mc.Zapraszam !

Oceń ofertę


9.99


173 wydruk błąd schowek

Ostatnio przeglądane

 

 

 

pobieranie

Pobierz wzór umowy

Umowa przedwstępna najmu

wybierz plik do pobrania
doc pdf

 

 

Deweloperzy

);