Prosimy, odblokuj wyświetlanie reklam w naszym serwisie, są one związane z rynkiem nieruchomości.
To dzięki nim masz darmowy dostęp do naszych treści.

Z pozdrowieniami zespół KRN.pl :)


telefon

wiadomość

mapa

Lokal użytkowy, Chorzów, Chorzów Batory

Lokal użytkowy na wynajem Chorzów (woj. Śląskie), Chorzów Batory

Lokalizacja:

Chorzów, Chorzów Batory, ul.

Powierzchnia:

175.00 m2

Cena:

7 088 zł

Dane szczegółowe

lokalizacja:
Śląskie, Chorzów, Chorzów Batory
typ obiektu:
lokal użytkowy na wynajem
cena:
7 088 zł
piętro:
1
ilość pięter w budynku:
1
powierzchnia:
175.00 m2
numer ogłoszenia:
DMP-LW-7318
data dodania:
19-06-2021
data modyfikacji:
28-10-2023
jakość wypełnienia oferty:
58%

Szczegóły oferty


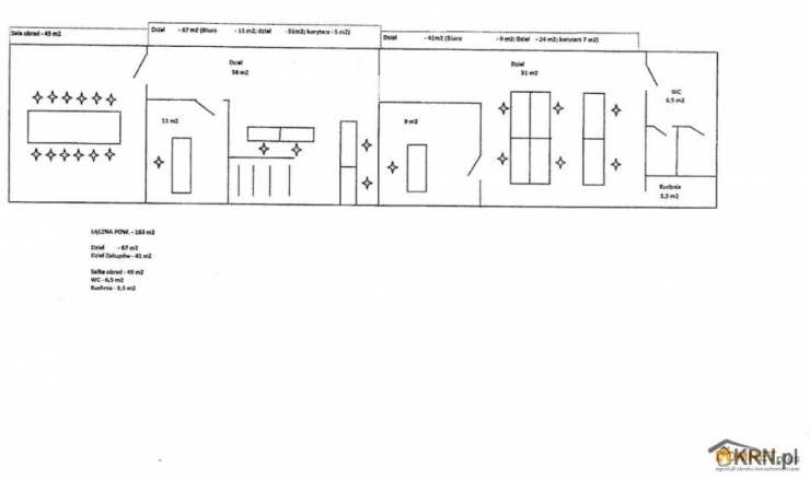
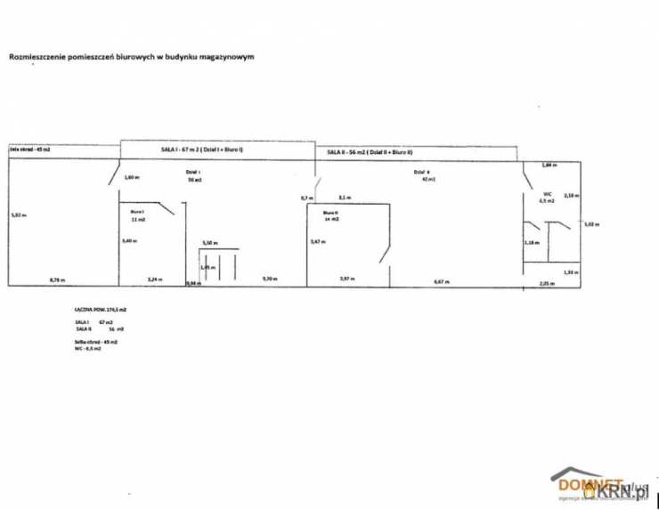
Do wynajęcia proponujemy pomieszczenia biurowe w budynku magazynowym o łącznej pow. 175 m2 w Chorzowie Batorym.
Pomieszczenie składa się z sali głównej
o pow 67m2, II sala ma pow. 56 m2, sala obrad ma 45 m2 oraz sanitariat
z pomieszczeniem socjalnym o pow. 6,5 m2.
Cena najmu: 40,50 zł netto/m2
Agent prowadzący:
Artur Bednarek, tel. Zobacz kontakt502 359 960

Pośrednik odpowiedzialny zawodowo za wykonanie umowy pośrednictwa: Jacek Adamus (licencja nr: 5815)
--------------------------
Powyższe informacje nie stanowią oferty w rozumieniu przepisów Kodeksu Cywilnego. Pełna oferta: www.domnetplus.pl A.O.N. Domnet Plus Katowice ul. Klimczoka 9. Agent odpowiedzialny zawodowo: Jacek Adamus nr lic.: 5815
SPECJALNA OFERTA KREDYTOWA DLA NASZYCH KLIENTÓW !!!
Oferta wysłana z systemu BCK Galactica
Ogrzewanie: WLASNE DLA BUDYNKU

Kontakt do agenta:
Renata Sudoł
Zobacz kontaktbiuro@domnetplus.pl
Zobacz kontakt791 550 352

Oceń ofertę


9.99


1349 wydruk błąd schowek

Ostatnio przeglądane

 

 

 

pobieranie

Pobierz wzór umowy

Umowa przedwstępna najmu

wybierz plik do pobrania
doc pdf

 

 

Deweloperzy

);