Prosimy, odblokuj wyświetlanie reklam w naszym serwisie, są one związane z rynkiem nieruchomości.
To dzięki nim masz darmowy dostęp do naszych treści.

Z pozdrowieniami zespół KRN.pl :)


telefon

wiadomość

mapa

Lokal użytkowy, Kraków, Dębniki/Zakrzówek, ul. J. Brożka

Lokal użytkowy na wynajem Kraków (woj. Małopolskie), Dębniki/Zakrzówek, ul. J. Brożka

Lokalizacja:

Kraków, Dębniki/Zakrzówek, ul. J. Brożka

Powierzchnia:

168.72 m2

Cena:

11 641 zł

Dane szczegółowe

lokalizacja:
Małopolskie, Kraków, Dębniki/Zakrzówek, ul. J. Brożka
typ obiektu:
lokal użytkowy na wynajem
cena:
11 641 zł
pokoi:
5
piętro:
1
ilość pięter w budynku:
4
powierzchnia:
168.72 m2
numer ogłoszenia:
BS2-LW-306205-19
data dodania:
23-01-2026
data modyfikacji:
23-01-2026
jakość wypełnienia oferty:
76%

Szczegóły oferty


Oferujemy wynajem nowoczesnej powierzchni biurowej w prestiżowym biurowcu przy ulicy Kapelanka

W doskonale skomunikowanej lokalizacji. Dostępne różne metraże - idealna opcja dla firm poszukujących funkcjonalnej przestrzeni biurowej.

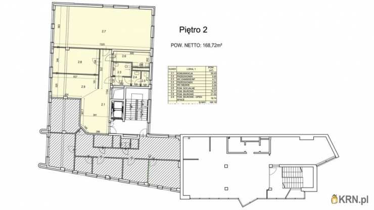
Lokal o powierzchni 168 m² składa się z 5 przestronnych pomieszczeń biurowych, kuchni oraz toalety. Powierzchnia biur waha się od 28 m² do 38 m², co daje dużą elastyczność w aranżacji przestrzeni. Istnieje również możliwość wynajęcia dodatkowych powierzchni w budynku.
Standard wykończenia:

Ściany pomalowane, gotowe do aranżacji.
Sufity podwieszane.
Podłogi wykończone wykładziną dywanową.
Łazienki wykończone płytkami, z nowoczesną ceramiką.
Drzwi wewnętrzne aluminiowe.
System klimatyzacji oraz wentylacji nawiewno-wywiewnej, zapewniający komfort przez cały rok.
Ogrzewanie z sieci miejskiej (MPEC).
Nowoczesne oświetlenie.
Winda, monitoring oraz całodobowa ochrona, co zapewnia bezpieczeństwo i komfort pracy.
Recepcja.

Dodatkowe atuty:
Biurowiec zlokalizowany jest w pobliżu przystanku tramwajowego (linie 18, 22, 52), co zapewnia szybki dostęp do komunikacji miejskiej - wygodne zarówno dla pracowników, jak i gości.
Warunki wynajmu:

Kwota wynajmu: 69 zł/m² netto + VAT.
Koszty eksploatacyjne: 18,95 zł/m² + VAT.
Opłaty za CO, wodę/ścieki, energię elektryczną według zużycia.
Możliwość wynajmu miejsc postojowych w cenie 320 zł + VAT za miejsce.

Jest to doskonała oferta dla firm poszukujących przestronnych i nowoczesnych biur w dogodnej lokalizacji, z dostępem do pełnej infrastruktury biurowej i transportowej. Serdecznie zapraszamy do kontaktu oraz oględzin lokalu!
Zapraszam do kontaktu w celu umówienia się na prezentację lokalu!
Dariusz Zieliński
Zobacz kontakt503-112-787
::DODATKOWE INFORMACJE
Rodzaj budynku: biurowiec Dozór budynku: monitoring Dojazd: asfalt Otoczenie: działki zabudowane Ogrzewanie: C.O. miejskie Linie telefoniczne: TAK Alarm: TAK Internet: TAK Komunikacja publ.: MPK, autobus miejski, tramwaj, autobus Winda: TAK Liczba wind: 1 Usytuowanie: narożne Przystosowania dla niepełnosprawnych: TAK Klimatyzacja: TAK Sieć komputerowa: TAK Możliwość parkowania: płatne Własny parking: TAK Witryna wystawowa: od ulicy Wejście: od ulicy Liczba wejść: 1 Min. okres naj. (mies.): 12 Opłaty w czynszu: fundusz remontowy, Części wspólne, administracja Opł. ekspl. /m2: 18,95 Stan lokalu: bardzo dobry Okna: aluminiowe Instalacje: dobre Powierzchnia użytkowa [m2]: 168 Rok budowy: 2010 Rodzaj lokalu: jednopoziomowy Przeznaczenie lokalu: usługowy, inny, handlowy, handlowo-usługowy, biurowy, biurowo - magazynowy Liczba pokoi: 5 Liczba kondyg. biurowych: 5 Typ kaucji: do uzgodnienia
::LINK DO STRONY
https://sadurscy.pl/offer/BS2-LW-306205
::KONTAKT DO AGENTA
Dariusz Zieliński + Zobacz kontakt48 503-112-787 Zobacz kontaktdarek.zielinski@sadurscy.pl
::DANE BIURA
Oddział BS2, Rynek Pierwotny Przewóz
47 30-081 Kraków Zobacz kontakt12 630-90-45
Pośrednik odpowiedzialny zawodowo za wykonanie umowy pośrednictwa: Dariusz Sadurski (licencja nr: 803)
--------------------------
::GRATIS | Nasza prowizja zawiera: koszt przedwstępnej notarialnej umowy sprzedaży nieruchomości z rynku wtórnego. ::GWARANCJA | Gwarancja zwrotu zadatku. Więcej informacji na sadurscy.pl/zwrot-zadatku/

Ogrzewanie: Miejskie

Kontakt do agenta:
Dariusz Zieliński
Zobacz kontaktdarek.zielinski@sadurscy.pl
+ Zobacz kontakt48 503-112-787

Oceń ofertę


0


49 wydruk błąd schowek

Ostatnio przeglądane

 

 

 

pobieranie

Pobierz wzór umowy

Umowa przedwstępna najmu

wybierz plik do pobrania
doc pdf

 

 

Deweloperzy

);