Prosimy, odblokuj wyświetlanie reklam w naszym serwisie, są one związane z rynkiem nieruchomości.
To dzięki nim masz darmowy dostęp do naszych treści.

Z pozdrowieniami zespół KRN.pl :)


telefon

wiadomość

mapa

Lokal użytkowy, Sopot

Lokal użytkowy na wynajem Sopot (woj. Pomorskie)

Lokalizacja:

Sopot, , ul.

Powierzchnia:

152.00 m2

Cena:

8 360 zł

Dane szczegółowe

lokalizacja:
Pomorskie, Sopot
typ obiektu:
lokal użytkowy na wynajem
cena:
8 360 zł
piętro:
2
ilość pięter w budynku:
3
powierzchnia:
152.00 m2
numer ogłoszenia:
DJ236662
data dodania:
27-06-2022
data modyfikacji:
16-03-2026
jakość wypełnienia oferty:
64%

Szczegóły oferty

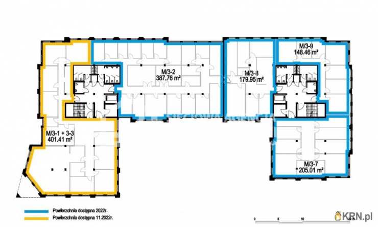
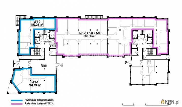
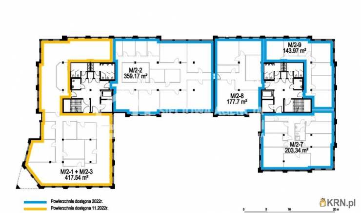
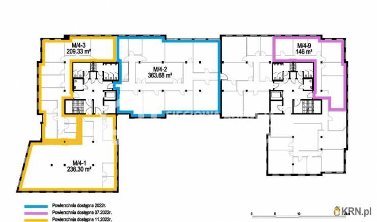
Wykończone biura, gotowe do wejścia najemcy - z możliwością indywidualnej adaptacji w Sopocie.Biura o łącznej powierzchni 2500m2 w zadbanym budynku z 2005r.Teren jest wygrodzony, wjazd kontrolowany (szlaban) z monitoringiem z całodobowym nadzorem.Budynek ma do zaoferowania wyposażoną recepcję z lobby oraz windy. Kontrola dostępu.Części wspólne(komunikacja, sanitariaty) są wykończone.Część gabinetowa na 3 piętrze została wyposażona.Do biur przynależą: balkony, miejsca postojowe podziemne i naziemne (300zł /150 zł) i pomieszczenia magazynowe.Istnieje możliwośćpodnajmu!DOSKONAŁA LOKALIZACJA!Jedna z NAJLEPIEJ SKOMUNIKOWANEJ części miasta.Bliskość środków komunikacji miejskiej: trolejbusów, autobusów i SKM oraz sąsiedztwo głównej arterii komunikacyjnej.Usytuowanie firm w tak doskonałej lokalizacji, podkreśli ich ASPIRACJĘ i WYSOKĄ POZYCJĘ RYNKOWĄ.Czynsz najmu powierzchni biurowej:60 zł/m2Koszty eksploatacyjne (obsługa i utrzymanie techniczne budynku, sprzątanie części wspólnych, ochrona, serwisy): 15zł/m2Opłaty za media: opłata za zużycie energii elektrycznej w powierzchni wg indywidualnego licznika, opłata za zużycie wody, ogrzewania, wywóz śmieci - proporcjonalnie do wynajętej powierzchniOgrzewanie gazowe.Gotowe, wykończone biura do wejścia najemcy w Sopocie o powierzchni od 140m2 do 420m2.Budynek biurowy do wynajęcia z możliwością indywidualnej adaptacji.Istnieje możliwość podnajmu.Światłowód doprowadzony do budynku.Podłoga techniczna.Instalacja wentylacyjna z modułem chłodzącym.Możliwość podłączenia instalacji teletechnicznej od 4 operatorów.Okna otwieralno-uchylne.Do budynku przynależą miejsca postojowe naziemne i podziemne (150 zł/300 zł)Ponadto budynek ma do zaoferowania całodobowy nadzór (w tym monitoring) terenu wygrodzonego z kontrolowanym wjazdem (szlaban), a także wyposażenie w kontrolę dostępu.W budynku znajdują się także windy.Części wspólne (komunikacja, sanitariaty) są wykończone.DOSKONAŁA LOKALIZACJA!Jedna z NAJLEPIEJ SKOMUNIKOWANEJ części miasta.Bliskość środków komunikacji miejskiej: trolejbusów, autobusów i SKM oraz sąsiedztwo głównej arterii komunikacyjnej.Usytuowanie firm w tak doskonałej lokalizacji, podkreśli ich ASPIRACJĘ i WYSOKĄ POZYCJĘ RYNKOWĄ.Czynsz najmu powierzchni biurowej: 55zł/m2.Koszty eksploatacyjne (obsługa i utrzymanie techniczne budynku, sprzątanie części wspólnych, ochrona, serwisy.Opłaty za media): 20zł/m2.Opłata za zużycie energii elektrycznej w powierzchni wg indywidualnego licznika.Opłata za zużycie wody, ogrzewania, wywóz śmieci - proporcjonalnie do wynajętej powierzchni.Podane ceny są cenami netto.DOSTĘPNE SĄ RÓWNIEŻ INNE LOKALE W CENIE 55-60ZŁ/m2 O NASTĘPUJĄCYCH WIELKOŚCIACH:- 250 m2;- 530 m2;- 2500 m2;- od 120 do 280 m2.ZAPRASZAM SERDECZNIE!

Oceń ofertę


3.4


1013 wydruk błąd schowek

Ostatnio przeglądane

 

 

 

pobieranie

Pobierz wzór umowy

Umowa przedwstępna najmu

wybierz plik do pobrania
doc pdf

 

 

Deweloperzy

);