Prosimy, odblokuj wyświetlanie reklam w naszym serwisie, są one związane z rynkiem nieruchomości.
To dzięki nim masz darmowy dostęp do naszych treści.

Z pozdrowieniami zespół KRN.pl :)


telefon

wiadomość

mapa

Lokal użytkowy, Kraków, Dębniki/Ruczaj, ul. Kobierzyńska

Lokal użytkowy na sprzedaż Kraków (woj. Małopolskie), Dębniki/Ruczaj, ul. Kobierzyńska

Lokalizacja:

Kraków, Dębniki/Ruczaj, ul. Kobierzyńska

Powierzchnia:

119.23 m2

Cena:

1 371 145 zł

Dane szczegółowe

lokalizacja:
Małopolskie, Kraków, Dębniki/Ruczaj, ul. Kobierzyńska
typ obiektu:
lokal użytkowy na sprzedaż
cena:
1 371 145 zł
pokoi:
1
piętro:
parter
powierzchnia:
119.23 m2
numer ogłoszenia:
BS2-LS-313935-1
data dodania:
20-02-2026
data modyfikacji:
20-02-2026
jakość wypełnienia oferty:
64%

Szczegóły oferty


LOKALE UZYTKOWE NA SPRZEDAŻ - DĘBNIKI, RUCZAJ - ceny netto

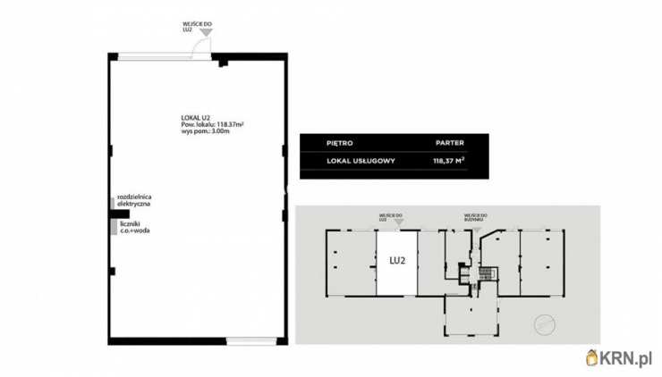
Oferujemy do sprzedaży lokale o powierzchni od 88 do 119 m2. Lokale położone są w nowym budynku, oddanym w 2025 r.

Lokale położone na parterze,
z witryną i miejscem postojowym. Stan deweloperski do własnej aranżacji.
Ogrzewanie i ciepła woda z sieci miejskiej, instalacja wentylacji mechanicznej.
Dogodna lokalizacja -
wokół bogate zaplecze placówek publicznych, naukowych, handlowych i rekreacyjnych. W sąsiedztwie żłobek, przedszkola, basen, stadnina koni, apteka, bankomat, sklepy, poczta, pasaż handlowy. Dogodna komunikacja - liczne linie autobusowe i tramwaj.

Zapraszam do kontaktu:
Marek Popiela + Zobacz kontakt48 518 967 677
Zobacz kontaktmarek@sadurscy.pl
::DODATKOWE INFORMACJE
Kategoria oferty: Mieszkania dla rodzin z dziećmi Rodzaj budynku: biurowo-usługowy Dozór budynku: możliwy Gaz: brak Woda: ciepła - miejska Dojazd: asfalt Ogrzewanie: centralne Alarm: TAK Internet: TAK Winda: TAK Usytuowanie: jednostronne Drzwi antywłamaniowe: TAK Wejście: od ulicy Liczba wejść: 1 Teren ogrodzony: TAK Stan lokalu: deweloperski Instalacje: nowe Powierzchnia użytkowa [m2]: 119,2300 Rok budowy: 2025 Rodzaj lokalu: jednopoziomowy Przeznaczenie lokalu: usługowy Liczba pokoi: 1
::LINK DO STRONY
https://sadurscy.pl/offer/BS2-LS-313935
::KONTAKT DO AGENTA
Marek Popiela + Zobacz kontakt48 518-967-677 Zobacz kontaktmarek@sadurscy.pl
::DANE BIURA
Oddział BS2, Rynek Pierwotny Przewóz
47 30-081 Kraków Zobacz kontakt12 630-90-45
--------------------------
::GRATIS | Nasza prowizja zawiera: koszt przedwstępnej notarialnej umowy sprzedaży nieruchomości z rynku wtórnego. ::GWARANCJA | Gwarancja zwrotu zadatku. Więcej informacji na sadurscy.pl/zwrot-zadatku/

Ogrzewanie: CENTRALNE

Kontakt do agenta:
Marek Popiela
Zobacz kontaktmarek@sadurscy.pl
+ Zobacz kontakt48 518-967-677

Oceń ofertę


0


37 wydruk błąd schowek

Ostatnio przeglądane

 

 

 

pobieranie

Pobierz wzór umowy

Umowa przedwstępna sprzedaży

wybierz plik do pobrania
doc pdf

 

 

Deweloperzy

);