Prosimy, odblokuj wyświetlanie reklam w naszym serwisie, są one związane z rynkiem nieruchomości.
To dzięki nim masz darmowy dostęp do naszych treści.

Z pozdrowieniami zespół KRN.pl :)


telefon

wiadomość

mapa

Lokal użytkowy, Kraków, Grzegórzki/Dąbie, ul. Dąbska

Lokal użytkowy na wynajem Kraków (woj. Małopolskie), Grzegórzki/Dąbie, ul. Dąbska

Lokalizacja:

Kraków, Grzegórzki/Dąbie, ul. Dąbska

Powierzchnia:

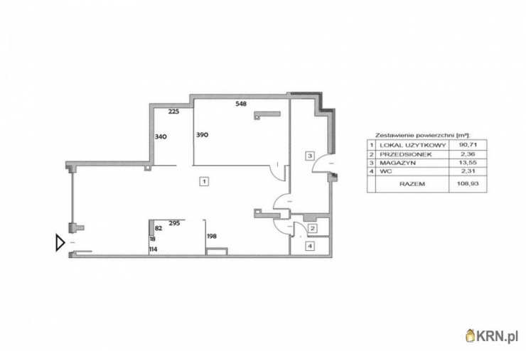
108.93 m2

Cena:

8 700 zł

Dane szczegółowe

lokalizacja:
Małopolskie, Kraków, Grzegórzki/Dąbie, ul. Dąbska
typ obiektu:
lokal użytkowy na wynajem
cena:
8 700 zł
piętro:
parter
powierzchnia:
108.93 m2
numer ogłoszenia:
DNX-LW-30041-3
data dodania:
17-12-2025
data modyfikacji:
07-01-2026
jakość wypełnienia oferty:
52%

Szczegóły oferty


Nowoczesny lokal 108,93 m² na wynajem - parter, wejście z ulicy, Dąbska / Grzegórzki - Kraków
Do wynajęcia przestronny i funkcjonalny lokal użytkowy o powierzchni
108,93 m² , położony na
parterze nowoczesnego budynku mieszkalno-usługowego
z bezpośrednim wejściem od ulicy. Nieruchomość zlokalizowana jest na prężnie rozwijającym się osiedlu
Dąbska
w dzielnicy
Grzegórzki , w pobliżu
Tauron Areny .
Lokal idealny pod działalność
biurową, usługową lub handlową .

Uwaga:
właściciel nie wyraża zgody na wynajem lokalu pod działalności: fryzjerskie, manicure, kuchnię włoską ani kuchnię polską.

Najważniejsze atuty:
Nowoczesne rozwiązania techniczne:
•
Rekuperacja
•
Wentylacja mechaniczna
•
Instalacja pod klimatyzację

Dwa niezależne wejścia
- od frontu (ulica) oraz od zaplecza (np. dostawy)
Duże witryny
- doskonała widoczność i ekspozycja
Lokal w stanie do adaptacji - możliwość dostosowania przestrzeni do potrzeb najemcy
Koszty:
•
Czynsz najmu:
8 700 zł netto + 23% VAT
•
Kaucja:
2-miesięczny czynsz
•
Czynsz administracyjny (w tym ogrzewanie):
ok. 700-750 zł / mies.
Lokalizacja:

Grzegórzki / Dąbska , blisko centrum Krakowa
• Świetny dostęp do komunikacji miejskiej -
tramwaje i autobusy
w zasięgu kilku minut pieszo
• Sąsiedztwo dużych osiedli mieszkaniowych
• W pobliżu: Tauron Arena, centra biurowe, sklepy, punkty usługowe Zapraszamy do kontaktu i na prezentację! ::DODATKOWE INFORMACJE
Rodzaj budynku: biurowo-usługowy Dozór budynku: alarm Dojazd: asfalt Ogrzewanie: C.O. miejskie Komunikacja publ.: autobus miejski, tramwaj Sąsiedztwo: osiedle Usytuowanie: dwustronne Położenie lokalu: ulica osiedlowa Wejście: od ulicy Stan lokalu: do adaptacji Okna: PCV Instalacje: dobre Powierzchnia użytkowa [m2]: 108,9300 Przeznaczenie lokalu: handlowo-usługowy, biurowy Miejsce na reklamę: tak
::KONTAKT DO AGENTA
Stanisław Godłowski Zobacz kontakt502 181 981 Zobacz kontaktstaszek@danax.pl
Pośrednik odpowiedzialny zawodowo za wykonanie umowy pośrednictwa: Bartłomiej Krosta (licencja nr: 6585)
--------------------------
Od 1993 r. pośredniczymy w transakcjach na krakowskim rynku nieruchomości.
Pomożemy Ci jak przyjacielowi.

Ogrzewanie: Miejskie

Kontakt do agenta:
Stanisław Godłowski
Zobacz kontaktstaszek@danax.pl
Zobacz kontakt502 181 981

Oceń ofertę


0


198 wydruk błąd schowek

Ostatnio przeglądane

 

 

 

pobieranie

Pobierz wzór umowy

Umowa przedwstępna najmu

wybierz plik do pobrania
doc pdf

 

 

Deweloperzy

);